“我们醒着的70%的时间被用于工作,今天工作已经榨取了我们的时间。它使我们衰老,让我们感到压力。如果工作能治愈你,使你充满活力,让你更年轻健康会怎么样呢?”这是Mindvalley对更加健康和以用户为中心的办公区的看法。
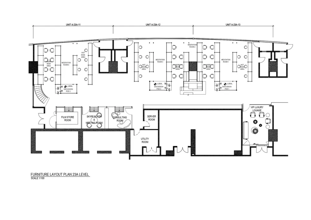
受游乐场景的攀爬架和高迪的圣家族大教堂启发,位于吉隆坡的新Mindvalley创意办公室设有一个多层办公区,它沐浴在全天候变化的多色光线中。项目和IDEAWORKSHOP共同设计,整个设计过程从重新思考办公室的概念和功能开始,为人的活动从根本上优化了布局、材料和空间。
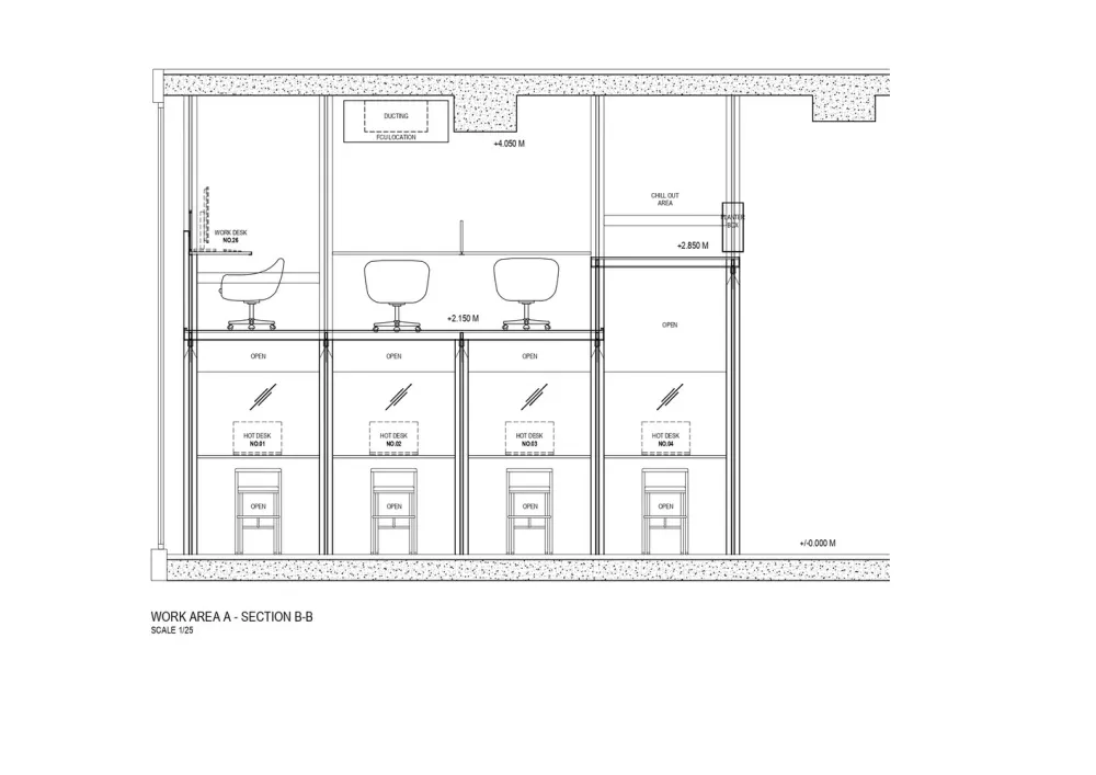
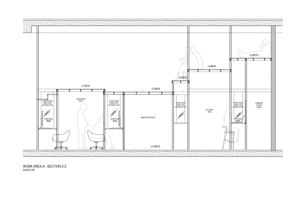
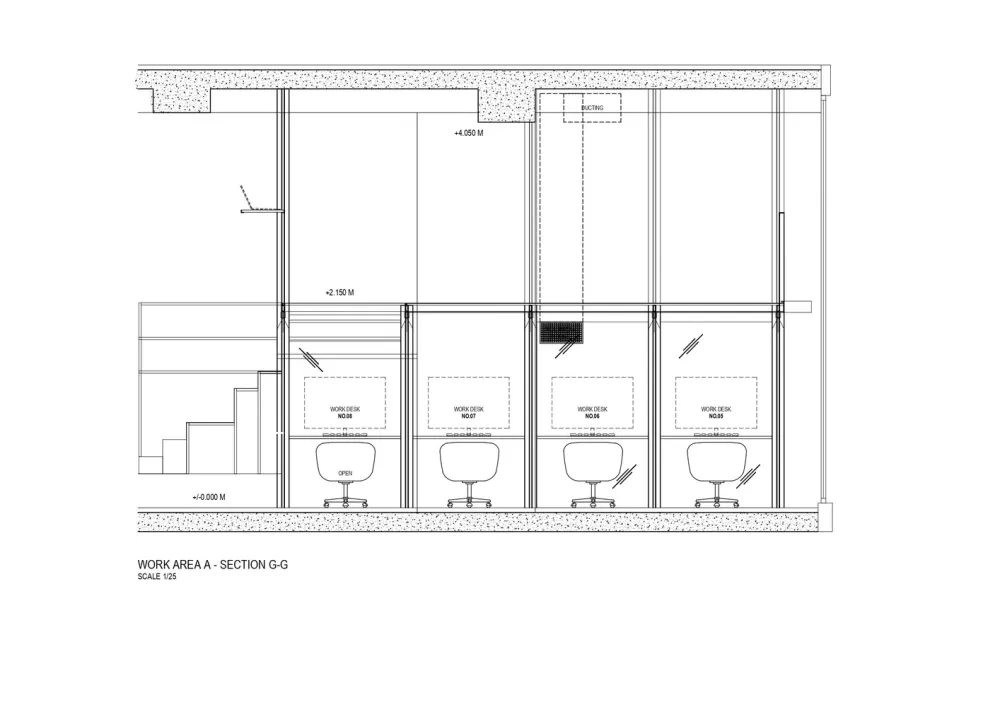
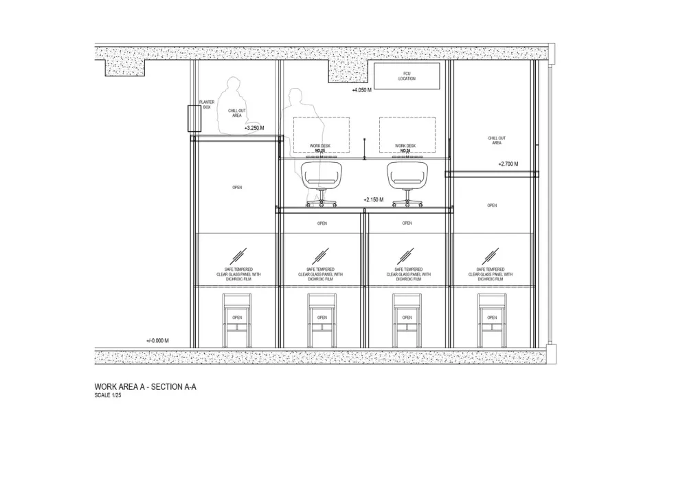
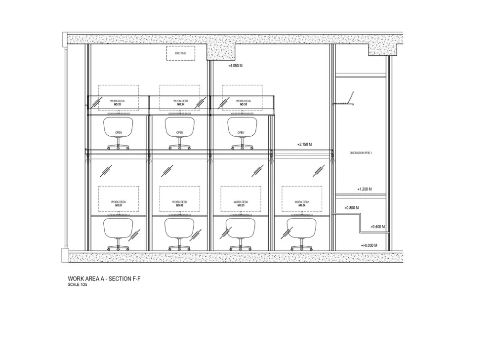
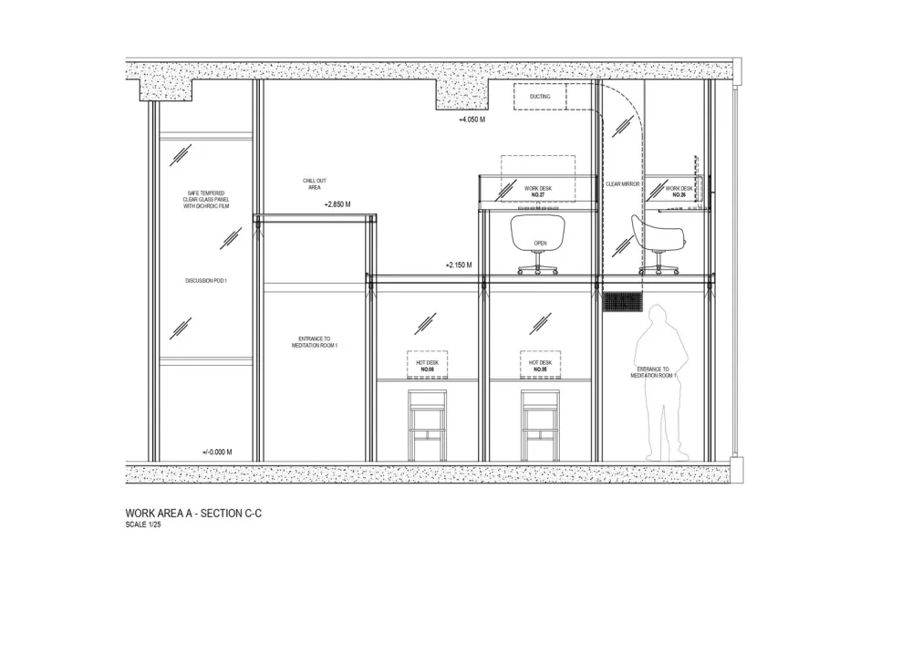
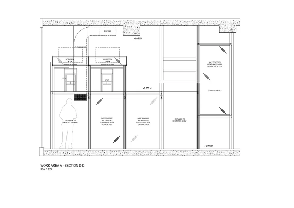
工作区被视为“光之殿”,它的设计是关于多向色性(一种光学现象,物体颜色随观察角度产生变化)和其与用户体验和生产率的动态关系做的建筑练习。在覆盖办公室的多层钢玻璃框架结构使用3M二向色薄膜并结合攀爬架的可玩性反映了对圣家族大教堂彩色玻璃的现代理解。
除了攀爬架部分,这个项目也采用了简单但创新的部件来抵抗久坐的生活方式,它包括站立式办公桌和拉起的杆子。作为一个重视用户舒适和健康的办公区,项目也提供催眠室和用来打盹的便利设施
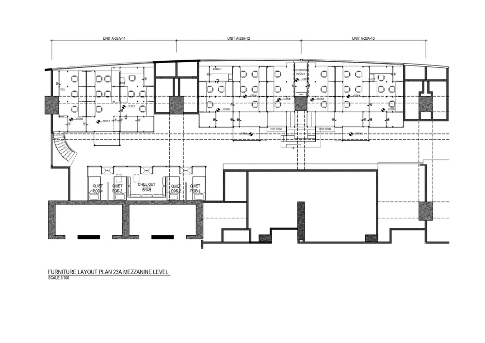
工作区由安静和用于容纳的空间组成来满足用户需求,辅以植物墙,并充满自然和五颜六色的光,在物理上展示了建筑设计如何促进人类学和环境的相互作用。
工作区服务了80个设计师、电影制作者、社交媒体和市场专家,创造了灵感启发、个人关注、合作和社交的机会。项目是创造性工作区的当代模型,有改变未来工作区和生活方式并最终实现个人和集体福利的力量。


建筑师 IDEAWORKSHOP
地址 Kuala Lumpur, 马来西亚
类别 办公设施
建筑面积 330.0 m2
项目年份 2018
摄影师 Heart Patrick

