沉湎于浮沉复杂、快节奏都市生活的我们,常常渴望告别平日的喧嚣,择一方独处的净土,出则繁华,入则静谧,纵享品质生活,静享舒适人生。香港,一座在现代时尚的外表下透露出低调奢华气息的国际都市。港式轻奢,在浓墨重彩之间焕发一股昂扬的活力。人在港式空间里行走,感觉轻快而安闲。在奢与轻的变奏中,不仅空间从厚重的奢华质感里解放,时髦与美的展现亦伴随其中。
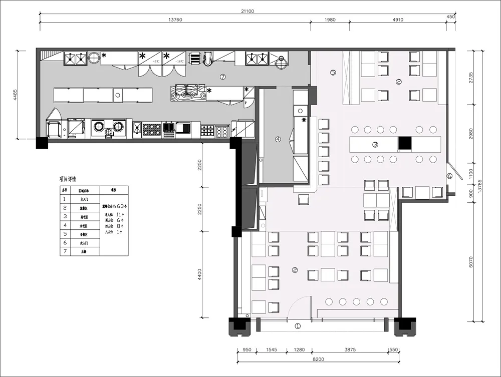
《小荣大胜》港食餐厅是由珠海荣胜两兄弟创办的一家轻港食餐饮连锁品牌,项目位于珠海香洲区 CBD 中安广场一层。三进式布局的创新设计形式,通过就餐区材质与层高的转换,三个立体盒子的空间形态呼之欲出,三种不同节奏的感知空间层层递进。
门头立面,简约而不失细节,结构轮廓清晰干练。木纹立体盒子嵌入整个空间,好似一道美景秀丽的滨海之窗,顾客由此而入一个愉悦的就餐空间,尽情享受舒适空间中的美食乐趣。
不破无立,拆解重构。入门前厅,“小荣大胜”品牌四字笔画拆分,高低错落悬于水泥色的裸顶天花上,不同角度展现各异形态。乱中有序,自成章法,强调现代年轻人自我独立、标新立异的创新思维。亦恰如港式美味,兼容万绪,包罗万千,让你在这里能肆意感受各式味蕾在你舌尖跳动的曼妙舞姿。
中厅处,依然是围合的木纹立体盒子映入眼帘。天花高度的特意压低,前后空间的自然衔接,立体空间在这里仿佛遭到挤压,满满的仪式感油然而生。全木质结构的设计,带来回归自然的内心体验。左侧以人物手绘烘托,右侧以现代书柜聚焦,空间视觉向心力陡然增强,港式文艺清新范儿扑面而来。
内厅,长形高桌、靠墙卡座,巧妙地改变行走动线及就餐形式,空间节奏感及舒适性在不经意间得以增强。六人位的水吧置于内厅,顾客在享受美食的同时,更能体验到类似《十二道锋味》中美食制作的现场感。前厅留出更多空间,宽广环境让忙碌一天的你在这里,能舒适感受黄昏夕阳带来的丝丝暖意。
三段式递进的几何界面设计,表面看似为实体空间的挤压,但何尝不是走进喧嚣都市人类内心通道的物化写照。外部喧嚣世界(前厅)的嘈杂,让我们一次次转身走进扭曲空间(中厅)的内心世界,企图回归向往的自然生活,我们心灵最深处(内厅)往往存在一个小宇宙,它自由祥和、独一无二。
项目名称:《小荣大胜》港食餐厅
设计公司:无非设计(深圳)
主创设计师:曹博文、张珊珊
设计团队:曹博文、张珊珊、薛茵琦,陈小北
项目地址:中安广场,珠海,中国
施工单位:优新创装修设计工程有限公司
项目面积:160.0平方米
完工时间:2019年5月
主材:木纹铝板马赛克、花纹砖、艺术漆、拉丝金不锈钢
餐厅 木纹铝板马赛克 花纹砖 艺术漆 拉丝金不锈钢

