这是围绕一位艺术家的工作需求和生活状态而设计的建筑改造项目,55这个数字对于业主而言代表特殊的意义,所以我们将这个项目命名为Apartment 55(A55)。
 
 
场地位于一栋五层公寓的顶楼,业主希望保留现有露天庭院,同时兼顾工作,会客,展览,起居等功能。希望营造创作空间的绝对隐私感,对于作画的位置,光线的角度和视线所及的景象,都需斟酌考量。这个项目的挑战在于,在原有结构的承载力限定下的腾挪转移。空间梳理之后我们重新定义了建筑和庭院,组织安排了动线和垂直交通。在对整体结构进行了全新的计算之后,新增荷载控制在9吨之内。设计的全新钢结构被‘绑’在原混凝土框架结构之上,避免对原结构产生负面影响,并起到一定的围箍作用。
 
 
 
 
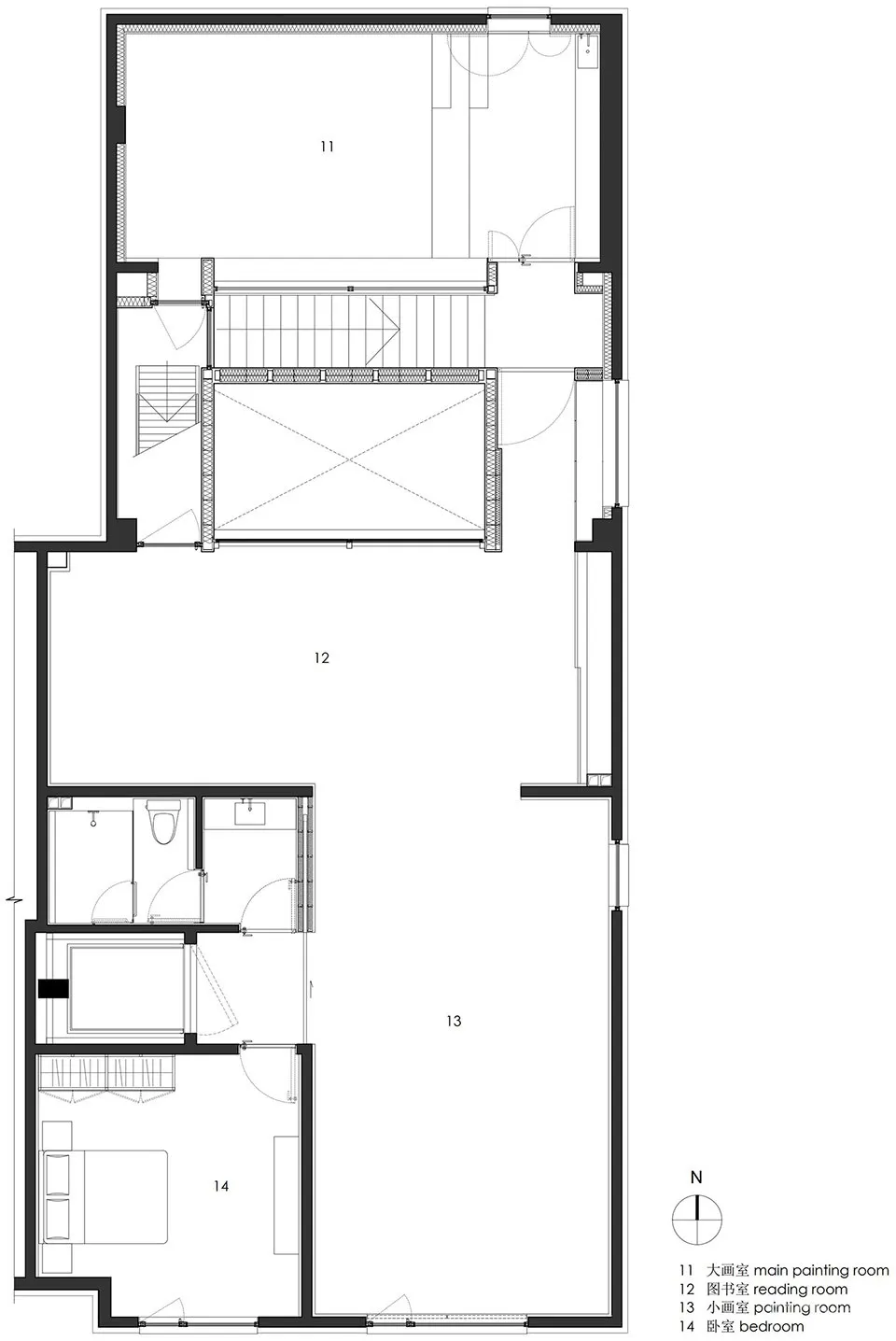
在空间规划和动线上,是由主入口开始向内延伸的公共区(会客,展览),向半公共区和私人区域(起居,画室)过渡。每个空间性质的转化,通过轨道移门的开启和关闭,窗的位置和玻璃透明度,结合楼梯和走廊的过渡空间,来引导访客对于空间的可见和可达性。我们在工作区域为艺术家设计了三个画室,通过新增钢结构来控制层高,开窗和房间的尺寸,同时通过自然光和墙壁的反射对画室光环境的影响,营造了氛围各不相同的创作空间。
 
 
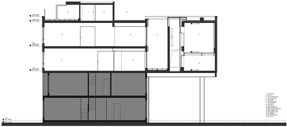
为了增加空间的隐私感,内向庭院中新增建筑立面的幕墙起始标高为5.6米,这意味着首层会客区的视线高度上没有任何开窗,让整个庭院成为一个均质的露天展览空间。立面背后由隐藏一层通向二层大画室的楼梯过渡空间,玻璃幕墙结合庭院和天光作为一个自然采光的玻璃盒子,以此来过滤直接进入大画室的自然光,使得画室光线更加柔和。天光渲染了由一层公共/半公共空间,过渡向画室和私人空间的情绪变化和仪式感。
 
 
空间气氛和情绪的过渡,通过材料的颜色,材质和光线混合构成第二次转化。首层会客区大面积使用深灰色纳米混凝土地面以及墙面,手工打磨的颗粒感配合颜色木纹的纹路和光泽,整体压低会客区的色调,与庭院的淡灰绿色真石漆形成室内外的对比,强调从室外投射进入的自然光给空间带来的精神体验。由一层走廊转向楼梯上二层,空间的色调开始转淡,浅灰色墙面和同色木地板,配合天光强化进入私人工作区前的情绪准备。二层整体使用浅灰色纳米混凝土地面和灰白色墙体,落地玻璃幕墙让光线作为空间唯一的表情,为工作区带来静谧和纯粹。三层露台可俯瞰大画室和庭院,夜晚从玻璃幕墙漫射出的光线,作为城市景观,渲染了整个建筑的气氛。
 
 
A55从设计到建造完工为期三年,在这个限制条件极其苛刻的项目中,我们尝试最大限度地为建筑空间带来与功能相宜的变化和节奏,感知和形式,轻盈和沉重,光影和颜色,希望这些交织在一起的综合体验,连同业主创造的艺术一起,缓缓降临。
 
 
 
 
 
 
 
 
 
 

 
 

 
 

 
 

 
 

 
 
 
 
 
 
▼轴测图
 
 
▼平面图
 
 
▼流线及结构分析图
 
 
▼立面图
 
 
▼功能分区示意图
 
 
 
 
▼剖面图
 
 
项目地点:北京
基本功能:住宅/工作室
建筑规模:300平方米
建成年份:2019年
室内设计:左通右达建筑工作室(www.aboutarch.com)
主创设计师:王旎、张大为
设计团队:杨树军、寿大光 、范意任
结构设计:刘粟
施工团队:大有和诚建筑装饰
主要材料:纳米水泥(Soluzioni Microverlay)、家具(CASSINA)
摄影师:孙海霆


