受到传统形状和周围自然环境的启发,小屋的设计是为其居民量身定制的独特建筑。业主想要一个温暖的空间,适合接待家人和朋友,与环境和谐,一个呼吸新鲜空气和补充能量的空间。宏伟的图片小屋提供了一个独特的体验,通过简单和冷静的物理,自然和建筑之间的共生关系。
小屋的设计源于对其所在的宏伟森林的敏感解读。在开始构思这个项目之前,我们的目标是让我们自己被地形的特点所引导和启发。这种对地形的体验,从一开始就让我们抓住了不同氛围的所有潜力。这些氛围指导了APPAREIL架构团队的工作。每一个动作都受到优化空间内在品质的愿望的影响。
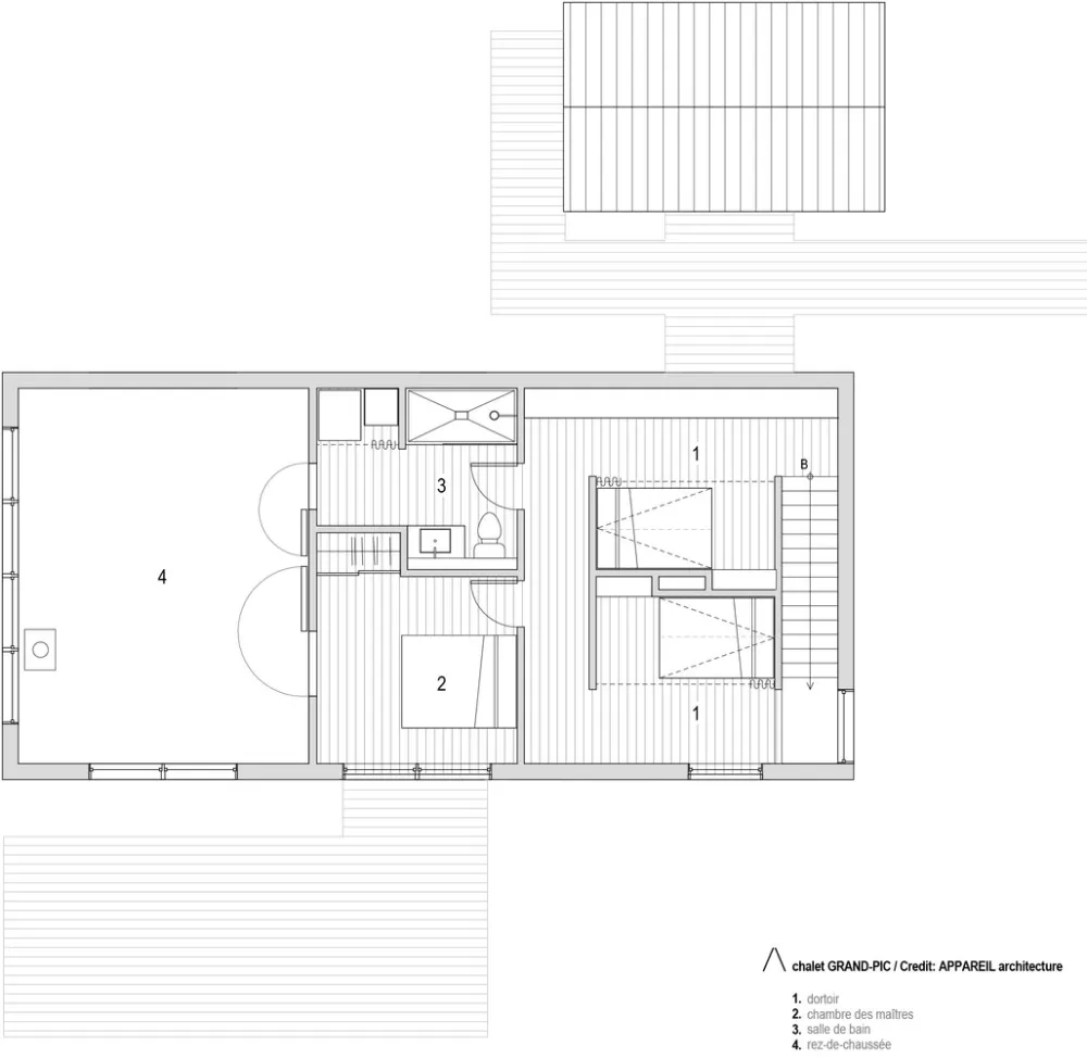
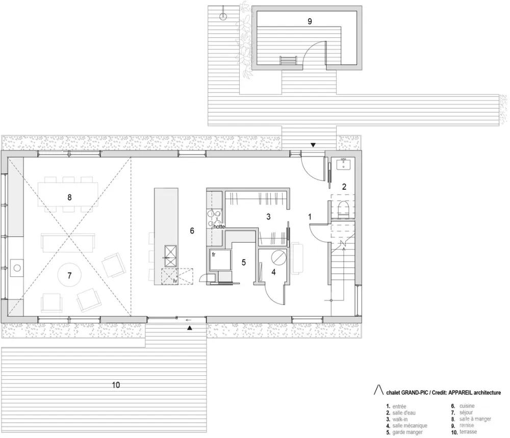
在到达建筑之外的场地时,团队考虑了外部空间。在外围,配备的停车位允许居民离开汽车,并给一条小路留出空间,别墅就从这条小路穿过树林。这条小路变成了雪松人行道,通向两个展馆。内部平面围绕一个中心技术核心组织。在一楼,隔断被渲染得最少,释放了生活空间。厨房部分与核心融为一体,得益于一个大的存储空间。在二楼,中心核心延长了自己,这一次进入了客人的宿舍区。室内开口可以俯瞰一楼的空间,强调光线的涌入,并在两层之间建立联系。
与黑色单色外观形成对比的是,内部通过开口和材料的亮度溢满了光线。在墙上,俄罗斯胶合板显得格外醒目。无所不在的浅色木材为室内光线增添了色彩,使其与附近植被覆盖下的光线具有相似的特征。室内围护结构的所有墙壁和天花板上的木材纹理允许方言风格的主要室内体量的形状得到强调。为业主创造一个冷静和温暖的空间的目标是通过一个简单的建筑实现的。通过其体量和设计,以及外部和内部的覆盖,大图片别墅提供了一个永恒的建筑灵感来自北欧传统。


位置Austin, 加拿大
面积 146.0 ft2
年份2017
摄影师 Felix Michaud

