質透
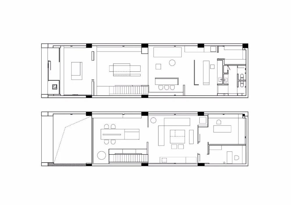
宏盛HONGSHENG位于广州,服务全球服装品牌,负责品牌形象部分,包括服装辅料、产品包装。客户希望提取公司核心精神,将其转换成一种注重精神交流的互动空间,给予行为更多可能。
主要功能为展示与办公,主要概念来源于对传统文化的承载,将文化意境以过度的方式穿插进空间,因为空间径深以及单向采光的原因,我们希望光线可以透过玻璃慢慢渗透、折射,洒进内部空间,从何可以弥补原结构的不足。
光线经过时间变化,透明的材质结合水泥板的使用,彼此相互融合,空间呈现一种安静且神秘气质,给予参观、及使用者想象,同时为使用者注入更多的情感,减缓工作带来的压力。它与室外的关系是密切的,行人随时可以关注到里面的情况,无形中每个路人,都是品牌建设的参与者。因为所有的意念,最终将呈现。
我们认为现实需要透明的实质,透析、映射我们的内心。真实且自然的氛围本身即是品牌形象很重要的一部分。
唐列平
西隅设计有限公司由高級室内建筑师唐列平(先生)創辦,公司阐述自然而然美学精神,整合文化、思维碎片,探索未知,营造诗意景观、构筑以自然为核心的本质空间。以此为依据,涉及范畴涵盖:商业展示空间设计、软装陈设、艺术装置、品牌策略顾问
2014/
CIID第十七届中国建筑学会住宅工程类银奖
CIID第十七届中国建筑学会办公工程类铜奖
CIID中國建築學會佛山15年15人榮譽
CIID第十七届中国建筑学会80设计展
APIDA 亞太區室內設計大獎樣板房類別銅獎
2015/
IDEA-TOP艾特獎入围奖
IDEA-TOP艾特獎提名奖
IDEA-TOP艾特獎最佳设计奖
CIID第十八届中国建筑学会住宅工程类荣誉奖
CIID第十八届中国建筑学会样板房工程类荣誉奖
2016/
IDEA-TOP艾特獎入围奖
IDEA-TOP艾特獎提名奖
IDEA-TOP艾特獎最佳设计奖
2017现代国际传媒奖荣誉奖
2018第31届陶博会展位金奖
CIID第十九届中国建筑学会医疗教育工程类铜奖
项 目:宏盛辦公室
項目地點:广州.原创元素
规划面積:270平方米
完工时间:2018.11.16
设计公司:西隅艺创
物 料:亚克力、水泥板、烤漆、木皮
设计创意:唐列平
执 行 : 刘晓霞

