彩色盒子办公室空间坐落于望京CBD一座商业楼,北京政府实行转型城市政策后,进行新的功能植入,其原有商场区域修改为写字楼功能,Woo Space作为运营方, 让新式办公空间里融合不同的团队在一个空间里,共享会议活动场所,路演区,餐饮区以及休息区。
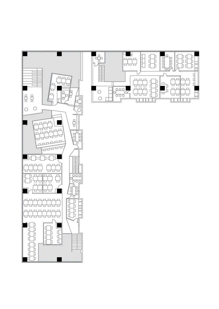
原始的商业空间5米层高,在原建筑基础上,建筑师进行局部搭建,增加了LOFT空间组团。同时将一些短时间使用的空间,如会议室、 茶水间、设备间等功能性空间放到整个空间北侧,靠走廊这一侧不采光的区域。另外把采光面最好的南侧部分留给了长期办公停留的工区,并在每隔一段距离放置一个通高公共空间,活动场所,咖啡厅,把最好的视线与阳光分享给集体。
建筑师分别在建筑的两端增加了两组廊道,呈现立体的室内空间模型,并形成竖向交通。由此,上下流动问题成为空间中的首要问题。在交通空间的设计上,除了解决基本的快速通过功能外,赋予新的使用可能,如入口集合广场的阶梯是活动座椅本身,也是通往二层新搭建的平台。放大路径的丰富性增加了行走中的空间体验,也加强了空间体积感。廊道角落里放置一些休憩设施,让每个人找到一个属于自我的天地。
建筑师对室内空间进行梳理,在于把原本相对均质的格局变得交错有致。建筑师通过不同的建筑材料构建塑造不同性格的盒子,如 PC阳光板,穿孔网,金属平面,地面采用不同色彩的地胶。并希望通过空间尺度和视线通透变化,结合自然光、人工光以及室内材质界面的透明性因素,形成一个不断交替的空间节奏韵律。二层桥梁将一个个工作区域串接起来,犹如独立的盒子散落在一个开放平面中,有开放的,半围合的,根据团队的需求选取功能盒子。通过对路径的设计来改变人的行为方式将行走的体验和日常单调的工作模式结合,在这里,不同企业员工通过不同盒子,遇到不同的人,碰撞不同的思想火花,打破原有封闭办公模式的格局,激发场地内部活力,




建筑师hyperSity
地址 望京国际商业中心,北京,中国
类别 办公室室内
主创建筑师 史洋,黎少君
设计团队 张国梁,李云鹏
业主 Woo Space
建筑面积 3000.0 平方米
项目年份 2017

