此住宅位于辽宁丹东,是设计师本人为自己的父母设计的,现状厨房和次卧格局不够规整,总面积才50平米。因此,如何剥离无关紧要的装饰,满足日常起居和收纳需求,并营造自由的氛围是设计的主要考量。
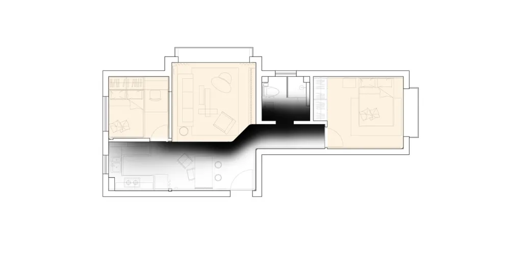
从厨房到主卧的流线有一处比较明显的转折,这堵墙会产生遮挡感,形成的拐角也会让在客厅沙发坐着的人感觉不舒适,因此设计的伊始从解决现状空间的矛盾出发,对原始空间进行重新梳理,增大厨房面积,把厨房和卫生间这两个材质相近,面积相似的空间做一个连接,并同时在天花上做一个曲线的造型过渡,这样的天花造型暗示了厨房和卫生间的相似的空间关系,引导并强化了人的动线,优美的曲面天花成为整个空间的视觉中心,消解掉墙面的直角对着人的时候给人的不舒适感。
卧室和客厅空间用了大量温暖的木色,并组成木质的空间体块,这些体块以整个白色空间为背景,进行功能与空间节奏上的构筑。
客厅的电视做了隐藏设计,一般的中国家庭,总是以电视为客厅的中心,ADWANGStudio在这里想削弱电视的存在感,让客厅回归它本有的交流和休息属性,同时设计了一个壁炉的意向,营造家的温馨感。
客卧&书房与客厅之间,设计了一扇1X2米的窗户,平时在小卧室的时候可以看到客厅,增加了家人之间的交流,有效减弱了小空间的压抑感,平时白天的时候这扇窗也可以补充客厅的自然采光,当然,在晚上休息的时候,可以让玻璃雾化,以达到保护隐私的目的。
室内设计 ADWANGStudio
地址 珍珠街,丹东,辽宁,中国
类别 室内设计
主创建筑师 肃画
建筑面积 50.0 平方米
项目年份 2018
摄影师 肃画


现在这个浮躁的世界,能细心整理一些东西发上来的越来越少了。要么就是敷衍的图片,要么就是枯燥的文字。之后就是AI生成的预制菜类的打包便捷快餐了。感谢楼主的分享,让我能在大智能无人化来临之前,看到同类发出的项目。有幸与您互动,缘分。