重塑历史建筑的品质与特征:伴随着Parterre One餐厅的完工,FOCKETYN DEL RIO Studio为巴塞尔一座文化综合体改造项目画上了圆满的句号。
Parterre One Music音乐厅在2017年经过彻底重新设计并完工,现与Parterre One小饭馆、餐厅和酒吧(Parterre One Bistro, Restaurant & Bar)这个新美食空间相互连接,餐厅设计充满对建筑悠久历史的纪念。
在巴塞尔中心及Kaserne区域的重要位置处,这些容纳了文化和美食业态的传统建筑缺乏关联与集体身份认同,建筑师需要对建筑群进行彻底地重塑利用。FOCKETYN DEL RIO Studio负责改造项目的设计和完工,提出了整个建筑群的总体规划。他们在2017年首先设计完成了大型多功能音乐厅并于近期完成了剩余的新餐厅装修和连接两座建筑的庭院。如今,位于巴塞尔城市中心的Parterre建筑群正焕发出新的生机,其文化活动与美食行业根植于巴塞尔繁荣的艺术与音乐土壤之中。
本质升华
餐厅作为一处繁华的美食区域,坐落于以前的一栋军营建筑中。FDR Studio在保留其历史特征的前提下进行改造升级。FOCKETYN DEL RIO说:“原有的餐厅使用深色的地板和展示书籍杂志的大书架。简单的空间内使用了大胆的元素,但存储空间阻挡了视线让这些特征难以辨认也进一步阻碍了交通。总体来说,服务区域使内部环境氛围变得杂乱。我们有点像是考古学家一样在操作,一步步挖掘空间隐藏的潜力,突显最初的元素特征,借助过去塑造更美好的未来。”
外观
FDR Studio按照遗产部门设定的标准改造立面,恢复其形象并进一步彻底改造结构和MEP体系(机械、电力和管道),让建筑更加抗震和符合现代舒适性标准。建筑师进一步增加了新的入口通道,让建筑与周围活动更具渗透性。通过拆除内院几处结构,打通建筑之间的通道和空间。新庭院空间成为整个综合体的中心以及餐厅与相邻音乐厅之间的衔接部分。为了处理几栋独立建筑之间不同的高差,FDR Studio采用了既具功能性又有美观性的混凝土构筑地形,让围墙内的庭院也可以顺畅通行和具备多样社会功能。新立面的红色调延续到整个室内。首层和二层的公共区域采用相同的色调,热情地引导来访者穿过建筑。
统一空间
在首层空间,建筑师复原了原先的墙面窗户并增加新的窗户,最大化地为内部提供光线,加强与邻近公园和步行区的视觉联系。空间围绕着中央使用黑色元素与不锈钢的交通服务核心进行布局,主要小餐馆区域形成一个方形环状,整体重新进行了组织并开放给公众使用。建筑师参照原有的空间重塑内部氛围,黑色MDF(中密度纤维板)构造室内一系列与过去产生共鸣的定制元素——雕塑般的新酒吧、自助餐厅、隔墙和集成式衣帽间。
二层原本用一组隔墙分割成了几间会议室。在建筑师激活空间的措施中,所有的隔墙都被移除然后分割成两个宽敞的大空间。空间涂刷为白色以表明这是一个全新的区域——现如今这里是一家精致的餐厅。建筑师大胆地将不锈钢厨房显露出来,让客人在餐厅的许多角落都能够观察到准备食物的过程。
在优雅而现代的新设计下,Parterre One如今包含几个不同的区域。酒吧和主要餐厅位于首层,二层是更具私密性的两个用餐区域,虽然比首层较小却依然宽敞。其次,色彩统一的交通区域保持了与其它空间的连贯性。FOCKETYN DEL RIO说:“我们让楼梯间与外立面保持相同的颜色,使建筑成为连续的有机体。楼梯间的门使用与外部相同的门把手,人们与其说是在一栋建筑里面,不如说是在室内外两个世界中穿行。”
PARTERRE ONE文化综合体
小饭馆、餐厅&酒吧和音乐厅外观统一,色彩与元素保持连贯,从而形成具有独特识别性的外立面。内部每一栋建筑都具有自己的风格和特点,凸显着不同的历史和曾经的功能。Parterre One餐厅设计旨在强调和重现原本就存在的识别性,Parterre音乐厅则提供了空间以往不具备的新身份。凭借Parterre One Music音乐厅与Parterre One餐厅,FDR Studio为表演、音乐会、饮食打造了一个全新的舞台。
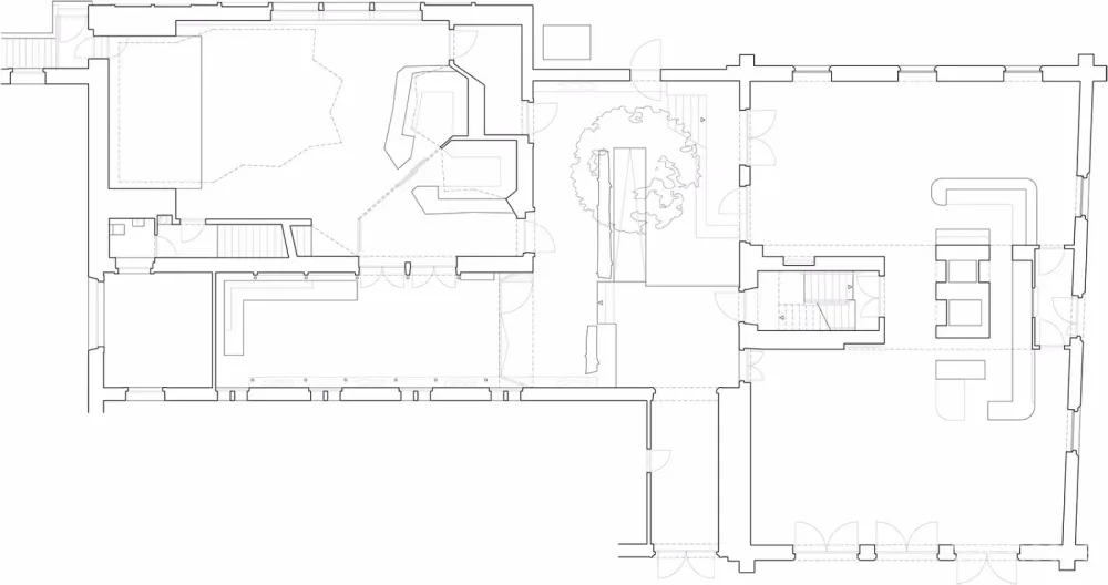
文化综合体整体首层平面图
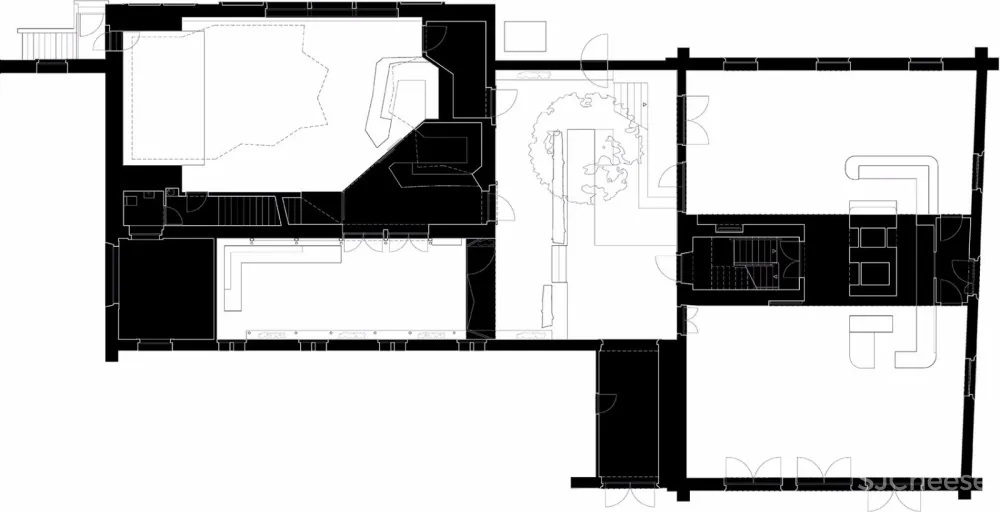
餐厅空间设计图解
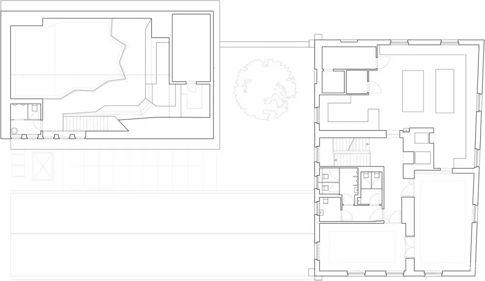
餐厅首层平面图
餐厅二层平面图
餐厅顶层平面图
Parterre One Bistro, Restaurant & Bar by FOCKETYN DEL RIO Studio – Facts
Project Name: Parterre One Bistro, Restaurant & Bar Project
Type: Restaurant
Location: Basel, Switzerland
Status: Project 2017-2018, Completed at the end of 2018
Size: 750 m2
Client: Parterre AG + Basel Stadt (IBS + HBA / Inmobilien Basel Stadt + Hochbauamt)
Project Team FOCKTEYN DEL RIO Studio: Hans Focketyn, Miquel del Rio, Letizia Fürer, Hajdin Dragusha, Francesco Di Giuseppe, Xenia Heid, Marina Dold, Raphaël Ratier, Josh Thompson
Collaborators:
Site & Cost Supervision: Rapp
Structural Engineering: Schnetzer Puskas Mechanical and Plumbing: Rapp Electrical: HHM
Gastro: Profiplan

