德比之家是一个改建和增加的前复式住宅与一个面对风景秀丽的悉尼港和城市的美妙的一面。客户是一个有4个孩子的家庭,他们热爱娱乐、户外生活和与景观的联系。
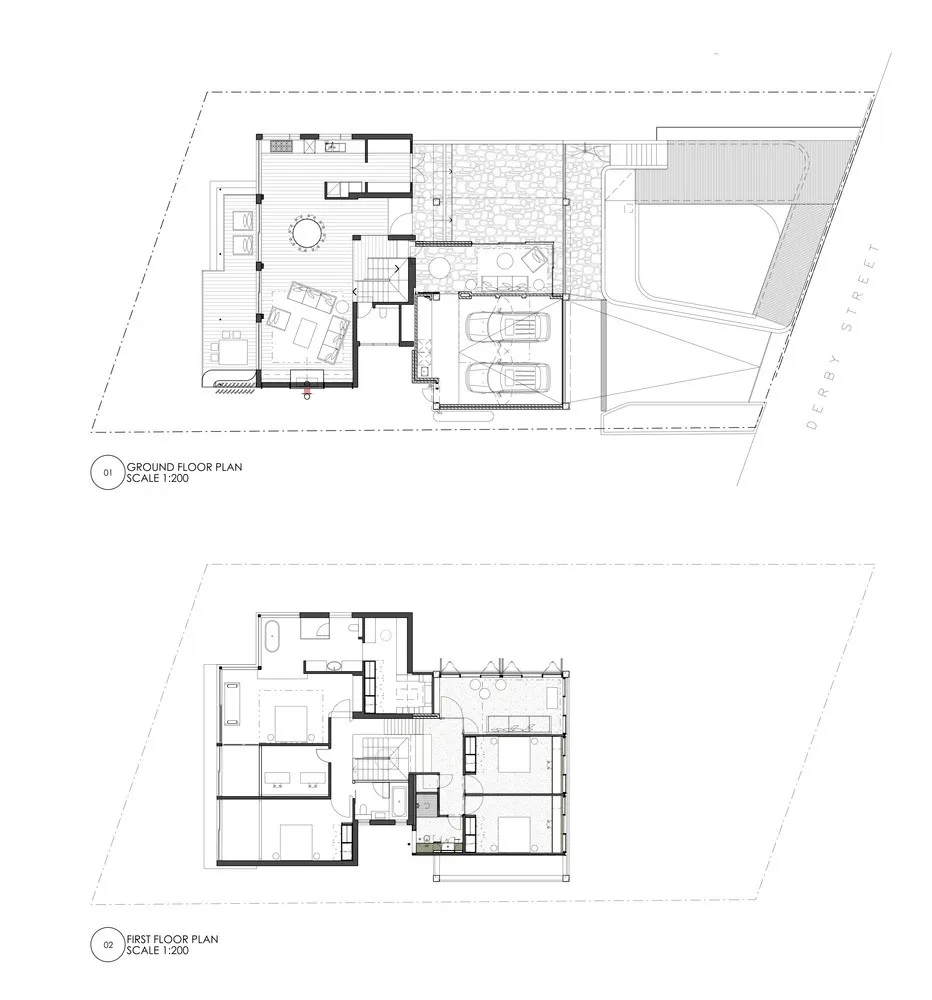
德比住宅的设计以家庭住宅和花园的公共使用为核心,以一种现代的方式培养家庭团聚。一楼的房间向外延伸到景观中,模糊了室内外生活的界限。经过一个蜿蜒的旅程,穿过花园,经过花园房间,游泳池和室外淋浴,建筑方案引用了一个传统的平面图,其中起居空间构成了一楼,卧室和浴室在上层。在这两层,推拉门连接空间,百叶窗将传统的室内空间转化为经典的阳光房,自然作为贯穿整个空间的指导元素。
为了补充现有的传统平房,临街的新添加物是一个现代主义混凝土框架,轻质木材填充创造了建筑围护结构。基地的西侧决定包含窗户,以跨越整个上下两层的东侧和北侧,最大化自然光和整个住宅的视野。水平百叶窗在温暖的月份提供隐私和舒适的元素。


位置 Vaucluse NSW 2030,澳大利亚
设计团队 Kelvin Ho, Linda Tjaturono
面积700.0 m2
年份 2015
摄影师 Murray Fredericks

