DN住宅位于Si Racha一个安静的封闭式社区,是一个两口之家。理想的位置,前面的私人运河通向一个美丽的湖泊,土地也与山景以外的赞美。它的设计初衷是随着它的主人Nakaprasit家族的生活一起成长和改变。
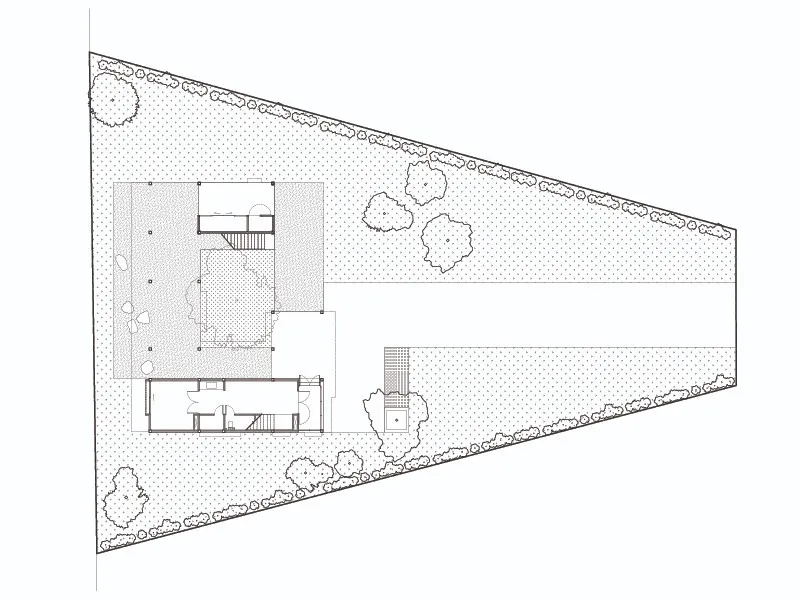
房子的首要要求是开到后面的运河上,同时它的空间围绕一个中心庭院组织,为业主提供最大的隐私。因此,朝向和法院作为设计的借口;它提供了内部和外部空间的框架。在设计的过程中,业主和建筑师的角色逐渐融合,双方创造性的投入和积极的对话使设计转变为既不是故意“拥有”也不是“设计”的东西。“这将是一个接受和欢迎平淡无奇和审美转变的地方。
活动围绕中心庭院组织,简单地分为两组“私人”和“公共”活动。然而,它们之间从来没有明确的界线,因为法院允许双方参与可能发生的任何日常活动。这所房子可以看作是一个改造地方的任务,将不同的活动融合成一个统一的整体。住宅的“公共”空间将四个不同的设置整合成一个整体:厨房或烹饪区、餐厅、客厅和工作室。每一个都由它自己的设备定义。长长的门廊环绕着空间,简单地将做饭、吃饭、生活和工作的环境结合在一起。
气候使人们可以在户外度过时间,因此设计中配备了庭院、阳台和带有玻璃板的门廊。这使得居民可以住在房子内外,也可以住在中间区域。用于休息和居住的阴影由实心板的边缘产生,在此之下可以展开日常的家庭活动。只要泰国人仍然是同样的人,气候没有改变,这些类型仍然有效,无论传统或“现代”的房子出现。通过露天的覆盖空间,室内和室外可以结合在一起。
从一个空间移动到下一个空间,描述这个地方的任务变得更加清晰。它是为了开发词汇和概念,这些词汇和概念将演示相距遥远和彼此不同的设置如何也可以相互联系,如何保持分离和连接。居住在房子里意味着专注于独立设置所维持的表演,并发现它们之间的相似性。只有这样,才能使建筑环境不仅显得遥远,而且显得亲切;也就是说,在不同的地方重复出现的情况的典型性。







建筑师 Research Studio Panin
位置 Si Racha, 泰国
首席设计师 Tonkao Panin, Tanakarn Mokkhasmita
设计团队 Sukotyut Charunut, Tanasab Apiwanarat
面积 315.0 m2
年份 2018
摄影师 Beer Singnoi Manufacturers TOA

