莫兰迪色系公寓
由 Denis Krasikov设计完成,面积为74m²,空间的每一处都布置的十分精致,采用了颇为流行的莫兰迪配色,是时髦,是优雅,更是实用、舒适的,高级感十足。
 
 
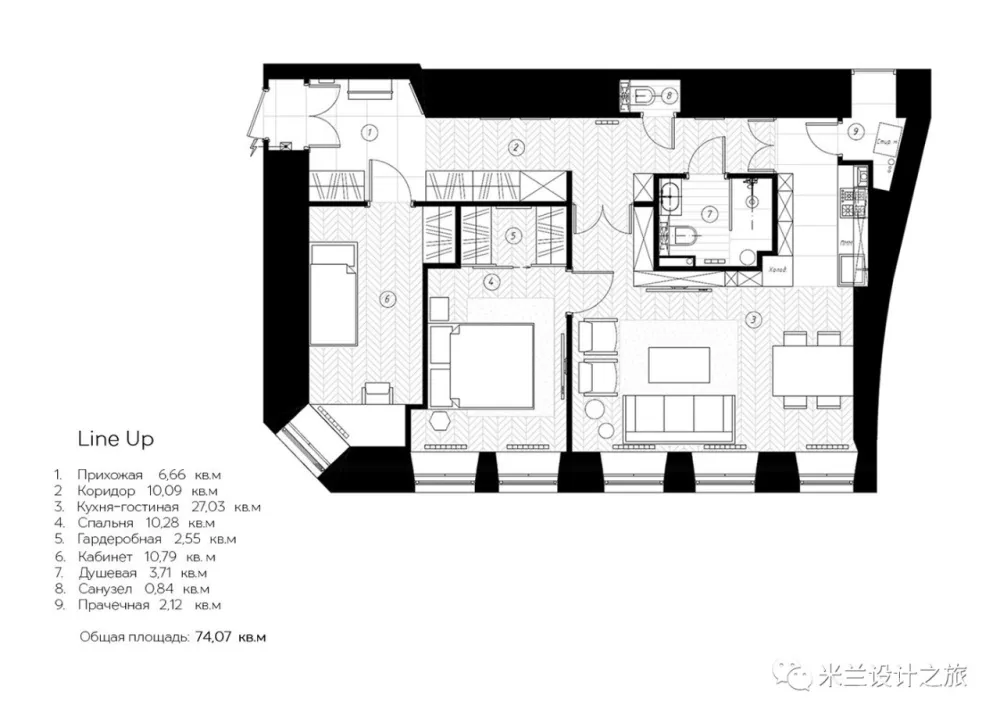
平面图
 
 
客观讲,这并不是一个好户型,卫生间像一个“大柱子”一样几乎位于住宅的中心位置,然而设计师却大胆地将这个“大柱子”设计成了家里的起居中心。
厨房、电视墙、收纳柜等都被安排在了这个“大柱子”的周围,再加上优雅色调的莫迪兰色系搭配,却让这个面积虽然不大的住宅,实用和优雅双收。

 
 

 
 
绿色的布艺沙发搭配玻璃吊灯,很摩登时尚,三个大窗户让整个厅都有很好的采光,鱼骨纹木地板与奶茶色背景墙呼应,整个房间温暖而有质感。
 
 
莫兰迪的配色,营造出平和的气氛,精简的家具,活力十足。

 
 

 
 

 
 
灯带的设计很美观,白色的大理石纹,烘托奢华品质。

 
 

 
 
灰蓝色的主卧,雅致而静谧,造型简约的吊灯,很有艺术感,卧室光线充足,布局紧凑。
 
 

 
 

 
 
卫生间采用大理石纹+木纹和墨绿色的搭配,让卫生间添上几分层次感,时尚大方有档次。

 
 

 
 
项目设计: Denis Krasikov



平面功能很舒服,软装配饰很到位