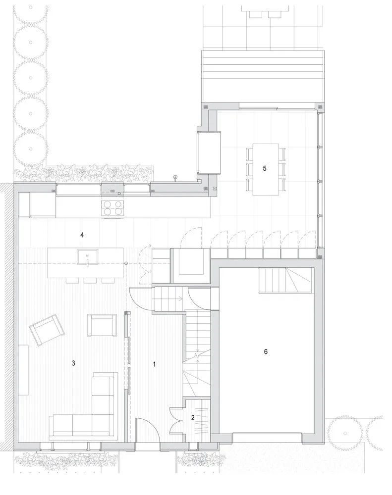
对于这个项目,APPAREIL建筑团队接到任务,为一个家庭住宅设计扩展,并翻新其共享空间。考虑到新干预和现有建筑之间和谐的愿望,结果将自己铭刻在一个干净的美学与北欧的影响。维尔蒙特皇家住宅里有一间过时的日光房,只能在一个季节里使用。通过与业主的密切合作,APPAREIL Architecture设计了一个新的附件,优化了自然光,提高了生活空间的质量。
项目的初始阶段是对住宅进行扩展,使其成为一个“发光的盒子”。这些开口通过通高的窗户突出立面的朝向最大化。这些允许光线渗透到空间中。利用这种照明,餐厅配备齐全,全年都能看到后院的独特景色。“随着光线的增加,新的餐厅对家庭活动更有吸引力,我们给人的印象是我们一年到头都在外面吃饭和生活,”业主解释说。
在内部,厨房被重新设计,以促进新旧元素之间的对话。为了回应业主希望保留深色地板的要求,整体材料更加明亮和中性。光滑的橱柜没有可见的硬件,加强了空间的冷静。与这个完美的白色环境形成对比的是,一个中心的木质模块突出了它的表面纹理与木条。这个中心部分协调了空间的新旧元素。从所有房间都可以看到,它成为一楼的焦点。它将室内的路径引向明亮的附属建筑,后者通向后院。胡桃木的元素带来了一种温暖的感觉,并与现有的木地板协调。它允许所有的必需品都隐藏作为一个碗柜和食品储藏室。空间就这样畅通无阻,显得更加宽敞。
干预进一步扩展到整个一楼,打开空间,并在房间之间创建一个欢迎的关系。通过开放一楼,这种结构促进了流体循环,同时提供了与室外的联系。无论是室内还是室外,这个由APPAREIL Architecture设计的项目结合了现代性和功能性,同时保留了原始住宿的诱人精神。


地点:加拿大蒙特利尔
面积:840.0英尺
时间:2018
照片:Felix Michaud

