座北朝南
入口空间设置了一个通道口的形式,几何线条组成一个围合的四边形,加强了入口处的进深感和形式感。The entrance space is arranged in the form of a passageway, and the geometric lines for
m a quadrilateral,which strengthens the entrance feeling and the sense of form。
入口处旁设置了一个半封闭式橱窗,可定期按主题更换内容展示。此处设计为透明亚克力材质+红色霓虹灯的组合。
A semi-enclosed window is set beside the entrance, which can be regularly displayed according to the theme.The design here is a combination of transparent acrylic material and red neon.
酒吧内部整体呈现出水泥工业风格,地面整体铺装采用公路线条元素,开槽后暗藏灯带,灯光氛围浓厚。
The whole interior of the bar psents the style of cement industry. The whole floor is paved with highway lineelements.
吧台上方设置钢网吊架,里面暗藏射灯,通过光影映衬作用,虚实空间关系。围绕柱体设置了一个围和型吧台,与工业艺术相得益彰。
Set steel net hanger above the bar, hidden inside shoot the light, through the light reflection effect, virtual andreal space relations. Around the column body and set a surrounded and shaped bar, and industrial artscomplement each other.
高4米的酒柜采用全钢板制成,加上灯光的渲染,使玻璃制品更加富有质感。
The wine ark of 4 meters tall USES whole steel plate to be made, add the render of lamplight, make vitreousproduct more rich simple sense.
舞台背后采用幕布挂帘的方式,取下幕布,白墙可做投影幕墙所用。灯光氛围的营造,对于酒吧来说是直观重要的一点,一首民谣哼曲,一杯清酒小酌,仿佛置身时间停滞的空间里。
Curtain hanging is used behind the stage. Remove the curtain. White wall can be used as the projection screenwall. The lighting atmosphere is intuitive and important for the bar. A ballad is hummed and a glass of sake isdrunk, as if you are in the space of time sta
gnation.
在往里走的沙发卡座区就显得静谧很多了,灯光昏暗,来上一杯无酒精的特调,享受片刻的慵懒悠闲。
The sofa booth area that goes in appears quiet a lot, lamplight is dimly, come to the special tone that does nothave alcohol, enjoy a moment languid is leisurely and carefree.
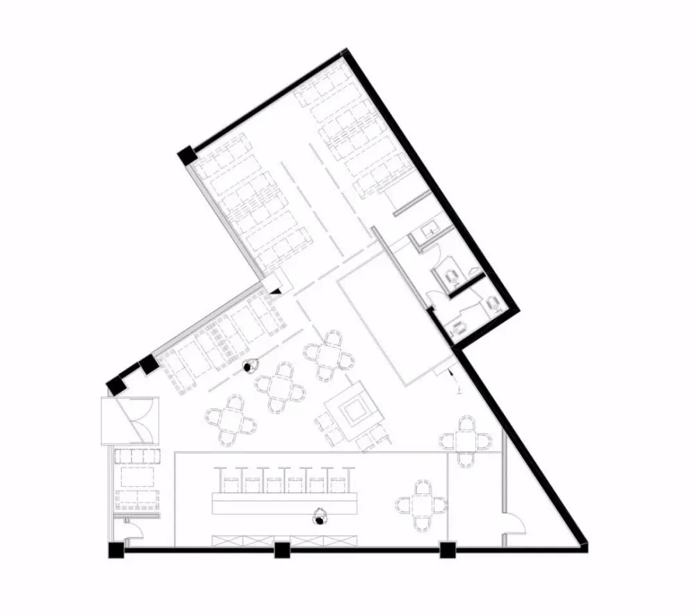
平面图 PLAN
轴测图 AXONOMETRIC DRAWING
lient:座北朝南
Location : Chengdu,sichuan
Area:200㎡
YEAR : 2018
该项目位于钻石广场·佳州星城负一层。客户想要打造一个颇具金属感,现代工业风格的音乐清吧。这是一个空气微醺,可以半阖着眼睛,在角落聆听的犯懒之地。
The project is located on the lower floor of the star city in diamond square. The customer wants to create a music clear bar with a metallic, modern industrialstyle. It’s an air tipsy, can be half-closed, listening in the corner to a lazy spot。


现在这个浮躁的世界,能细心整理一些东西发上来的越来越少了。要么就是敷衍的图片,要么就是枯燥的文字。之后就是AI生成的预制菜类的打包便捷快餐了。感谢楼主的分享,让我能在大智能无人化来临之前,看到同类发出的项目。有幸与您互动,缘分2
是不是一直复制,人就会变懒,变笨,第一次的复制粘贴,可能还略带羞赧,第二次再复制,内心的自责就少了一分,第三次毫不犹豫的ctrl+v 是那么的心安理得。回头一看,重复的留言已经700多条了。心安理得么?得到了什么呢?
人生本就短暂,走了除了家里三代人能记得,谁有会记得谁呢?反倒是这数字世界会多多少少留下我们的印记,然而周而复始的评论终究无法让人看上一眼,注定成为网络垃圾。
宝剑锋从磨砺出,梅花香自苦寒来。
重复的点评论做任务,发现已经开始有已经评论过的帖子出现了,越来越频繁。看到自己千篇一律的水贴突然感觉很羞愧啊。再这样下去,给我水贴完成每日任务的帖子就不多了。