ROUND STUDIO是一个服饰买手集合店品牌公司,旗下新开ROUND STUDIO咖啡馆位于番禺CBD新中心万达广场旁。因对咖啡的深度热爱,品牌创始人走遍世界版图寻找一杯好喝的咖啡带回广州。围绕品牌理念Search The World For Best Clothing(Coffee),给广州的咖啡爱好者一个全新的概念店。
 
 
“渝恩概念“受“园里园外咖啡(ROUDN SUTDIO)”的邀请打造首家以高品质现磨咖啡作为主营的咖啡店。我们与ROUDN SUTDIO的共识是营造一家有别于网红店的高品质现磨咖啡店,抛弃所有的标新立异的想法,我们更希望是营造一种彰显专业和舒适的咖啡品尝氛围。
 
 
咖啡和工作室
当一个工作室遇上一杯好咖啡,创意的灵感会不期而遇。每天忙碌的工作,熙熙攘攘的车水马龙都是不可避免的生活常态。也许一个舒适的环境,一杯可口的咖啡,会打开另外一个空间。为此,设计团队打造了一个不受想象力束缚的极简凝结空间。
 
 
由于自身的店铺的特性,店面被两条巨大的柱子使店面的形象展示受到阻挡。渝恩概念将这一限制转化为契机,将现有的柱子作包裹后使其演变为一副大面积的透光幕墙,使店铺从街道旁凸显出来。
 
 
为了最大程度地展现ROUDN SUTDIO的品牌意识,整个室内空间以素色为主调对“园外咖啡(ROUDN SUTDIO)”的标识蓝的意识强调。整体室内空间以灰调将贯穿,蓝色点缀则以跳跃的方式存在。
 
 
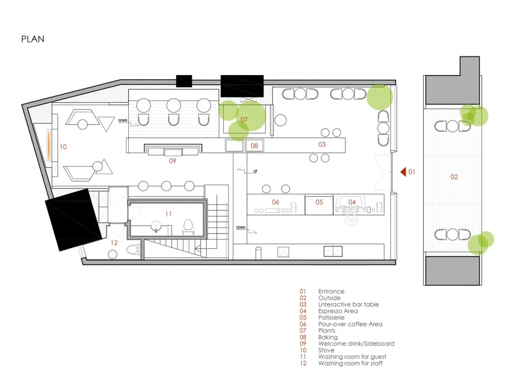
空间布局分为三大区域,分别是体验区、静区、休闲区
体验区则是入口处的吧台区域,该区域空间开阔,与咖啡制作区域彼此融合,座位的布置上相对随意,满足客人可以随意走动感受咖啡制作的氛围。为了使室内空间有更好的穿透性,我们大面积地使用了玻璃及银镜令空间有更好的延伸而不受空间之间的隔断所影响。由于空间楼面相当高,而我们既不想空间过于空旷又不能因为吊顶的存在使空间变得压抑。介于这个想法,我们抛弃了传统天花的做法,而是利用了玻璃作为室内局部的吊顶
 
 
而其中体验区上空的玻璃则利用了一块重达300公斤重的加厚钢化玻璃作为吊顶,在室内中心区域的绿植区我们也利用玻璃相隔,这既能作为玻璃吊顶的承重结构也不影响顾客欣赏绿色的视线
 
 
静区则是卡座区,为了让静区不完全孤立,我们利用动区的吧台以挑空的方式从入口一直延伸到散座区以贯穿整个空间,再用几何切割的形式把店内的自助糖品区和烘焙产品柜的两大功能区嵌入在这张吧台,使其形成一条功能动线。而体验区和静区的相隔采用了绿植来丰富两个区域的观感。
 
 
绿植区相对应得则是通往二层办公空间的楼梯,介于楼梯的必然存在,我们把楼梯作为室内空间的装饰品去处理,以方块叠砌的形式制作,配合镜面的延伸使其和卫生间墙身相互融合,从而演变成一个在店内夺目的装饰。
 
 
休闲区是室内的尽头,空间也不大。因此,我们呼应了店面的透光幕墙设计以及利用镜面延伸性的特点,试图利用光与影把空间变得不再压抑。而在镜墙的中间我们安置了一个火炉,使整个空间气氛令人得以放松。
 
 
空间设计元素冲积着整个店内,卫生间也不例外。镜面从卫生间的墙身贯穿到吊顶,使空间狭窄的卫生间廓然开朗。
 
 
 
 
 
 
 
 
 
 
 
 
 
 

 
 

 
 

 
 
 
 
 
 
 
 
 
 
 
 
 
 
 
 
建筑师 渝恩概念室内设计
地址 南村镇万惠一路92号铺,番禺区,广州市,广东省,中国
类别 室内设计
主创建筑师 苏智敏
设计团队 渝恩概念
建筑面积 22.0 m2
项目年份 2019
摄影师 Simon Su


