AP House Urbino见证了一个古老的乡村村庄的重生,它坐落在乌尔比诺最高的山上,因其景观和环境而备受尊敬。新的建筑体系建立在可以追溯到中世纪公社的古老遗迹上。在地下一层,建筑相互连接,坐落在一个红色的混凝土平台上(38 X 20 mt),主导着周围的景观。住宅的核心,形成了一个单一的住宅单元,在景观中重新发挥了中心作用,恢复了新建筑和历史分层之间的直接和共情对话。这些建筑的石质外壳,没有排水沟或排水管等任何多余的地方,并以其测量的比例为景观提供了纯粹、谨慎和安静的人工制品,恢复了它们的身份和与当地乡村文化矩阵的亲和力。
如果该项目的建筑组成和严谨,忠实地诠释了这个意大利地区(Marche)的典型形式主题,在其内部,在材料的处理,工厂和家具的设计,它想要证明其显著的当代性。
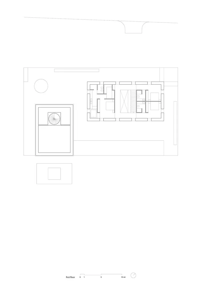
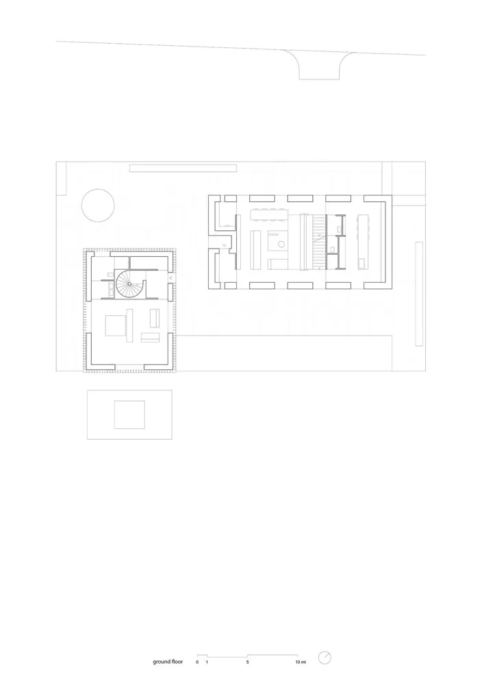
内部周边的清水混凝土结构为自然光注入创造了空间,并从任何其他承重元素中释放出体量。整个功能程序安排在三个层次上。为了避免在花园层停车和任何交通工具的视线,主入口位于地下室的大型车库中。在较低的一层,除了技术和厂房区域,还有所有的主要设施:一个电影院,在主楼和附属建筑之间的连接空间中有一个展览馆,以及一个带有水疗中心的健身房。从地下室,楼梯直接通向主建筑的中心,在那里可以看到令人惊叹的丘陵景观和游泳池区域。一楼完全面向室外,没有花园的连续性:这是客厅、餐厅、厨房和私人工作室空间。
一楼是主卧和两间带套间卫生间的双人间,围绕着一个带栏杆的大平台。家具设计完全由GGA建筑事务所设计,由天然胡桃木制成,在每个房间中都有隐藏服务区域、植物和技术组件的空间,并创造出秩序。附属建筑的木质框架结构是谷仓的记忆,在这片风景中经常存在。第三座建筑位于花园的一座小人造山上。在它的地下室里有一个储藏园艺设备的储藏室和一层的烧烤架。花园的这一部分,其不规则的几何形状由Corten台阶和草组成,想要从整个室外的严厉中略微分离出来。

能源供应,这是唯一的电力,是由一个广泛的光伏系统,隐藏在物业的理由,位于距离建筑物的距离保证。











位置:意大利里米尼
建筑: Alice Gardini, arch. Nicola Gibertini
面积:1080.0 m2
年份:2017
摄影:Photographs Ezio Manciucca

