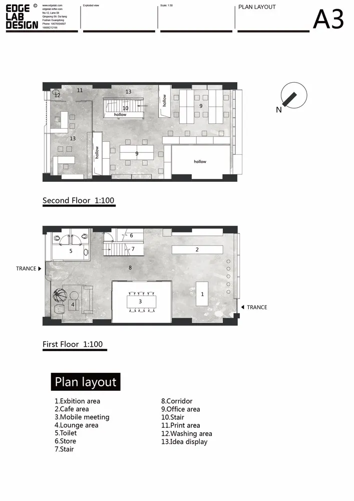
这是Edgelab工作空间的项目。它原本是一个层高6米的商店空间,现在被分成两层,中间有一个钢夹心板。一楼是T.E.M.Part空间,配备了酒吧、会议空间、卫生间和展览装置,而夹层作为Edgelab的日常工作空间。
设计理念是将一楼的T.E.M.P艺术空间的定位具有多种功能,可用于会议展览、办公、娱乐、产品展示等不同的用途。因此,我们设置了一个玻璃可移动的会议箱,可以根据会议空间的布局进行移动,从而创造出各种不同尺度的空间,做出不同的空间安排。
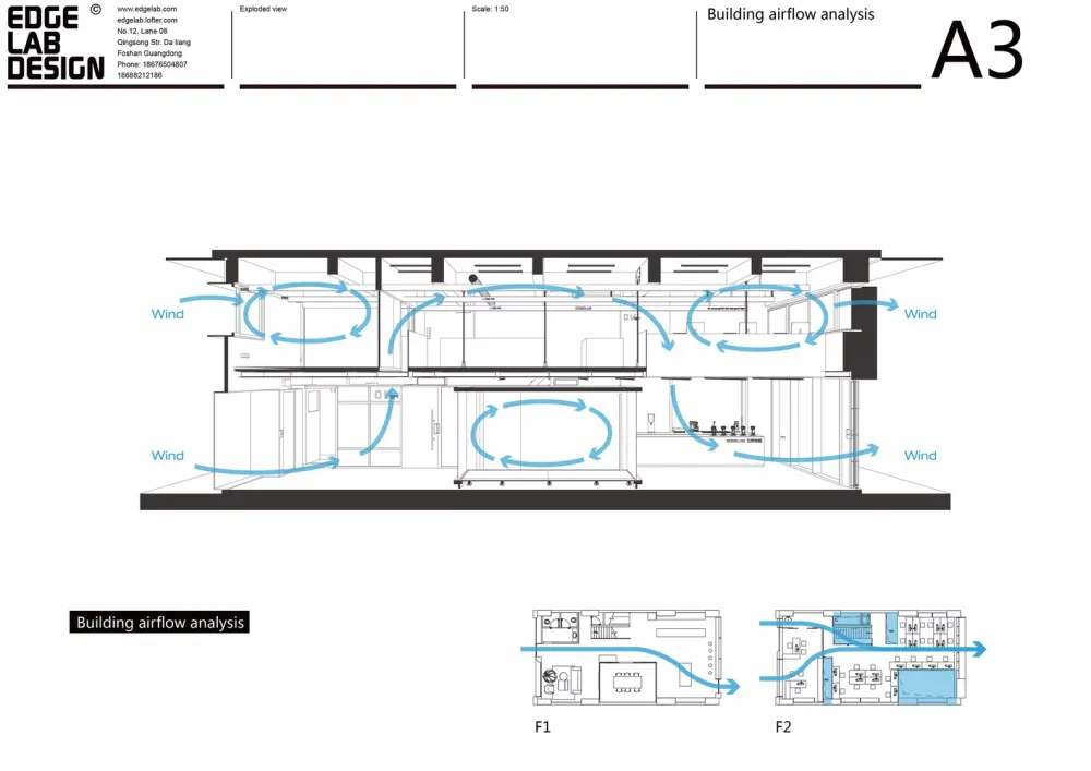
为保证首层无柱,夹芯板采用自行设计的钢吊柱结构施工。同时,二层的空心孔加强了一层与夹层之间的相互作用和沟通。由于这些洞,一层的中间部分采光更好,整个空间的通风也得到了改善。
在建筑的前部和后部安装了大面积的玻璃,以确保室内空间有足够的光线。此外,最独特的特点是长水平窗口,提供了一个广阔的视野,周围的大型绿化景观的建筑。
对于设计所用的材料,我们希望保持混凝土、钢夹层、胶合板的原有外观。修饰细节直接表现,外观直接表达结构之美。大面积的空置空间,整个空间体现出理性和简约的感觉。
设计公司:Edgelab Studio
项目位置:广州市番禺区芝麻塘,广东省,中国
设计师:Zhiwu Huang, Gangrong He
设计团队:Wenlang Liang, Jiahao Feng
客户:Edgelab Studio
设计面积:200.0 m2
摄影师:Xiaobei Zuo
设计时间:2018年


?