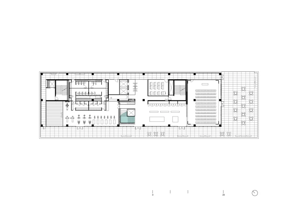
大学校园的定义是其户外协会作为城市的一个组成部分。在这种情况下,该项目占据了企业建筑的前四层,创造了将校园融入现有结构的挑战,使其具有户外校园的特征。
 
 
设计策略是“建筑中的建筑”:室内校园。
 
 
将项目集中起来,解放现有的周边或立面,确保每个组件空间都能获得自然采光和通风,形成“街道”,这个会议空间水平和垂直地连接周边,确保四个层次作为一个新的室内校园一起工作。
 
 
 
 
 
 
 
 
 
 
 
 

 
 

 
 

 
 

 
 

 
 

 
 
 
 
 
 
 
 
 
 
 
 
 
 
 
 
 
 
位置:墨西哥
面积:Area 65326.17 ft2
年份:2017
摄影:Onnis Luque, Ignacio Urquiza Seoane


