最苗条的摩天公寓楼
名为「100 East 53rd Street」的公寓楼,即将在纽约的曼哈顿区落成。 它可以说是世界上「最苗条」的摩天大楼,由万科与曼哈顿私人房地产开发商 RFR 共同开发。 这栋楼有 63 层楼高,包含裙楼与塔楼各一栋,提供 94 套公寓。 01.建筑设计
公寓的整体建筑由诺曼·福斯特带领的 Foster + Partners 事务所操刀设计 ▼
这栋大楼拥有极简主义式的建筑外观,纤细简约的几何体外观,在周围的建筑群中显得尤为突出,充满一种戏剧效果 ▼
除了纤细苗条的身材,它白色的建筑外立面也很特别,利用玻璃与创新的釉面材质,让外观明亮、光滑而且通透。 它简练的线条和明亮的外观,与旁边建于 1958 年的历史建筑「西格拉姆大厦」形成了对比与呼应 ▼
立面还有着规则起伏的形状,这样的褶皱更延长了整体建筑的纤细外观,并且通过特殊的形状可以看到楼内公寓的灯火 ▼

住宅楼的入口就在整体建筑下方的一栋裙楼内。 裙楼占据了三层楼,包括酒吧、餐厅、SPA 中心和泳池也在这里面 ▼

100 East 53rd Street 住宅楼的室内设计,由纽约的 Georgis & Mirgorodsky 事务所操刀,他们负责了整个住宅楼大部分的内饰 ▼
目前大楼已经建造得差不多,许多居民也已经陆续搬进去。 从实际建成的大厅内,可以看到简约的风格通过众多的材质,例如大理石墙、青铜壁炉、金属墙面等,散发出一种具有历史奢华的感受 ▼


02. 塔楼公寓
建筑的 10 楼以上就是经典的塔楼公寓。 塔楼公寓内部采用的是传统的白色橡木地板,白墙白顶与深色的橱柜搭配,整体设计更偏向经典传统的现代风格 ▼



厨房采用了各种隐藏式设计,让整个烹饪空间简洁清爽、易于打理 ▼



独特的飘窗设计令室内的采光相当充分,而且能够欣赏到全方位的景观。两侧有可以打开通风的窄窗,住户可以随时享受自然风 ▼



浴室的设计也十分简洁现代,在各种细节上做的非常贴心,达到艺术美感与生活气息的平衡 ▼


平面图 Residence A1 1 Bedroom 1.5 Bathroom 面积丨106㎡ 售价丨16,598,015 人民币 ▼
Residence A2 3 Bedroom 3.5 Bathroom 面积丨315㎡ 售价丨89,934,142 人民币 ▼
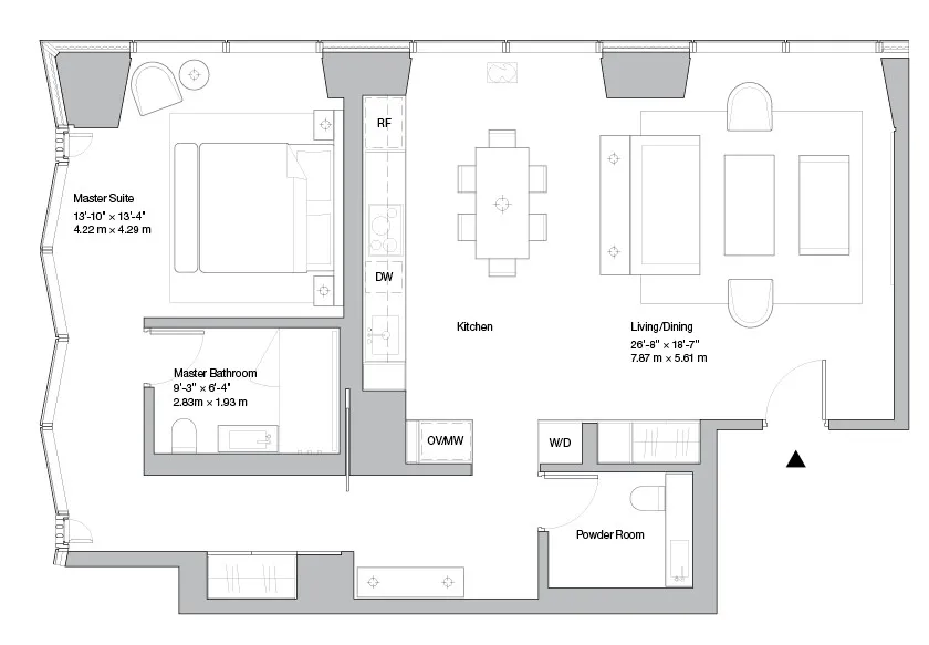
Residence B1 1 Bedroom 1.5 Bathroom 面积丨128㎡ 售价丨18,734,948 人民币 ▼
Residence B2 1 Bedroom 1.5 Bathroom 面积丨169㎡ 售价丨26,326,314 人民币 ▼
03. 阁楼公寓
建筑的四楼到九楼为 Loft 式公寓,大胆地采用了敞开式大空间设计,钻石抛光水泥地板,配合橡木、黄铜等材质,打造出原汁原味的工业风 ▼

通透的落地窗为宽敞的室内带来充足的光线,同时也提供了非常好的城市景观 ▼

开放式厨房可以看到水泥、木材与金属三者材质的搭配,并且同样此用隐藏式的设计手法,让整体空间氛围显得非常通透、整洁;天花板上的滑轨让灯具可以随意移动到想去的地方。 墙上的绘画作品让空间更增添了艺术气氛 ▼


材质细节图 ▼

平面图 Residence C 2 Bedroom 3.5 Bathroom 面积丨428㎡ 售价丨63,033,540 人民币 ▼
04. 公共空间
Penthouse A Residence Duplex 4 Bedroom 4.5 Bathroom 面积丨628㎡ 售价丨440,596,000 人民币 ▼

大楼的公共设施齐全,包括一个全长 18 米的游泳池、健身房和 SPA 间,甚至还提供专门的生活方式经历,可以为你安排全球旅行和个性化购物服务等等。




项目设计: Foster + Partners 事务所 项目地址:纽约 曼哈顿
版权声明:本文内容由用户自行发布上传或投稿由设计芝士代为发布,版权归原作者所有,设计芝士不拥有其著作权,亦不承担相应法律责任。如果您发现本站中有涉嫌抄袭或侵权的内容,请点此提交工单进行举报,一经查实,本站将立刻删除涉嫌侵权内容。

