重庆,作为世界上最大的内陆山水之城,是一座有山有水,灵气十足的城市。是古时文人墨客钟情之地,亦是现在人人向往的地方。如今钟书阁也正式融入这个充满诗情画意之地,坐落于杨家坪中迪广场。
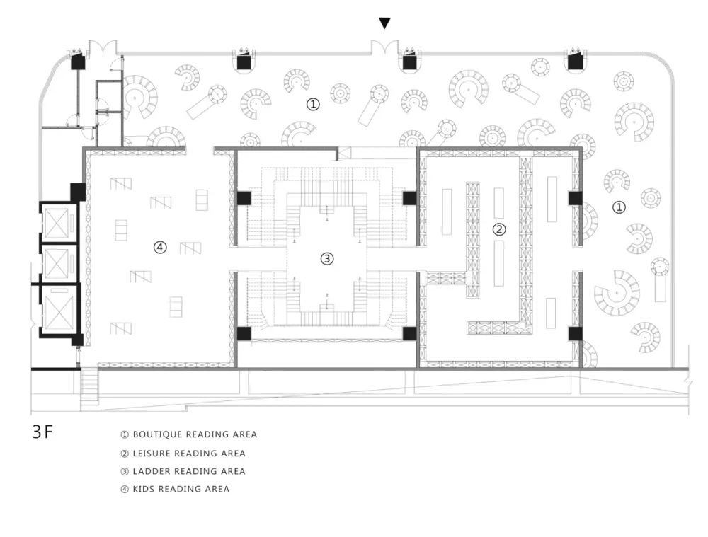
从3F扶梯上去首先映入眼帘的就是钟书阁特色的文字幕墙,从正门进入大厅在深棕色为主色调的空间内放置了大大小小的“灯罩书架”,配上暖暖的灯光,你可以置身于灯罩内,可以在书桌前放下疲惫,享受奢侈的阅读时光,感受被一个大大的“书房”眷顾的温暖。
从灯造型书房走来就到了阅读长廊,一道道门拱两侧整齐书架,在地面反射下形成一道道“穿越书海的隧道”,摆书台仿若引领我们走向知识的尽头。儿童馆坐落在书房另一角,映入眼帘的则是五颜六色的儿童绘本区,突出了缤纷的主题,我们描绘了重庆独有的山城景观、建筑、交通。让小朋友在读书的同时也可以领略到山城独有的魅力。
从阅读长廊和儿童馆走出来就到了阅读厅,整个空间被“山形阶梯”层层环绕,整个天花被镜面覆盖,倒影出一个亦真亦幻的镜像空间,拾步在阶梯上,时而登高、时而远眺,亦可以抬手间拿起一本好书,体会字里行间带给我们的思考。
从“山形阶梯”走到4F,就是休闲区咖啡阅读区。在这里端上一杯香茗伴着一抹淡淡的咖啡香,心绪如清泉般平静。四周利用“灯罩书架”围合成了一个个私密的卡座。在这里人们可以在此与朋友相聚、享受休闲时光。休闲区咖啡阅读区相连的就是精品阅读区了。这里你可以领略到各个领域先贤、大师的人生智慧,接受一场心灵的洗礼。
我们希望每一个人来到钟书阁,不单单只是找到好书、新书,还可以在这里遇见许许多多志同道合的朋友。因为,这是一个人与书的交流空间,还是一个人与生活的交流空间,更是一个人与人的交流空间。


室内设计 唯想国际
地址 中迪广场3楼,杨家坪区,重庆,中国
类别 室内设计
主创建筑师 李想
设计团队 刘欢
业主 上海钟书实业有限公司
建筑面积 1300.0 平方米
项目年份 2019
摄影师 邵峰


这个方案我们老师讲过