该项目旨在将塞维利亚的一座建于19世纪的宫殿改造为一栋只有12个房间的精品酒店。
设计师将既有的后院移动到建筑的对称轴上,使整个建筑的通透感和连贯性得到加强。另一个重要元素是酒店的屋顶,在改造后增设了小型泳池和休息区。Cruz y Ortiz事务所还负责了除室内设计之外的执行和完善工作。目前Mercer酒店已被Tripadvisor评为西班牙最佳豪华酒店。
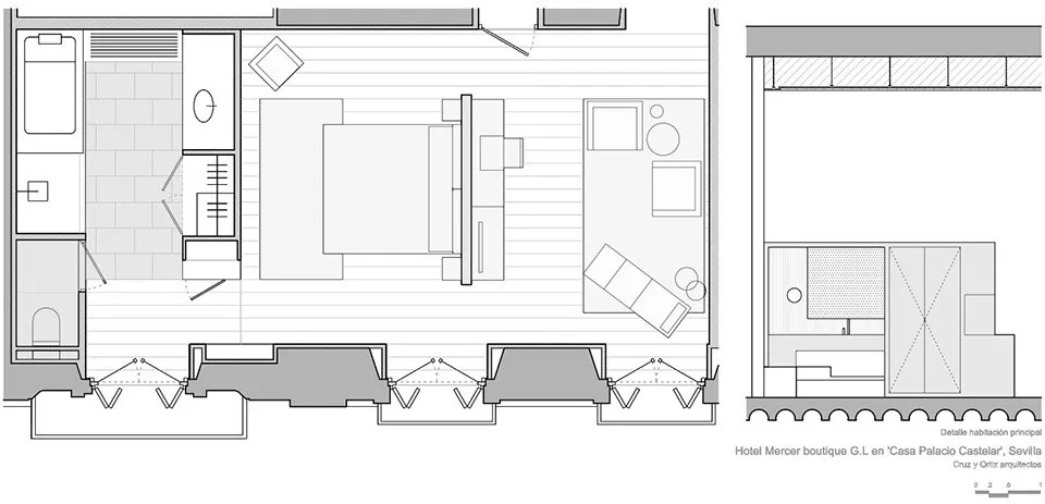
▼剖面图
▼立面图
▼二层平面图
▼阁楼层平面图
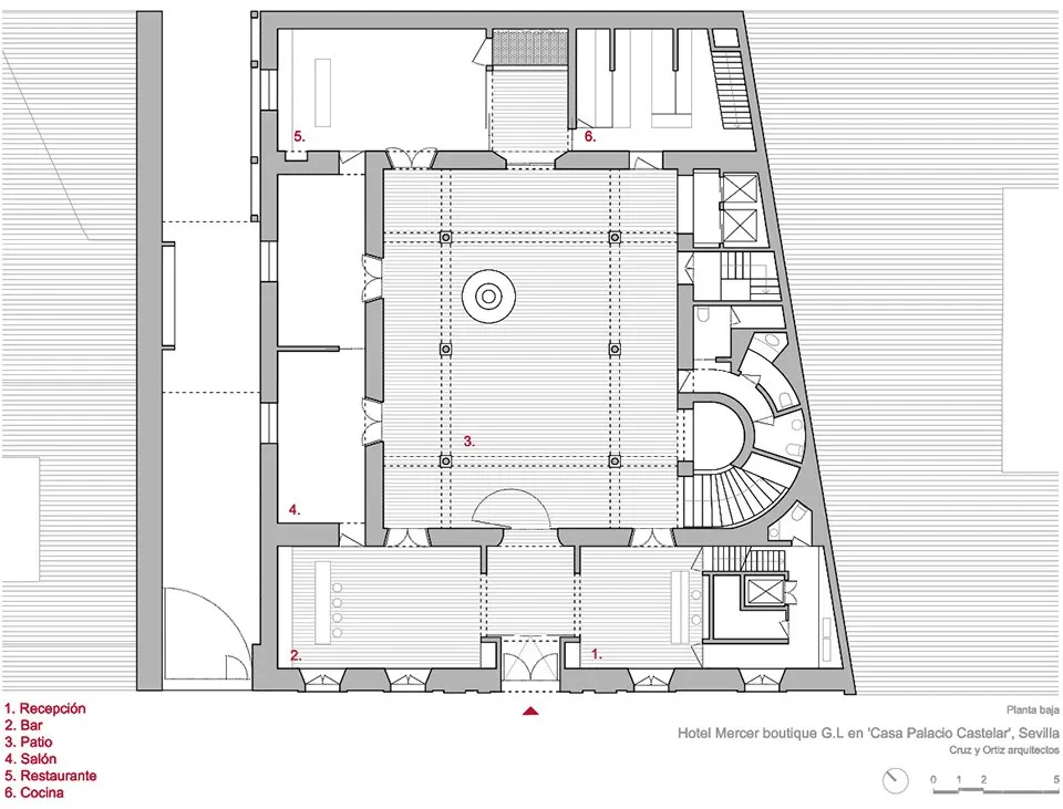
▼首层平面图
▼场地平面图
地址:Castelar街26号。41001塞维利亚,西班牙
类型学:酒店、室内、改造
Status:构建
技术TEAM
合作者:Blanca sanchez, Daniel perez, Giordano Baly, Marta Romero, oscar garcia de la casa, ruben Ramos, Sara gutierrez
室内主义:克鲁兹和奥尔蒂斯建筑师,住宅
景观:LOCAL 4, Terapia Urbana
照片Cruz y Ortiz Arquitectos

