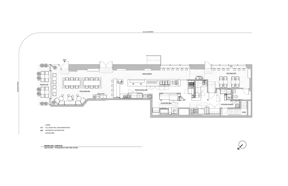
该设计空间为了迎接格林威治小镇整日繁忙的街道生活,这种生活一度被认为是城市住宅的典范。占据了街角空间,有着延申整个沿街墙面的玻璃窗和开放的板式界面。餐厅成为繁忙街道生活向外延申的一部分。充盈着自然光,餐厅前部中心放置两张聚餐的桌子,桦木长凳配以灰色皮质坐垫,与背后的墙相衬,还有白色大理石桌面配上薄荷绿的基座。吧台背面贴以薄荷绿瓷砖,照明的金属网悬挂在上方,映射出临近街道的氛围。地面是浇筑的水泥,模糊了街道和餐馆的界限,长条桌的位置被灰白色嵌银长方形水磨石瓷砖突出。
吧台是瓷砖铺就的台面,食物选择和准备的地方。左边的走道连接着粉刷成白色的砖墙上的若干展示用的壁龛。一个浅粉色的霓虹灯标识照亮了顾客排队点餐的地方,给建筑的调色盘增添了色彩。走到终止于背后的房间——一个更小更安静的墙上展示有艺术作品的就餐区域。
试图重新组织中国文化在美国的形象,该设计团队避免使用传统的陈旧的模式或者符号,而是选择了简单的形式和对比色。“色彩的灵感来自于对中国北方早春时节,家里根据阴历制作这种食物的童年记忆。薄荷绿的颜色和白白的雪,配合以自然桦木的温暖肌理,该混合完美地捕捉了影像,鲜美的气味和萌芽生长的精神,而这些是空间氛围的关键。”Xuhui 说。定制的薄荷绿瓷砖贴在服务吧台面上,与白砖装饰和浅灰色的混凝土内衬的空间形成对比。店铺的不同立面都精致地以薄荷绿和白色涂层装饰,沿街营造了一种纯净的白色的视觉效果,与地标建筑美学相融合。
黄铜垂坠的灯自天花板悬吊下来,提供了一种金属感的强调,用奶白色的球形灯泡照亮了白天过渡到黑夜的环境氛围。为了在一个空间中安排多种服务,设计团队引入了多功能平面,配合着灯光系统,在空间中渲染出灵动的色彩和阴影,用音乐、菜单和时间的变化去调节氛围。


建筑师 Junzi Kitchen
地址 170 Bleecker St, 纽约,美国
类别 餐厅
主创建筑师 Xuhui Zhang
建筑面积 1774.0 m2
项目年份 2018
摄影师 Andres Orozco

