休息和放松是这次作业的主要目的。它位于门多萨市郊,拥有葡萄园、果树、杨树和安第斯山脉的自然环境,这些都是门多萨的一部分,我们将在这里开发旅游综合体。
在一个100米长400米长的老葡萄园的土地上,项目从一条连接东西走向的建筑的步行道开始。这种情况迫使游客把车停在入口停车场,步行进入校园,这是一种忽视和与外界隔离的行为。
沿着这条道路,一系列的户外空间将被发现,并生活在一个有趣的体验中,试图唤起游客的敏感态度,并使他们更倾向于体验复杂的东西。
该建筑的设计、水疗中心和酒店,都是从一些小项目的有趣意图开始的,这些小项目将被分组并战略性地安排,形成特定的干预措施。
因此,我们认为设计的建筑经历了两种类型的空间,一种是在这些元素之间定义的空间,这些元素的位置似乎是由土地上任意的位置决定的,另一种是存在于建筑内部的内部空间。
“中间”所定义的空间是空的,它在元素之间滑动,是一个收缩和膨胀的空间,或拒绝或寻找自然的阳光,打开或关闭视图,不断地把我们带到复杂的旅行和实验。
因此,在这个由容纳房间的混凝土元素定义的空间中行走的行为,在一个被水平稀释的空间中,通过光线的使用和与自然环境的关系找到强度点,本身成为一种感官体验。
在酒店的案例中,水平的混凝土板垂直地统一和定义了空间。地板是唯一能对自然坡度的变化做出反应和调整的元素。
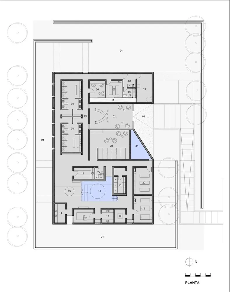
在Hamam+Spa,空间被定义为完全与外部隔绝。定义空间的元素定位的意图是创造一个浴室,蒸汽和按摩室的过程,添加一个包围它的周边墙,剥夺了它与外部世界的视觉关系,并把它变成一个由光产生的空间。
虽然酒店处理一个更沉思和实验的关系与周围的自然环境,温泉提供了严格的内向。通过上传你的中层通过一个斜坡从开放的绿色空间进入酒店,水疗中心是相反的,放置在半层。你必须走一个由竹子围成的坡道,在半埋半埋的中间部分之前,预先进入建筑,显然是为了放慢速度,为游客提供庇护。
酒店外部公共空间的流动性与休闲区形成了清晰的关系,然而水疗中心的墙壁由甘蔗作物干燥而成,在建筑水疗中心周围创造了不透明的面纱,阴影和声音,将其困在一个私密和安静的封闭空间。
裸露混凝土的印记和个性为这些地区提供了所寻求的色调构造。光线通过4厘米宽的松木预制混凝土模板表达颜色和纹理的敏感性,成为空间表现力和个性的一部分。

位置:老瓜迪亚,门多萨省,阿根廷
年份:2011
项目团队:Leonardo and Juan Manuel Codina Filice
面积:597.0 m2

