何止是轻奢!
轻奢是指一种倡导“轻奢华新时尚”的生活理念,是一种更尊重生活质量的生活方式,与财富、地位无关,它代表着对高品质生活细节的追求。
房子坐落于美丽的杭州,是传承了法国古典主义与新古典主义的建筑立面风格并自成一体的绿城法式合院。房屋建筑面积近800m2,地下一层地面两层,房屋的前后都有花园,中间有一个大的庭院和狭长的回廊,拥有6个卧室,5个卫生间,地下室独立车库有3个车位。
—— 一层 ——
 
本案定义为现代轻奢风,现代轻奢是将材料、色彩、灯光及元素进行简化,以实用的功能性家具为主,用简洁的视觉效果营造出时尚前卫的家居氛围,用优雅低调最受青睐的高级灰把持全局,使得整体空间显得高雅、深邃、宁静、性感。中性而又低奢的黄铜拉丝材质一直伴随着主旋律而存在,大面积的高级灰会稍显缺乏生活气息,所以在不同的空间中设计师加入了不同的亮色来点缀,在拉开空间层次感的同时赋予了每个空间不同的灵魂。
 
 
一层空间初看被墙壁分割的零零碎碎,动线也非常混乱,丝毫感觉不到大House的气度。首先把所有不必要的墙全部拆除,对空间进行重组。空间的布局讲究主次节奏感,最好的环境给最重要的空间,其次再考虑各个空间之间的互动关系,这样能让居住者之间更加和谐。
 
 
将原本复杂的法式的采光窗改成了通透落地玻璃和折叠门,让阳光肆无忌惮的进入到室内,客厅与中庭自然的融为一体,使得客厅多了一份惬意。
 
 
入户后通过可旋转的橄榄形立柱使玄关与客厅浑然一体,利用旋转的立柱可以任意调节玄关与客厅的视角,这既强调了玄关的独立性又能让玄关与内部产生更多的互动,而且增加了虚实相生的趣味性。
 
地面利用了比较复杂的几何图形来体现空间的时尚感与轻奢。背景墙整面的喷砂铜板彰显出时尚前卫同时赋予空间温度,玄关内长凳、收纳柜、个性的雕塑和抽象画,无不散发着现代气息。
 
原有的客厅与卧室还有回廊打通,形成宽敞透亮的会客厅跟文化区、还有小孩活动区。
 
 
 
 
 
电视背景墙一定是目光所过之处必须停留的地方,整面深色大理石饰面,无论是体量、材质还是色调都是焦点中的焦点。客厅使用了一款非常简洁3D雾化壁炉,有非常好的仿真效果而且不用考虑小朋友的安全问题,空间的品质提升了不少,而且为了让空间更加通透过度更自然,所有的隔墙都采用岛式环形设计。
 
 
 
 
 
 
越过焦点,墙背后是一张超大的手工桌,可供家人一起做些小手工玩游戏,让家人能得到更多的互动与交流,穿过折叠门到达阳光房,空间的通透感十足,内外完美结合,阳光房利用天然文化石和温润的木地板来表达空间的自然与休闲。
 
 
 
 
厨房采用中西厨的形式,让两种不同的烹饪方式分离,早餐与简餐将可以在中岛解决。黑白金的色调搭配让厨房现代感十足的同时又带点小奢华,墨绿色的椅子让空间更加时尚。
 
餐厅的重要性不亚于客厅,考虑到中国人的饮食文化,餐厅采用了大圆桌的形式,在秉承整体灰调的基础上订制橘色的半透明琉璃装饰挂件,它能够随着气流而摇晃,让空间变得灵动而有生机。为了能让就餐更有食欲和趣味,桌面采用黄色的细木纹材质。
 
 
 
 
 
—— 第二层 ——
 
主卧室采用的是同色系的色彩对比,用宁静平和的藏青和蓝色作为点缀,床背景利用抽象水波纹壁纸和圆形挂件让人联想到印象派画家莫奈的《日出·印象》。
 
 
 
女孩房以马卡龙色为主色调,不同层次的低饱和度淡粉、淡黄、薄荷绿进行叠加组合,粉色波点壁纸铺满整屋十足的公主范,阁楼围栏设计灵感源自城堡,这个是属于个人不可侵犯的空间。
 
 
 
男孩房做了一个海盗船的主题,对孩子来说,有了这样的卧室,让他们回房间去再也不是一种惩罚。
 
 
 
 
 
 
 
 
 
 
△卫生间
主卧有贴心的水吧台设计非常实用便捷,卫生间淋浴、坐便独立分离,双台盆设计加大面积的化妆镜,让原本宽敞的卫生间更加通透明亮。
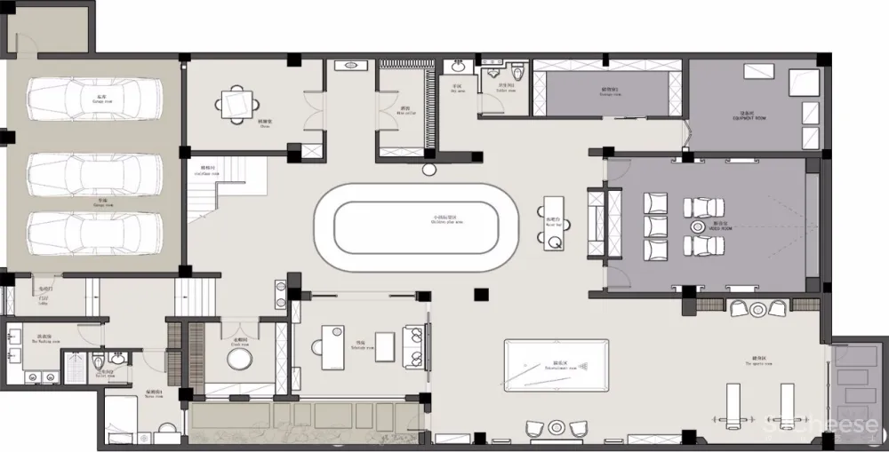
—— 地下室 ——
 
800m2的房屋,地下室竟占了400m2,适宜居住的空间变的有些局促,当设计师第一次看到这房子,地下室就像是个冰冷的仓库。
 
采光最好,窗户最大的空间布置了一个接待性的书房,在书桌位置能一眼看到30m的跑道和健身活动空间,空间之间能起到互动的效果。
 
正如合院别墅强调的室内生活空间跟室外空间统一的一样,设计师沿用该想法,巧妙的把自然环境融入室内,再者用现代的表现手法诠释家庭生活之美。
 
45m2的影音室空间,150寸高清宽幕,能容纳11人观看大片,周末可以约上小朋友来家中看动漫了。影音室有根下挂85公分的横梁和立柱,通过两个U字造型巧妙的将梁柱隐藏在内部,保证楼层高度的同时增加了空间的层次感,影音室运用低饱和度的藏青,可以静静的享受影视的快感。
 
 
 
内部是空旷的娱乐空间,在房屋的中间设计了一条30m长的环形跑道,通过模仿运动场地来刺激人体运动细胞到达条件反射的效果。
 
 
整个地下室用了强烈的色彩进行激烈碰撞,能激发人的荷尔蒙让人保持持久活力,而且具有非常强的娱乐感。台球室和健身区靠近天井位置,能保证一定的通风采光效果,两个功能划分明确但区域过度自然没有明显的分界,空间整体统一。黑白几何图案的地面设计让空间非常摩登时尚,再也看不到昏暗阴冷的地下室。
 
 
 
 
设计方案
 
 
 
 
 
 
 
 
 
 
 
宋雄飞
菲拉设计创始人/设计总监
专业:环境艺术设计
抛弃固有思维  寻求一切可能  让设计回归生活。
宋雄飞,杭州颇有名气的室内设计师,设计的很多作品深受大家喜欢,对高级灰的情有独衷,让他的作品独具特色。2016年创立了自己的品牌公司“菲拉装饰”,专注于室内空间设计,软装设计。带领着一批具有崇高设计梦想的90后团队,一直在设计的矛盾中寻求突破。善于结合生活将空间重组,把空间特色发挥到极致,强调功能与美感平衡,尊重使用者的真实需求。生活方式决定空间形态,为很多业主量身打造了属于他们自己别具一格的家。
作品:《八零印记》(交换空间特邀作品),《吝·色》,《静谧暖阳》,《闲》
 
项目名称:绿城蓝庭伍重院
项目类型:全案
项目地点:中国,杭州
项目面积:800m2
主案设计:宋雄飞
设计机构:菲拉设计
项目摄影:叶松


?