灵感来自环境和城市生活。对隐私的需求,但仍然捕捉到城市、港口和山区的景色。
街道边缘采用了坚硬的混凝土结构,为业主提供隐私。街道立面上精心穿孔的开口允许自然采光和通风。街道边缘的大窗户采用定制的金属屏风,过滤午后的阳光。
黑、白、天然木材等对比色的使用使室内保持了简单和极简主义,让空间感觉明亮。这个颜色托盘在外部和内部都使用。
金属和木材与光滑的抹灰表面形成对比,随着时间的变化,阳光照射在立面上。强烈的几何形状被用作渲染建筑阴影和过滤光线进入空间的媒介。
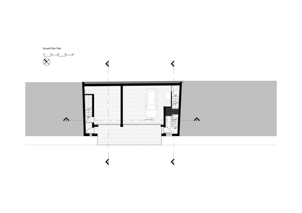
定制的浮动金属楼梯允许垂直流通,这是轻和通畅的。定制的钢屏风过滤午后的阳光,为街道和邻居提供隐私。特色轨道和聚光灯被用来突出整个建筑的建筑和内部特色。
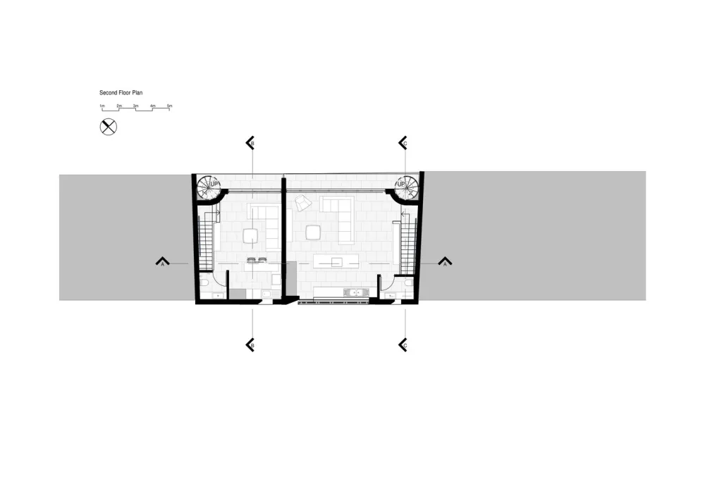
金属螺旋楼梯连接起居空间和娱乐屋顶平台,可以360度欣赏城市、海港和山区的景色。两个豪华的高端城镇住宅,最大限度地利用了空间和垂直生活在城市中心强大的几何形式。



位置:南非
年份:2018
摄影师:Niel Vosloo

