信天翁是一对三层楼高的海滨住宅,面向太平洋,坐落在一条狭窄繁忙的大道上。垂直的鳍片阵列被部署用于多种功能,包括遮阳、隐私、视图的管理,以及调节整体形式的规模。
这个项目完全是关于环境和作为回应的外观。在这个项目中,与海岸公路以及延伸到海滩的接触是至关重要的。信天翁大道(Albatross Avenue)的特色是连续不断的复式开发街区,每个街区都在展示自己的肌肉,吸引人们的注意。信天翁8号的立面,虽然自信地清晰,但通过试图创造一种克制感,并提供一个独特的、连贯的建筑形式,来对抗沿街建筑风格的不和谐。
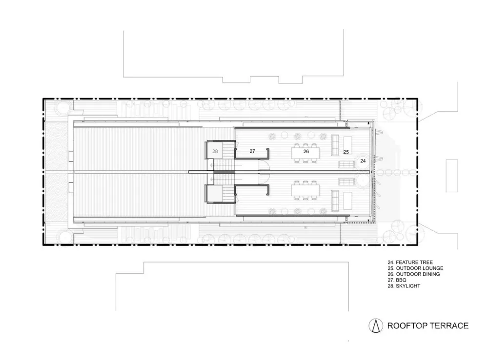
此外,昆士兰东南部的亚热带气候提供了与户外高度渗透的关系,设计通过立面、私人户外空间和屋顶花园提供了高度的联系。太平洋是场地上主要的认知吸引物,因此项目特别强调这些观点。在一个非常紧凑的建筑分配上,该项目试图最大化和平衡生活区与朝向和用户体验的关系。
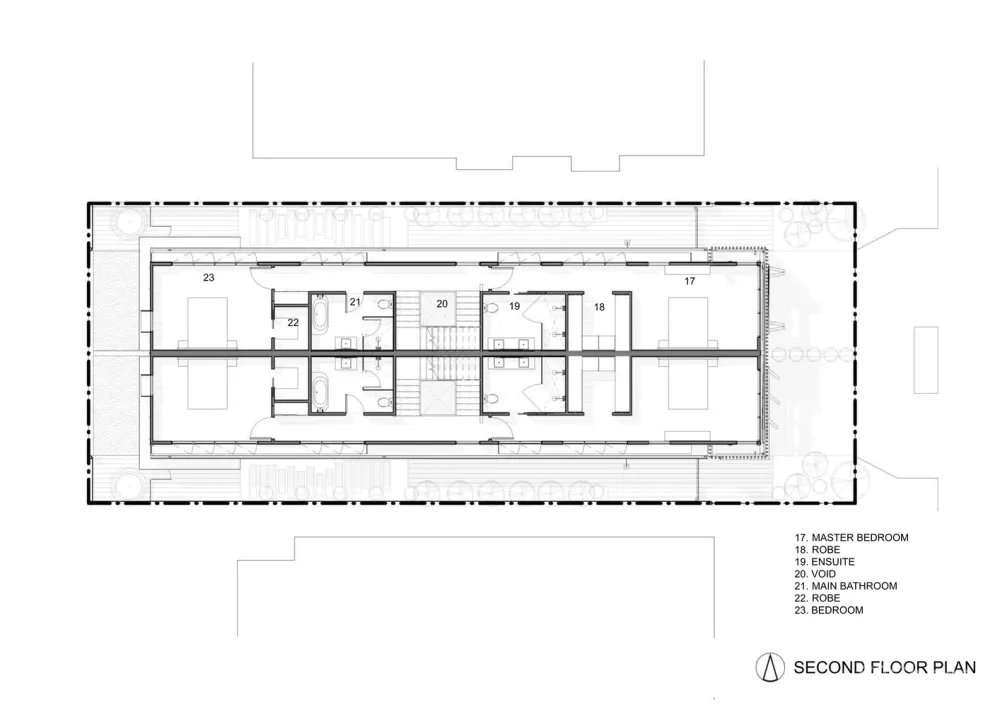
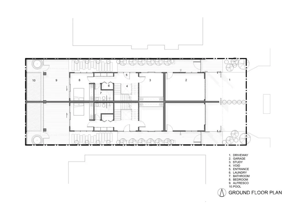
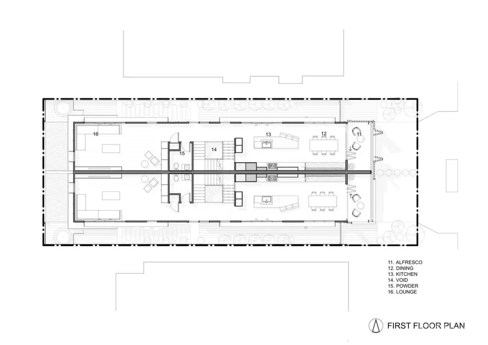
信天翁在空间上是慷慨的,并实现了与环境的平衡,在其郊区环境的隐私空间非常紧密的邻居。项目的内部关系将服务、垂直交通和设施置于核心位置,允许公共和共享空间向室外延伸。居住者享受着与海洋和街道相联系的前景和避难所的结合。从入口到入口的步行街给居住者提供了一种有纪律的繁荣,通过协调的面纱和屋顶花园的占用强调了景观。
该项目试图为信天翁大道的公共领域做出贡献,通过提供一个独特的和连贯的建筑形式,使街道环境在性质上过度多样化。含蓄的立面提供了一个受限制的面具,通过它来阅读建筑,并通过它激活了一种美学的参与,这是在其他地方没有发现的直接环境。整体的高度与邻近的建筑和谐一致,微妙的连接打破了尺度,与居住者和行人进行人文对话。





位置:迈阿密,澳大利亚
首席建筑师:Rory Spence, Jonathan Nelson, Chris Knapp, Joel Hutchines
年份:2019
摄影师:Andy Macpherson

