简约的存在
从70年代到80年代,这个村庄坐落着许多经过改造或新建的建筑。场地是一个小公司坐落在小区内,既有安静的住宅,新旧并存,使村落营造出一种独特的氛围,仿佛是和谐的,动静交织的奇特氛围。
我们想设计的建筑不仅要融入周围的村庄,而且要展示它自己的存在,并提出了漂浮在一楼的盒子型建筑。
从场地的主干道上看,建筑成为周围建筑的背景。这是因为它的意图是被同化和融入周围的环境,而不是暴露它。
当沿着这条路到达建筑的主入口时,漂浮的盒子的简单性创造了一种压倒性的氛围,主入口和楼梯从下面开始。连续的外部空间展示了建筑内在的各种动态元素。它创造了一个安静的氛围和一个积极的模棱两可的气氛。
法律约束和四种思想
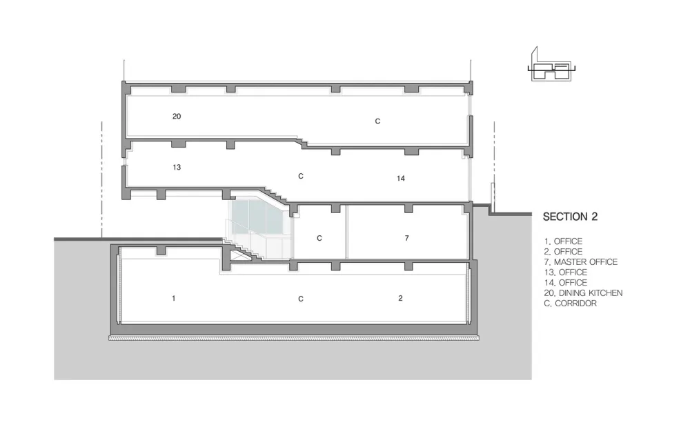
业主为他的家庭和他经营的旅行社预订了一个住宅空间,位于老砖房所在的斜坡上。四层建筑(包括地下两层)需要满足业主的所有要求,限制在50%的建筑用地比、100%的容积比和8m的高度,
为了在一个法律约束较强的小场地中创造一个大的室内空间,我们不得不应对一些挑战。
这些都是为了满足所有4个停车位和8米高度限制内必要的工作空间,使地下空间成为一个愉快的空间,主要用作工作场所,并有效地分隔住宅和工作空间,并连接在一起。
以下四种方法总结了我们对这个解决方案的想法。
首先 底层架空柱
为四辆汽车提供必要的停车位的piloti空间被确认为一楼,但它是作为法律的地下室。场地位于后方约2米的坡地上,利用这一优势,使一层地下室与一层类似。作为参考,一个超过50%埋在地下的建筑在法律上是地下室,即使它看起来像一层
兴起 院子里
在长矩形建筑的中间有一个庭院,它通向地下室的第二层。这个庭院起到了从室外到地下二层的自然景观的作用。该空间不仅有利于地下微弱的自然采光和通风,而且通过将自然从室外吸引到地下二层,解决了地下一层的问题,解决了地下室的环境约束问题。
第三 跳过楼
停车场前浮动空间的高度必须根据地面的平均高度进行适当的调整。由于这个原因,后面的空间在高度上有差异。这样,我们就克服了前地板和后地板之间的差距,我们采用了跳楼的方式,减少了上一层的高度差异。
第四 两个动作
建筑的循环被两个入口和嵌入建筑内部的外部路径分开,以确保住宅的独立运动。这两个动作有时在中点相连,目的是使交流成为隐私保护。
自然的涌入和边界的模糊
这栋楼是销售旅游商品的旅行社使用的。我们想要提供一个空间体验,这样工人和游客可以感觉到他们在外面,而不是在建筑内部。为了实现这一目标,在建筑的南侧中心规划了自然可以流入的内庭院,并在那里种植了竹子。
事实上,白天太阳升起的时候,自然光线从竹林中散射出来,一直延伸到地下室的第二层,给人一种间接的感觉。此外,暴露在外的混凝土,即外部成品材料,被扩展到内部空间,从而模糊了内部和外部的空间边界。选择外露混凝土作为建筑内外主要材料的原因是尽量减少在混凝土建筑结构上附加装饰材料的人为行为,营造自然氛围,让居民感受到空间感。




位置:韩国首尔
年份:2018
摄影师:Woocheol Jung
建筑师:HBA-rchitects


这办公空间真好啊