MOLLY CLUB是一家集酒吧,餐厅,舞厅为一体的餐饮娱乐空间。地处武汉楚河汉街商业街,左边是家私房菜馆,右边是家图文打印店,这条街充斥着各种令人垂涎三尺欲望纷纷广告灯箱,每个商家都把门头装点的特别卖力,我们则希望MOLLY在这条充满烟火气的街头低调些,小LOGO和代表暧昧的红色灯光就够了。MOLLY主打客户群还是当下的年轻人,能激发联想的门头比直接透露产品信息的门头会更讨年轻客户群的胃口。
店面外观
我们挖了一块空间给户外,让室内外联系更加亲密,也可以容纳路人避雨休憩,圆洞形态的折叠门夏天可以全部打开,室内的霓虹和音乐可以向室外溢出更多。细心观察并按下墙壁上的小按钮,镜面的移门打开,里面藏着另一个世界。穿过镜面不锈钢和灯光组成的灯光树林,来到大厅。
圆洞形态的折叠门夏天可以全部打开,让室内外联系更加亲密
由吧台望向酒吧内部入口
入口吧台区
穿过镜面不锈钢和灯光组成的灯光树林来到大厅
大厅的营造希望视觉上有时间错乱的感觉,建筑结构柔和的线条,经常出现在宗教建筑里高高在上的顶部曲,面在Molly却紧挨着酒客的头顶,配上基础几何形态的现代灯光,再加上模仿废墟过后自然生长的野生植物。我们希望这些场景在酒精的作用下能帮助酒客们忘记写字楼的烦恼,沉浸在音乐里,沉浸在一个陌生又新奇的空间里。
大厅
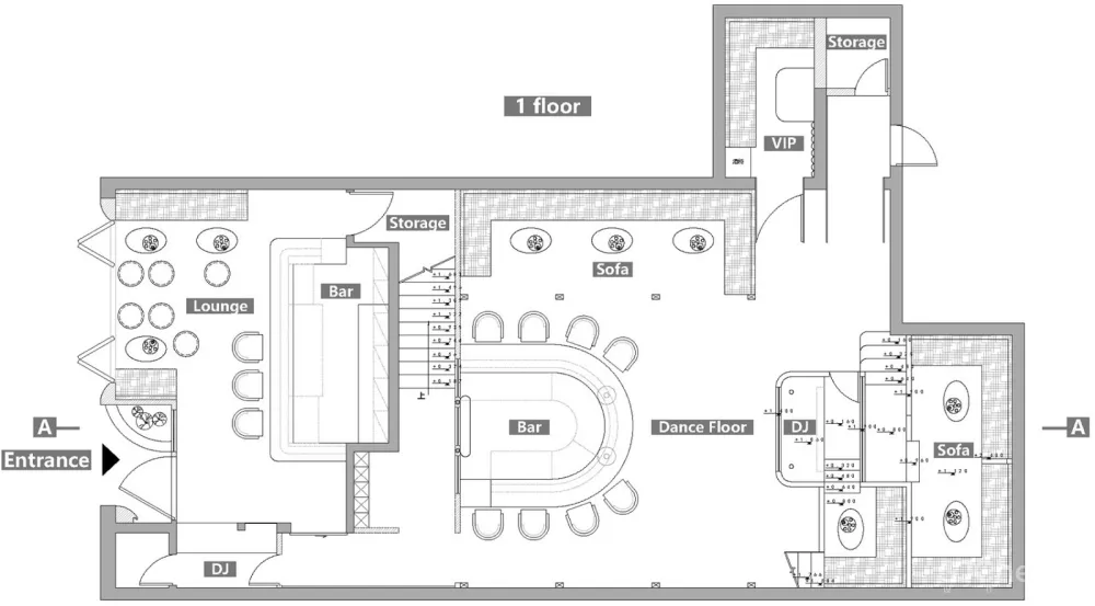
一层舞池
我们把狭小的楼梯营造成一条险峻的峡谷,在这擦肩而过的客人也会多一分亲密,楼梯尽头的镜子再配上一枚落日,下个楼梯也变成了山谷漫步。
楼梯
一层沙发区
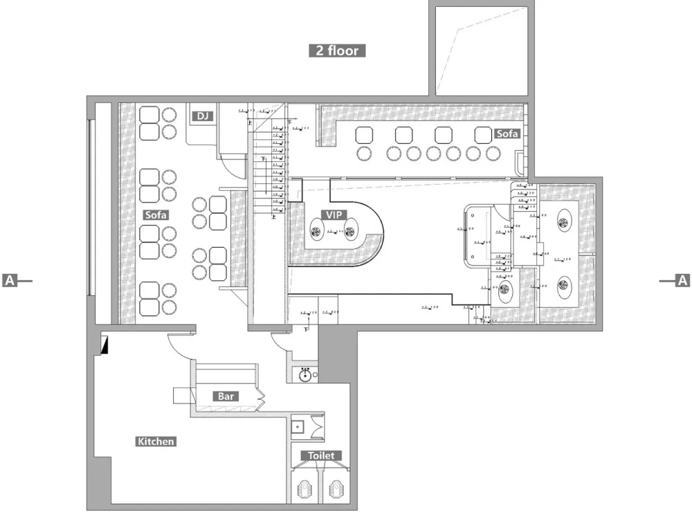
二楼的VIP区域有着全场最好的视角,俯瞰整个大厅空间,DJ和rapper表演的每一个动作都不会受旁人打扰,尽收眼底。二楼包间区域 有着独立的DJ系统,播放着和大厅截然不同的音乐并且互不干扰。下午的时候这个空间会开启暖黄色光源,变成餐厅。晚上则会被跳动红色灯光覆盖,营造暧昧慵懒的气氛,变成以喝酒为主的独立预约制区域。
二层沙发区
二层VIP区
二层餐厅
剖面图
二层平面图
一层平面图
项目名称:MOLLY CLUB
项目地点:武汉市汉街万达环球国际中心4栋6号
场地面积:300平方
设计类型:酒吧室内设计
施工团队:老赵
设计单位:间禾建筑设计咨询(上海)有限公司
设计主创:杨睿
摄影师 :陈铭
舞美设计:keefer
完工时间:2019年8月
公司网站:jh-architecture.net
联系邮箱:yang.design@foxmail.com

