钟灵毓秀 山水巴蜀 – 西江阅售楼处
 
 
巴蜀自然景观资源丰富而独特,尤以山水特色突出,奇山秀水是历朝历代文人墨客的灵感源泉。设计师力图通过抽象和写意的手法体现大山大水的重庆地景特征和人文情怀,在设计上更多地体现艺术感和纯粹性。
前厅接待区与室外空间一脉相承,将水流形态融入景墙,浮雕造型凸显水流美感,展现传统文化与现代设计的融汇无间,恰如墨笔濡染的灵动恣意,又如水的气势涌动,体现中西交融、古今相继的设计概念。
 
 
走廊漏窗的设计,不仅使墙面产生虚实的变化,而且使两侧相邻空间似隔非隔,景物若隐若现,富于层次,具有“避外隐内”的意味。建筑大师贝律铭曾说过,“在西方,窗户就是窗户,它放进光线和新鲜的空气,但对中国人来说,它是一个画框,花园永远在它外头”。
 
 
沙盘区在格局上采用大开大合的手法,用艺术化的方式来丰富空间结构与层次,将传统与现代相结合。
 
 
销售中心“大屋顶”将OLED技术用于灯具设计,设计的意图是给售楼处带来古老建筑的感觉,唤起反思和回忆。OLED灯以表面砖的形状排列,底部由编织在一起的薄棒组成。这种编织结构呈现一种不完整和消失的视觉感受,增添空间的延伸感。
 
 
虚实结合的手法营造出私密安静的氛围,大面积的玻璃落地窗又杜绝了封闭空间的压抑感,空间陈设布局显现了一个别致而优雅的洽谈区。
 
 
 
 
洽谈区整体空间清新明洁,于传统和谐的氛围中,调和些许翠绿色调,糅合轻盈的质感融入空间,半透的磨砂玻璃、拼接的实木地板、缥缈柔和的挂帘,硬装和软装之间呼应自然,营造出生动富有意境而又不失整体的空间调性。
 
 
 
 
“名城危踞层岩上,鹰瞵鹗视雄三巴。”江水回绕,城市傍水依山,层叠而上,依山而建的场景运用在儿童娱乐区再好不过了。像是小朋友你挤着我我靠着你,手握着手,肩并着肩。
 
 
 
 
拾级而上,一步一景,承上启下,为空间引入的自然光,遇上悬挂的精致水晶枫叶,星星点点,缥缈悠然,带来飘逸灵动之美,更为空间带来意境之美。
 
 
 
 
登高而上,闲庭信步,制造自然,在自然中觅得张力,继而回归心灵的感知。似是窗棂透出的光,联系空间内外,更成为一种默契和互动关系在其间酝酿,开阔的视野更接近自然,协奏一曲现代诗意。
 
 
玻璃屏风让空间得以延展,光影不露痕迹的自然绽放,更与洽谈区的挂帘互相呼应,抽象的山水画面更添写意,让色彩在光影之下层次分明,细腻柔和,光彩互生;而水吧区的序列美与此处形成对比,空间的一紧一松,一张一驰,富有节奏之美。
 
 
 
 
以东方的设计语言,“闻香”,“品茗”,“雀鸣”,“妙笔”,等元素串联整个空间,更以传统的中国山水花作为背景,营造了这个古色古香的茶室,渲染着淡雅含蓄的东方韵味。
 
 
 
 
 
 
 
 
五矿铂海院子示范区售楼处
《周礼》有曰:“王有五门、诸侯有三门”。铂海院子项目以北派四合院风格规制筑造,传承中式传统宅院的空间特征,打造“三重礼序,九处庭院”的文化序列。室内设计的定位延续上述庭院规划主旨,中轴御道,三进院落,层层进阶,一进一重景,一进一重礼。
一进 · 门庭之礼
典雅的中式门庭,彰显端庄名门气质,推开两扇古朴厚重的实木大门,迎着石阶而下,进而迈入一方古韵新雅的天地。
 
 
二进 · 入院之礼
径直往前步入前厅接待区,为第二进,屋顶采用传统穿斗式木构架,因地制宜,巧妙融入原有建筑结构中。入口处设有一扇“月亮门”,透过圆形如月的门洞引入另一侧的景观,一步一景,布移景异,引人探幽。
 
 
三进 · 会客之礼
穿过古韵清雅的室外廊道,将视线引至徐徐开启的格栅木门,到达销售中心的核心区域,为第三进。木质线条格栅结合通透、温润的黑色大理石,色彩上呼应得当,又起到隔景效果。
 
 
 
 
 
 
复行数步,便进入大厅,整个空间挑高设计,纵向格局,以高入天花的木制书架为隔断,沿主轴向两侧进行功能分区,同时衔接空间,隔而未断。其间以花艺、盆景、茶盏、书卷、挂画等古典东方陈设铺设,渗透空间每个角落。空间中轴天花上悬挂着大片水晶吊灯,模仿飞鸟的形态,倾泻出粲然光彩,提升了空间的格调。
 
 
 
 
洽谈区大面积落地玻璃窗,借景室外,完整呈现庭院景观,形成一幅自然的框景。室外山石交错、绿植交翠,水流潺潺,徜徉其中,予人一种“偶得幽闲境,遂忘尘俗心。始知真隐者,不必在山林”的心境。
 
 
 
 
 
 
阳光透过金属格栅的缝隙洒向室内,于案几上铺设一条光影斑驳的纹路,几上茗碗瓶花俱备,一窗明静, 一盏茶香,一场有关自然光影艺术的皮影戏。
 
 
 
 
休憩品茗区四面书墙环绕,空间上延续传统博古架为隔断,既产生丰富的层次感,又可在其间陈设卷轴古籍、石器古玩,营造书院的氛围
 
 
 
 
 
 
木制方正的案几上,数枝斜梅幽香淡淡,古典圈椅有序摆放于一侧,壁面镶裹传统屋檐剪影造型装饰,纹路立体精致,提升空间品质,彰显人文底蕴。
 
 
 
 
 
 
拾级而上,二楼空间设置了独立的接待室。缓缓步入屋内,有茶室修静、有墨香氲绕,折叠屏风围筑成一个半私密空间,呈现一幅水墨山川画卷,此中诗意便荡漾开来。“闲倚胡床,庾公楼外峰千朵。与谁同坐,明月清风我。”
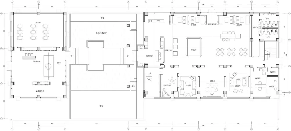
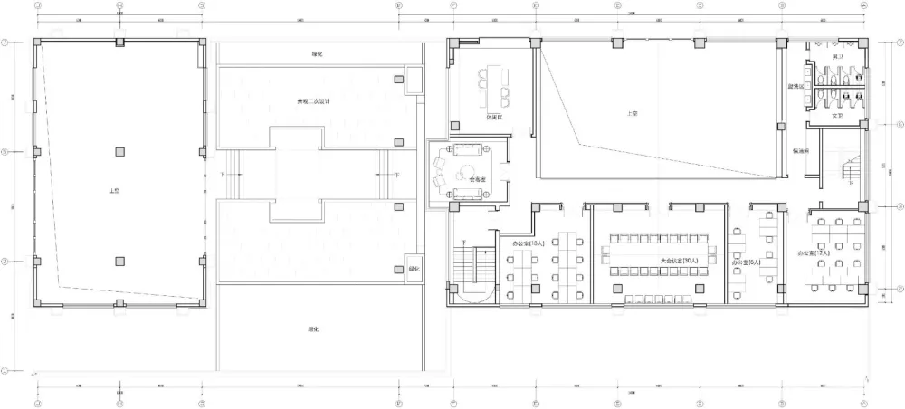
平 面 图
▽
 
 
 
 
 
 
项目名称 | 重庆西彭项目
建设单位 | 重庆昊华置业有限公司
项目地点 | 重庆市九龙坡区西彭
项目面积 |  900㎡
完工时间 |  2018年7月
服务范围 | 硬装设计&软装陈设
设计公司 | 深圳市泛思特装饰工程有限公司
设 计 师 | 王昕
项目摄影 | Mconcept 黄明德


