该项目坐落在一个5000平方米的公寓住宅区,与瓜亚基尔市中心典型的城市住宅形成了尺度上的反差。相互紧挨的体量围绕着场地分布,并在内部形成一个庭院。如果将所有隔墙元素拆除,会得到一个连续的、一体化的庭院建筑。
不同居住空间的分隔通过独立的屋顶来实现,虽然立面是连续的,但形态各异的屋顶起到了定义空间的作用,同时将独立的单元融合到统一的系统当中。
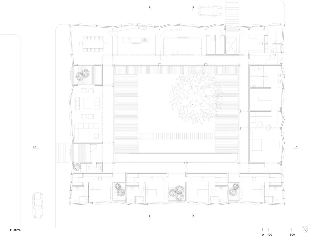
基于这一平面设置,住宅内的空间都围绕在正方形庭院周围,并通过内部走廊相连。庭院将所有的空间从视觉上连接起来,同时保证了每个房间都能享有自己的风景。

▼模型
▼设计手稿
▼首层平面图
▼场地平面图
▼立面图
▼剖面图
位置:厄瓜多尔瓜亚基尔
设计:Assadi
摄影师:Schönthaler

