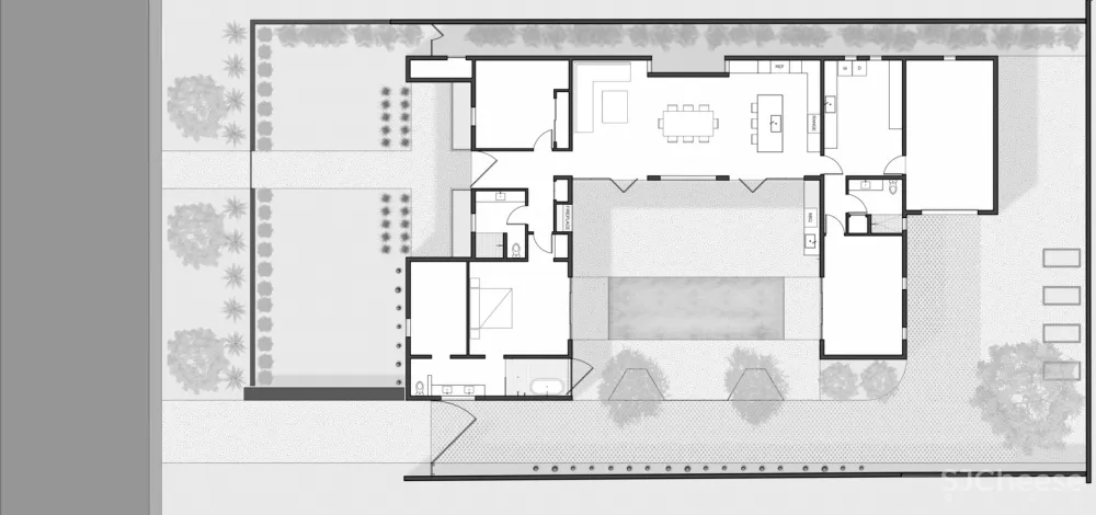
灵感来自著名艺术家格鲁吉亚奥基夫的adobe房屋和庭院绘画、建筑公司牧场我设计了一个现代庭院在美国西南部沙漠的网站前停车场。“编织”是一个新房子,缝合在一起现代便利与西南方言历史街区在上城区凤凰城,亚利桑那州。
Weave设计了两个庭院,一个隐藏在u型平面内的传统私人庭院和一个半公共的前院。前院通过一系列沙漠植物、灰泥墙和钢花盆软化了与街道的过渡。隐藏式条目欢迎你的重新诠释经典建筑元素,如西南椽和latillas编织木天花板,从业主自己的木材厂,并减轻银行的每一边旋转入口门,适合在阳光下浸泡在一个寒冷的天或打招呼的邻居,因为他们经过。
灵感来自Georgia O ‘Keeffe的天井绘画系列,正面立面的体量和材料很简单,让天空和阴影提供不断变化的视觉趣味。私人庭院围绕着一个游泳池,而不是传统的喷泉,在沙漠的高温下降温,同时增加空气湿度,为阴凉的室外房间创造更舒适的小气候。在寒冷的沙漠之夜,有一个钢壳的户外壁炉。私人庭院还设有一个挂在墙上的户外厨房和定制的钢花盆,在两棵遮荫树之间为躺椅开辟了一片区域。
大房间由厨房固定,厨房里有白色橡木橱柜、打磨过的大理石柜台和定制的钢罩,通过双折叠门通往私人庭院。通过从外部凹入大房间的中间三分之一,餐厅被定义为通过可操作的窗户向客厅和厨房区域提供漫射光,有助于交叉通风,并保持几英尺外邻居的隐私。白色橡木橱柜延续了整个住宅,包括打磨光滑的大理石覆层主浴室,主浴室设有一个步入式淋浴区和一个铜浴缸,从私人撤退到室外体验,房子里有第二个定制旋转门,由身份建筑定制而成。
和Georgia O ‘Keeffe的作品一样,Weave也源自对线条、颜色和构图的关注,用简单的材料、独特的几何形状和沙漠天空创造了一个现代住宅,旨在重振美国西南部的住宅建筑。




位置:美国亚利桑那州凤凰城
面积:2543.0平方英尺

