坐落在上海浦东迪士尼旁边的一个小村子的篱外时光的圆的是仅有16个客房的三层精品民宿酒店,是由围合的四栋民宅和猪舍改建而成。
内向的院落是这个设计的出发点,西面用石材高高垒砌的院墙把城市拉开的更加遥远,北面与两栋建筑平行的残缺围墙把邻近的村落隔离开,逼近更加疑惑、神秘、削弱欲望的内院空间。
为了让空间产生张力与质感,从原有建筑延申出了几道内院,一个是南北向的一个东西向的。这使得一层的客房不仅变得更加安静与私密,同时也跟域外的城市产生了两极变化。客房透过院子通过高低错落及交错的院墙与外部有了选择性的对话,将域外的城市拉开的更加遥远。
利用一个光滑的逻辑将整个建筑用另一种简单的逻辑和材质包裹起来,两个屋顶连成一片、前后左后突起变化的木屋面有了动感,木格栅之间穿插的白色肌理将白色墙体与白云联系起来,似乎整个建筑都漂浮起来。中间向上的坡道将视觉移向天空,恰到好处的坡道尺度让行走的客人有一种穿越乡间小路的感受并与后面的村落形相呼应,钢板的过度有了戏剧性的变化也让这个行走更加凝重狂野。
走到尽头超大尺度的框洞将坡道和蓝天连接在一起,让你穿越一个失去记忆的时空隧道。一道道不断变化的白墙抹去过去繁琐的记忆,并引导你更好的把风景带入你的视觉范畴。
二层客房大小不一的窗洞和落地的窗户更好的让室外的风景引入室内形成差异化的风景。南北通透的窗景将河对岸的竹林和北边闲置绿地联系在一起,让客房暴露在更加荒野的自然中。
在上海有那么一个地方,可以让你忘记时间、忘记地点、忘记烦恼、忘记自己……






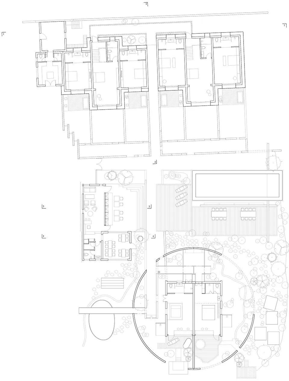
▼首层平面图
建筑师:元秀万建筑事务所(ams)
地址:民义村、浦东、上海
主持设计师:元秀万
设计团队:元秀万、邹赫、金宽勇
建筑面积:1000平方米
占地面积:1200平方米
设计时间:2018
建造时间:2018
建筑、室内设计:元秀万建筑事务所(ams)
景观、灯光、软装设计:元秀万建筑事务所(ams)
业主:上海旌秀商务咨询有限公司
摄影:张冉、元秀万

