深入水下5米,以全新视角观察海洋生态:2019年3月20日,欧洲第一家水下餐厅在挪威Lindesnes正式营业。该项目位于挪威海岸线的最南端,来自南北两个方向的洋流在这里交汇。海洋生物在这里的咸水中大量繁衍,为场地赋予了天然的生物多样性。“Under”不仅仅是一间水下餐厅,它还以海洋生物研究中心的身份对野生物种以及挪威南端嶙峋的海岸线表达着敬意。
在挪威语中,“under”具有“below”和“wonder”的双重含义。这座34米长的单体建筑一半沉入大海,底部被支撑在5米深的海床上。结构设计旨在使建筑随着时间的推移与海洋环境形完美融合,粗糙的混凝土外壳将逐渐具备与人工鱼礁类似的功能,使海洋中的帽贝和海藻都能够栖居其中。厚实的混凝土外墙直接倚靠在崎岖的海岸线上,能够承受不同级别的压力和冲击。餐厅的巨大窗户犹如一架水下潜望镜,可以观察到海底在不同季节和天气条件下的变化。


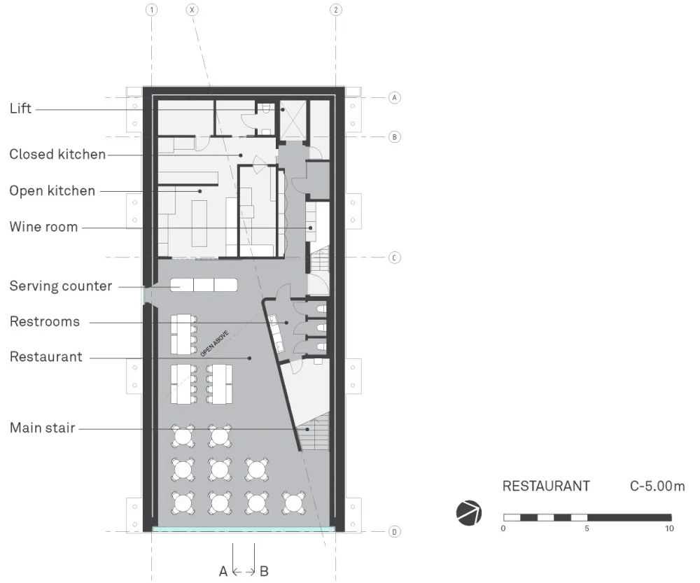
餐厅每晚可招待35-40名客人,用餐空间受到半米厚的混凝土墙的保护。餐厅的经营理念是采用优质的本地食材,尤其是可持续野生食材来为客人创造难忘的美食体验。原本来自挪威著名餐厅Måltid的丹麦籍厨师Nicolai Ellitsgaard担任Under餐厅的主厨,并带来了一个包含16人、拥有顶级米其林餐厅工作经验的国际团队。
Snøhetta的创始人兼建筑师Kjetil Trædal Thorsen表示:“Under餐厅是我们所做的边界实验的自然成果。作为挪威南部的新地标,它展示出了代词与介词的一种前所未有的组合,挑战了人在环境中停留的必要条件。在这座建筑中,你会发现自己可能处于水下、海底,或者陆地与海洋之间,这会让以一种全新的视角和方式来认知世界,不论是在水面之上还是水面之下。”
Lindesnes以极端的天气变化闻名,一天之间可能会经历数次从风平浪静到风雨交加的过程。然而,当客人们到达场地,进入安静的橡木门厅之后,便会立刻忘记户外的无常天气。丰富的室内空间营造出温馨而友好的氛围。以织物覆盖的天花板借鉴了海上落日的色彩,随着客人走下楼梯,室内的色彩变化也隐喻着从陆地深入海洋的过程。精致的天花板纹理进一步为室内带来宁静的感觉。
在5米深的位置,宽11米、高3.4米的水平窗户带来壮观的全景水下视野,将餐厅中的客人与外面的野生动物联系起来。
该项目的另外一个重要部分是其对于海洋研究的积极影响。餐厅将欢迎跨学科研究团队在立面内外安装摄像机等各类测量工具来研究海洋生物和鱼类行为,观察并记录餐厅周围的物种数量、行为习惯和多样性。研究的目标是收集可被编入机器研究工具的数据并定期检测重要海洋物种的种群动态,从而对官方的海洋资源管理创造新的契机。
主厨Nicolai Ellitsgaard和他的团队将定期与海洋生物学家对话,以便确定应该在何时、以何种方式进行捕捞,才能够达到最佳的可持续性。他们希望依靠建筑本身来获取餐厅菜单上的食材。厨师团队和研究人员还将共同合作,使更多鱼类聚集到窗户边缘,以便海洋生物学家进行更加密切的研究,同时也为餐厅的客人带来有趣的景观。

Under是一场由对比构成的叙事:陆地与海洋、水上与水下。该项目突显了陆地与海洋之间微妙的生态平衡,并提醒我们以可持续的方式进行负责任消费。通过关注陆地和海洋生命的共存,Under为我们对周围关系的理解提出了一种新的方式,不论是在水面之上、水面之下,还是生活在海洋周围。
平面和印刷品设计
场地平面图
结构拆解图
入口层平面图
夹层酒吧平面图
餐厅层平面图
立面图
Client: Lindesnes Havhotell (Stig Ubostad and Gaute Ubostad)
Architect: Snøhetta
Entrepneurs
Submar Group – delivery of marine operations
BRG Entrepnør AS – main contractor
Reynolds Polymer Technology – acrylic windows
HAMRAN Snekkerverksted AS – wood cladding indoors and outdoors and furniture producer
ERV AS – piping and ventilation work
Tratec AS – electrical installations
Stålesen Mekaninske Verksted AS – indoors metalwork
Advisors
Asplan Viak AS – structural consultants for the entire project
CoreMarine – consultants on wave impact
Drag AS – re consultants
Brekke & Strand Akustikk AS – acoustic consultants
ÅF Lighting – consultants for lighting and lighting concept indoor and outdoor
Trond Rafoss – marine biologist
Building dimensions
Gross area: 495 sqm
The restaurant is situated 5 meters below sea level, and protrudes 10 meters above the water’s surface
Total length of the building: 34 meters
Incline: 20 degrees
Dimensions of horizontal window: 10,8 x 3,43 x 0,27 meters
Weight of horizontal window: 12,3 tons
Collaborators:
Kvadrat – textile design, producers of fabric and Soft Cell acoustic panels
iGuzzini – producer og lighting fixtures
address: Bålyveien 50, 4521 Lindesnes, Norway
website:
under.no
snohetta.com

