55㎡二居室单身公寓,由PLAN-K Studio设计,设计师Dmitriy Zhyltsov采用高级灰为基调,搭配原木,石材,巧妙采用了一些灵活的设计,营造出了实用、整洁、干净、敞亮的生活空间。
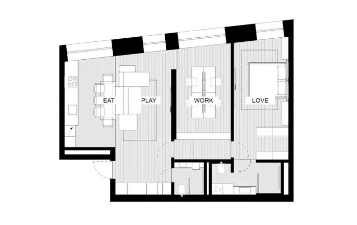
客厅的电视背景墙,采用面积灰色更显高级。客厅与餐厅厨房一体化的设计,兼顾双方向采光需求的同时,能更好的照顾家庭成员之间的互动交流,加强了厨房环境的功能实用性。
卧室的整体布置简单和谐,没有多余的色彩,让空间具有独特的艺术气质。
工作室以原木色为主,利落的线条彰显端庄稳重的气质。小型书架墙知性文雅的气息透露出一股沁人心脾的味道。
在这个卫生间里,充分利用每一个角落,并将洗衣机嵌入空余角落,简易收纳柜,让这个小空间也能发挥不小的作用。
Dmitriy Zhyltsov
PLAN-K Studio,在设计和实现方面拥有独特的专业知识,在有限的空是里让人感受明亮、温馨、细腻的情绪,以获得舒适的吸引力。
LOVE, WORK – ROBOTS
公共区域包括一间厨房客厅,一间办公室和一间客用浴室。
公司有机会聚集在一起讨论项目,一起工作,当然也要休息一下。
主卧室与公共区域之间由一条小走廊隔开,并拥有自己的更衣室和浴室。
即使客人利用客厅的组合沙发并过夜,这也可以保护公寓所有者的隐私。

