建筑事务所Paola Bagna受到委托,将科特迪瓦首都阿比让(Abidjan)的前州长的住宅改造为一座四星级的精品酒店。本项目从象牙海岸上的中世纪风格住宅和热带环境中汲取灵感,以低调而奢华的材料和形式吸引着客人。
该建筑坐落于一片棕榈树林和热带植物之间。尽管在防水和建筑保护方面存在着些许问题,但这座由柯布西耶设计的瑰宝般的建筑仍然保留着其独特的吸引力。在过去的三年中,建筑事务所Paola Bagna主导着这座建筑的翻修进程,将其改造为了一座精品酒店,这座酒店拥有17间客房以及接待区、餐厅、会议室/活动室、酒吧、养生区、室内外休息区以及一个游泳池。
在创意总监Anette K Hansen的指导下,该酒店的设计概念在尊重住宅原有的建筑特色的前提下,结合了世界各地大都市中的高端酒店的舒适性和风格。设计方案突出了其原址的历史,同时使用当地材料,在非洲现代的生活环境中创造出一个低调的奢华酒店。这个2,000平方米的酒店由三个部分构成,它们分别是:主别墅(Villa Principale)、儿童别墅(Villa Enfants)以及客居别墅(Villa Salon)。酒店的许多区域都通过设计,模糊了室内空间和美丽的室外花园之间的空间界限。
健身房和养生区位于原建筑的原厨房处,拥有良好的自然通风以及朝向花园和新泳池的景观视野。游泳池又长又窄,客人们可以在其中进行来回往复式的游泳运动,同时还在炎炎夏日里为客人们提供了一个消暑空间。当地树木的叶子和开花植物则为泳池空间提供了遮阴处和装饰。
花园充满了自然的意趣,给人一种放松之感。建筑师还在花园的地面上铺设了新的灰白两色图案的地板,不仅在室外空间中创造了一种视觉联系,更将室外空间统一了起来。
主别墅 | Villa Principale
如今,主别墅由接待处、餐厅、酒吧、会议活动室和三间套房组成。建筑师对原建筑的室内外空间布局进行了改造,以实现最佳的流线和舒适的空间比例。鉴于原车库的位置便于运货和清除垃圾,建筑师便将其改造为了酒店的厨房。
根据空间功能的不同,地板和天花板也不尽相同。建筑师修复了原有部分地板中使用的Carrara大理石和Nero Marquina大理石,并在其中加入了新的Tigerskin大理石和浅棕色的石灰华。剩余部分的地板则采用鱼骨图案纹理或黑白棋盘图案纹理进行铺设。此外,建筑师还对前石膏天花板的几何图形进行了重新设计。餐厅中的彩色玻璃桌面则可以映照出这些几何图形。置身于主别墅的酒吧中,人们往往会模糊了室内外的边界,分不清自己是在室内空间,还是外部环境之中。酒吧位于别墅的首层,俯瞰着花园,可以通向会议/活动区和露台。白天,客人们可以在铺设着黑白Nero Marquina大理石的餐厅中消磨时光,晚上,则可以在Super White Quartzite酒吧聚会。室内家具方面,建筑师结合了由当地材料制成的定制家具和手工挑选的非洲复古家具。更多的国际化家具则出自当代非洲设计师如Jean Servais Somian和Abderaham Haidara之手。
部分卫生间的墙面采用由艺术家Anne Derian设计的彩色马赛克砖,并辅以从原有建筑中保留下来的瓷砖。
儿童别墅 | Villa Enfants
装饰风格的栏杆将客人们从主别墅一路引向儿童别墅。建筑师修复了装饰风格的栏杆这个引人注目的金属构件,并将其运用在了整个酒店空间中。
前儿童别墅中的10间卧室都属于同一个家庭,但是都各不相同。室内采用当地的木材、埃塞俄比亚皮革、彩色天鹅绒和黑色的粉末涂层钢,突出强调了客房中定制的家具和配饰。黄铜配件则被应用于灯具、柜门把手、地板踢脚线和床头板处。人字纹图案的彩色瓷砖和当地制作的水磨石则提供了室内环境的背景。
客居别墅 | Villa Salon
客居别墅内独特的饰面不仅为空间增添了一丝温暖的感觉,更节约了资源。建筑师将原客居别墅改造为了四间卧室,并在其地面上铺设了由原建筑中的大块剩余大理石和新大理石块构成的水磨石地板,以供家庭和小团体入驻。该区域的主要特点是一个共享起居空间。所有的客房都设有私人露台和小型庭院。
建筑师在原建筑的各种令人意想不到的地方,如不协调或有裂纹的瓷砖、被染色或受损了的木材等中发现了美。这种美学概念影响了Lepic精品酒店的的设计:新的设计元素突出了原建筑的特色,从而为这个西非的建筑瑰宝带来了新的生命。

▼总平面图
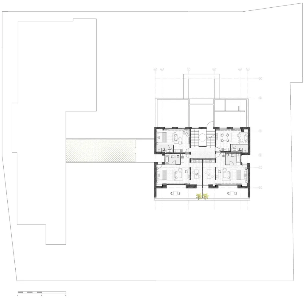
▼二层平面图
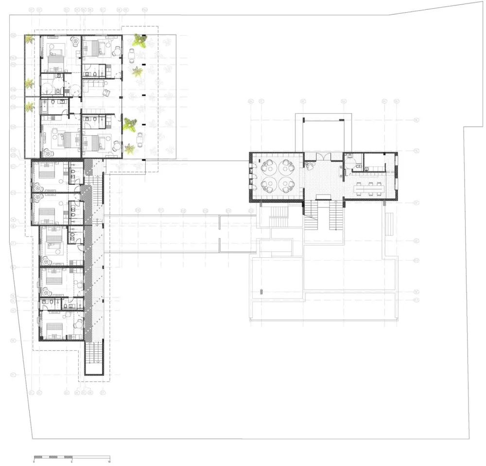
▼一层平面图
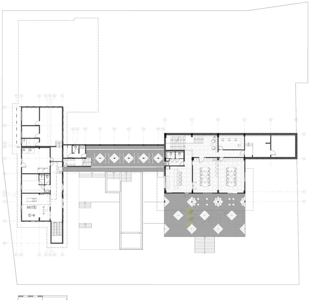
▼-1层平面图
▼-2层平面图
设计公司:Paola Bagna
位置:科特迪瓦
类型:建筑
材料:大理石 水磨石 木材 金属 粉末涂层钢 黄铜 瓷砖 马赛克 皮革 天鹅绒
标签:Abidjan renovation Rue Lepic 改造 象牙海岸 阿比让

