寒暄之家 / WARP architects
在建筑师的职业生涯中,可能会经常遇到设计住宅的委托。随着项目的发展,在一个确定的空间中通过一组图纸表达设计愿景当然是设计过程中的主要任务之一。虽然建筑师有一定的图像表达能力,但客户有时不能理解所有的图纸。超越二维平面、剖面和立面的轴测图是项目空间表达的有效工具。即使轴测图也是在二维纸上呈现的,当加入三维的概念时,它能让那些不熟悉技术图纸的人更好地理解。
一个白色房子,一个生长的家 / 刘恺
考虑到这一点,我们编辑了一套包含60个住宅设计轴测图的合集。展示了各种线条、风格、颜色、纹理和技术,图纸分为四组,希望能对您的下一个住宅项目有所启发。
5 住宅 / Arquitectura en Estudio
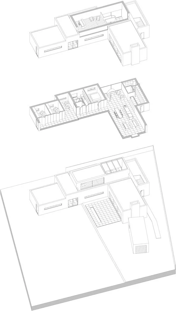
艺术型
图纸可不是硬性的,不需要遵守预先制定的指导原则。除了解释内部空间和项目场地之间的概念,它拥有更大的可能性。
艺术性的轴测图可以帮助建筑师向客户传达他们居住在项目中的体验。
4x6x6 城堡 / dua studio
711H 住宅 / BLOCO Arquitetos
Aidar 住宅 / Panorama Estudio
ALM 住宅 / Estudio ODS
AVE 住宅 / Martín Dulanto
Bloco 住宅 / nimtim architects
Claudios 住宅 / Arquitetura Nacional
Brillhart 住宅 / Brillhart Architecture
Cupe 住宅 / MNMA Studio
D 住宅 / KIENTRUC O
da Eira 住宅 / AR Studio Architects
Dique Luján 住宅 / FRAM arquitectos
em Cotia 住宅 / UNA Arquitetos
Equestre 住宅 / Luciano Kruk
Inverso 住宅 / D+A
L型住宅 / Dellekamp Arquitectos
Jardim 城堡 / CONNATURAL
LT 住宅 / MAIN OFFICE
Mariana 住宅 / Fittipaldi Arquitetura
Matryoshka 城堡 / Shift Architecture Urbanism
na Mantiqueira 住宅 / UNA Arquitetos
Morro 住宅 / Abdenur Arquitectos
sobre Caverna 住宅 / zerozero
Riacho 住宅 / Architecture BRIO
SOL 住宅 / atelier data
Tacuri 住宅 / Gabriel Rivera Arquitectos
TH 住宅 / DANstudio
Vermelha 住宅 / extrastudio
Vila Roca 住宅 / Bloco Arquitetos
JJ&S.M 城堡 / Atelier Mima
Guadalquivir 住宅 / dérive LAB
竞园22号楼改造 / C+ 建筑设计事务所
Mi Casa / Studio [+] Valéria Gontijo
510 住宅 / Johnsen Schmaling Architects
C4 住宅 / _Bassico Arquitectos + MV ARQUITECTOS
Campestre 住宅 / TAAB
do Surfista 住宅 / Java Architecture
Dodia 住宅 / NUDES
GAS 住宅 / OOIIO Arquitectura
Familiar 住宅 / Ruetemple
J2 住宅 / Lindvall A & D
Machagua 住宅 / Croxatto y Opazo Arquitectos
Kiss 住宅 / Lazor Office
MT 住宅 / Telles Arquitetura
Duna 住宅 / Luciano Kruk
N1 住宅 / Jonas Lindvall A & D
na Prosperina 住宅 / Fabrica Nativa Arquitectura
Palmeiras 住宅 / Abraham John Architects
OL 住宅 / ZD+A
Campo Belo 住宅 / Jamelo Arquitetura
para um criador de cavalos 住宅 / Diego Baraona
Pomarino 住宅 / Sommet
罗德住宅 / Pezo von Ellrichshausen
Prado d’Água 住宅 / Jackson Ingham Architects
灯塔与水井中间的住宅 / Harsh Vardhan Jain Architects
北京白塔寺胡同大杂院改造 / B.L.U.E. 建筑设计事务所


謝謝分享