“曲”则“多姿”;“直”则“刚劲”
“藏”则“浑成”;“出”则“爽利”
书法连绵通贯节奏轨迹的变化
其构成的生命是气象万千
如「空间」表达
中餐的静谧,西餐的精致,火锅的热闹
打破固定的方向
「变」
项目取名「风夫子」,顾名思义风雅先生
「风雅」与「火锅」的结合
打破惯性思维的「热闹」与「红火」
空间以「现代元素」引入建筑设计概念
带给人最根本的体验
融已于景,融食于景
步入「风夫子」,风雅之物、生活之趣皆可体现,就如当下时常挂在嘴边的「生活需要仪式感」,在吃的过程中让视觉也得到享受,食客潜移默化的成为「设计」的部分,「空间」契合当代的发展,便会拥有着长久的生命力。
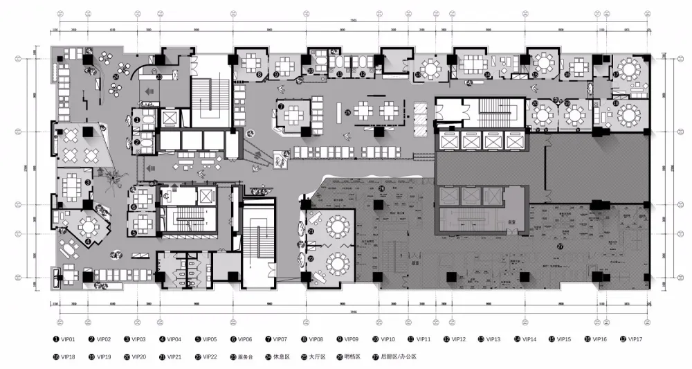
「良田美池桑竹之属」的桃花源,「曲径通幽处,禅房花木深」的高林,都是栖居之处的风雅。就如室内设计的分区布局,风夫子面积1800平米,设有两架电梯双入口,分为三大用餐区域,2个休息区域、21桌卡座与22个包间,同时可容纳300位左右食客同时用餐,满足各种人数和用餐要求。
设计的灵感来源通过提取、转化、升华以不同的呈现手法展现为最终的空间表现。「一步一景」是风夫子的最大亮点,采用透景,露景的设计手法,打造三大不同的景观面,前厅「东方园林」的气韵感,后厅「金属色彩」的现代感,包间「断壁残垣」的豁达感,高低错落、层次丰富,若隐若现沉浸于有趣的空间之中。
穿过大厅通往走廊,火锅的感觉越被淡化,一径通幽,站在分叉口,看向不同的方向,呈现的景观亦有差别,铸就「只在此景中,巷深不知处」的朦胧空间感。
空间呈现更多是材料的语言表述,采用水泥肌理、红砖、荒料石材、做旧铜板等较粗矿的材料,搭配细腻的艺术涂料与平和的原木,配有竹子,假山,枯树,水景等景观,整体空间鲜明且富有动感,贴近自然,延续自然于整个空间。
诗性雅趣的设计与美食热闹的对比交融,抛开了商业的附和,筑成独立具有意境的艺术空间,「似奇反正」,空间在「变」化中求统一,无论如何「变」,食客们「围炉聚饮欢呼处,百味消融小釜中」都是我们设计的初衷与最终目的。
▲平面 / Plan View
▲模型 / Model 3D
项目名称|风夫子
项目地址|中国郑州
完成时间|2019.02
项目面积|1800㎡
主案设计师|沈嘉伟|集嘉设计
执行设计师|唐勇|集嘉设计
摄影师|何振环
主材|水泥肌理、红砖、荒料石材、实木

