反思、惊喜、颠覆传统光学存储的美学与功能逻辑。总的来说,挑战在于将传统的太阳镜和眼镜销售转变为产品曝光和客户生产方式的新视角。与概念设计同样重要的是,工作的成本是大多数架构决策的指导线。每平方米工程的预估起价应比市场平均成本低60%。
产品的感知和店铺的布局应该参考美术馆:产品曝光和制作故事的中性基地。

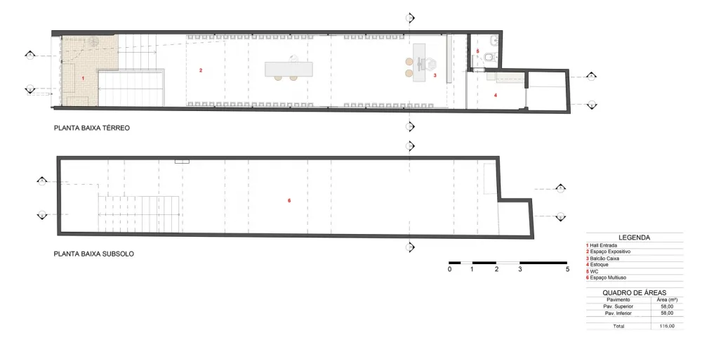
作为“像素”在墙上,眼镜的类型和名称将取代传统的货架和/或展示柜。贴在墙上的文字会显示出对这个品牌和产品的好奇。

由于预算的减少,我们决定将大部分的资源运用在两个方面——入口大厅和“画廊”。我们使用石膏,水泥地板和楼梯,led照明。在大厅里,目标是创造一个温暖和诱人的氛围。一个光线较暗的区域,墙上有植物和图片,地板上有Peroba木,应该传达出“家”的概念。除了主楼和入口大厅,我们还设计了地下空间,以松木结构为基地进行摄影展。

这个项目的“好主意”就是所谓的浮动画廊。一条“展示隧道”,四面松松,相对于店铺的其他空间采光较好,应能引人注目,激发街上行人的好奇心。盒子的透视和照明设计引导了流动的视线和方向。由于在店内的经验,我们可以了解一些历史上的眼镜是如何生产和实验产品在不同的镜子。就在柜台后面,我们准备好了存货。为了解决客户区域库存模型数量的疑问,我们使用了半透明面板。因此,不需要移动到那里就可以控制。腈纶织物将堆积的收藏品分离成纸板箱。在较低的楼层,一个免费的植物允许多种用途,从摄影展览,课程和活动。
为了使每个项目具有独特性、永恒性、对品牌和客户期望的忠诚,我们致力于创造性的合作过程。品牌的设计师和业主在这个项目中参与的非常重要:他们共同负责家具的创作。从建筑到家具,人们都关心无污染。商店的原始结构被保留下来,并被充分利用,为最终的氛围增添了美感。

地址:巴西
年份:2017
摄影师:Ilana Bessler

