这个项目是位于台北市旧公寓的aufait发型沙龙店,与发型师沟通的过程中,充分理解了剪发行为所需要的使用配置,在97平方米的空间中我们将发艺视为一种空间铺陈的表现手法,由里到外将空间裁剪、打薄,重新排列沙龙空间的可能性。
也思考旧公寓常因为现况既有的条件是否影响动线,而面临的保留或变更等选项,但这样的考量使用在规划时,产生了因地制宜的有趣配置,并藉由还原发艺形塑的过程来规划空间的呈现方式。
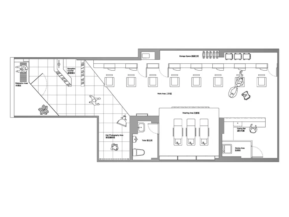
将空间里旧有的装饰褪去,重新想像空间经过裁剪后的样貌,分别以入口休憩、接待、工作三个区块呈现,以此划开新的空间层次,从中萃取主次动线的排列,首先以暗色调的入口作为缓冲,接待区块则采用材质转换的方式跟入口连结,并结合发型摄影棚形成独立的空间断点,工作区块则是由入口较为粗旷的暗色调介面接续至剪发空间,使明亮的接待区块成为入口和工作区的中介过渡,同时也让视觉有效的聚焦,并运用色域交界的空间纹理带给使用者显著的分区冲突感,构筑沙龙空间的新体验。
整体形象以俐落的线性剪裁贯穿,由入口立面对应到木质门把再由接待柜台延伸至隔屏,以垂直的斜切面呈现,使得外部视觉不容易直视内部,并透过反射感较为模糊的金属材质提高物件柔和的轻盈感,让面积较大的固定物件经过裁剪后的排列,在空间中保有流畅的穿透性。
工作区在镜子后方各自隐藏了独立的滑动式收纳衣柜,让顾客在剪发时能拥有自主性较高的收纳隐私,同时也将线性的剪裁方式,由镜柜延续至染剂调色吧台以及冲洗区隔屏,让工作空间保持一致性的沉稳色调,跟全白色调的接待空间有所区隔,把空间里较需要隐密性的剪发视觉重新还给享受发艺沙龙的顾客。经由裁剪后的平面规划,将以两种色块排列,区分空间的使用方式。
以照明配置将空间的明暗色调点缀的更加丰富,强化空间的视觉层次,使得物件在经过裁剪后的间隙,能在观看时从不同角度产生非定性的空间表情。
以线性切面延续开放式空间的同时,我们也将各种隐私的考量纳入规划。
入口空间以斜面设计作为开放式休憩区,让接待空间带来更多的缓冲以及延伸效果,并考量作为发品课程使用时,因应临时座席的产生所需具备的收纳条件,以不影响工作动线的情况下,有效利用既有的畸零空间,安排一个发型摄影棚,并在工作镜柜体的后方隐藏了收纳空间,专门提供推车和折迭课椅的储藏使用。




建筑师:zohome
项目位置:台北, 中国台湾
主创建筑:WEI-PIN WU, CHAO-YANG CHEN
建筑面积:97.0 m2
项目年份:2018年
摄影师:Hey!Cheese

