位于斯德哥尔摩的瑞典建筑与设计中心ArkDes的新工作室画廊Boxen是一款功能强大的机器,可用于快速变化的实验性展览。它是一个可以被参展商和观众从内到外、从下到上使用的整体结构,作为一种触觉上的、身体上的吸引人的体验。白盒内部的空白画布与外表面的链状铁丝网形成对比,设计用于非正式的展览展示,有效地增加了可展示的墙壁空间。
Boxen博物馆位于19世纪的两个军事演习大厅之一,在20世纪60年代被用作文化场所。博世为博物馆的空间星群增添了实用主义建筑的新元素。一个坡道环绕着画廊,允许参观者从空间的多个角度观看展览。通过这种方式,人们被定位为盒子外部表达的一个完整的部分。当坡道通过空间上升时,画廊和周围大厅之间的特定空间关系出现。
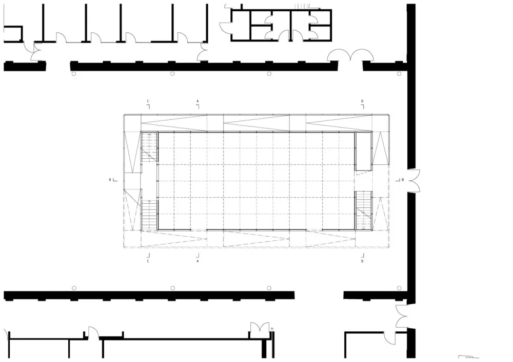
Boxn中心位于展厅中央,毗邻常设展厅,通过主大厅对外宣布,直接与临时展厅相连。开口提供了一个自然的流通过画廊和更广泛的博物馆。从锻splan的主入口,可以看到整个博物馆展览厅的远景,在Rafael Moneo ‘s horna达到顶峰。
Boxen由预制的标准型钢结构建造,内部内衬桦木胶合板和白色石膏板,箱体由波纹钢屋顶覆盖。主结构,与柱在定期间隔,构成画廊的主要框架,并对外公开。
从主结构悬臂,坡道从主开口开始,经过一个大的圆形开口的观景台,并以延伸整个画廊的阳台结束。从这个阳台,一个隐藏的楼梯允许游客重新进入画廊本身。屋顶从墙壁上升起,连接展览空间和周围的大厅,允许自然光线进入室内主空间。
室内是一间高而对称的白色房间,有三扇门通往。它的特点是减少了视觉表达和宽敞的尺寸,为各种展览和活动提供了一个中性的背景。画廊的平面图由经典的双正方形比例确定,在主入口有一个门槛空间,强调从邻近大厅的临时展览过渡。
在柱子之间是一段铁丝网,通过铁丝网可以看到桦木胶合板银色的背面。一层额外的纺织网形成了一个栏杆周围的外部边缘的坡道。建筑外部材料的层次感创造了丝状的表达和视觉深度,配合大量的开口,模糊了内部画廊空间、外部展览表面和周围博物馆大厅之间的界限。通过这种方式,画廊墙壁的背面与内部同样重要。
建筑设计:Dehlin Brattgård Arkitekter
项目位置:Exercisplan 4, 111 49 Stockholm, Sweden Category Extension
主创设计:Johan Dehlin, Johannes Brattgard
设计面积:156.0 m2
项目时间:2018
摄影师:Johan Dehlin, Mikael Olsson
建筑结构:Engineer DIFK (Florian Kosche)

