建筑和景观的一体化设计,形式语言和地域文脉的有机结合:龙湖江与城项目位置正处于杭州市城市发展主轴,国家级创新区大江东产业聚集区的核心位置,交通便利,产业人群基数丰富,坐享钱塘江时代区域红利。项目位于在建7 号北二路站地铁上盖,交通便利;集商务办公、金融商贸、展览展示、公共服务为一体,是新区功能和形象核心。
内向型围合空间
项目利用周边地块挖土,抬高地基,使场地内形成自然的高差。沿城市界面,采用将地形与建筑紧密结合的地景建筑形式,结合自然场地的同时还融合了当地的文化、人文等元素。塑造堆坡式景墙,隔绝周围不良环境。植入功能体块,形成内向型围合空间,同时加以庭院、廊架、影壁等元素,丰富内部空间层次。使示范区在周围喧嚣的环境中依然可以获得内部空间的宁静。
丰富的空间流线
示范区借鉴中式园林,采用景观递进和步移景异的设计手法,在有限的用地内创造丰富的空间感受。示范区由山门进入,山水影壁映入眼帘,进而转入小庭院,通过水中步道到达售楼处。售楼处与样板间中间通过下沉式庭院相连,起承转合,一气呵成,仿佛置身山水之间。五进院落,四重转折,起承转合,营造多重场景体验。
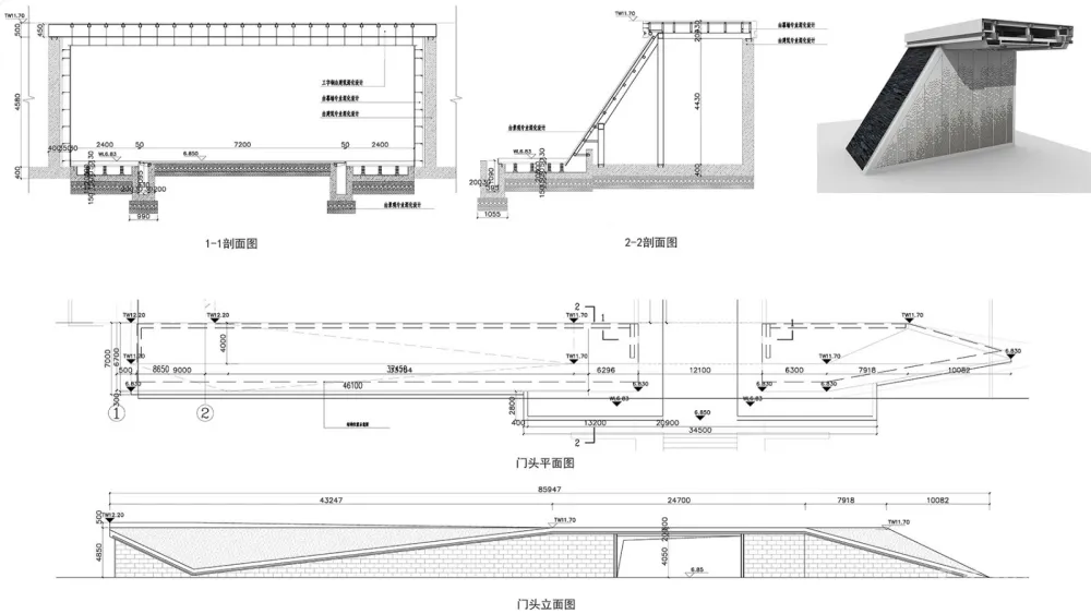
建筑形式语言
建筑形式语言和地域文脉结合,取意杭州夕照山的自然轮廓,售楼处屋顶的山形折板将建筑串联成一个整体。局部透空的处理,使建筑景观互相交融。透过格栅的形式,使光影富于变化,塑造轻盈通透之感,营造舒适又惬意的空间。
总平面图
分析图
轴测图
详图
项目名称:龙湖 江与城
项目地址:中国,浙江省,杭州市萧山区
项目规模:6000平方米
竣工时间:2018.09
建筑设计:上海天华建筑设计有限公司
电邮地址: thapepr@tianhua.com.cn
景观设计:MPG摩高景观
项目负责:荆哲璐 段亮
设计团队:倪永 杨裴 沈晓
建筑摄影:是然摄影

