
Zemberek Design
工业风如今已成为时下流行的一种办公室设计风格,而不同于往常见到的黑白灰工业风案例,今天要介绍的这个项目却以其处处透出的“精致”感,让人耳目一新。

该项目是知名蕾丝制造商和出口商 Antik Dantel 的公司总部,位于伊斯坦布尔远离市中心的一片开阔的土地上,享有绝佳的湖景,由 Zemberek Design

拱形的玻璃大门被方形的混凝土外墙包裹,复古而又大气。

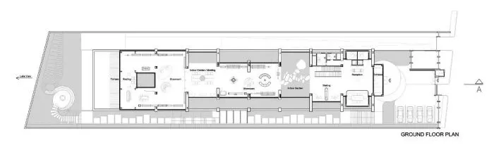
总部共有三层,楼内涵盖了陈列室、办公室、会议区以及员工的美食广场。

设计团队保留了原有的钢筋混凝土结构和轴系,另外增加了一个全新的钢结构体系,并完成了立面和室内设计。

进入室内后,是一个开阔的接待空间,中央放置着人形雕塑,深色的地面、墙面在暖黄色的灯光以及金属的点缀下丝毫不显闭塞。

一旁是一个小型会议室,大理石桌面搭配枝形吊灯,沉稳而不失灵动。

拱门有序的排列于此,将空间划分为多个部分,同时为空间创造了多种视角,自然地推动客户前进游览。

往里走,临窗位置设有小型休息区,精致的落地灯与吊灯交相辉映。

入户后紧接着就是一个绿意盎然的室内花园,茂密的植物让人仿佛置身丛林,自然光穿过拱形天窗落到室内,创造了一个无比放松的自然场所。

穿越这个区域后,便是作为主要功能区的陈列区,这里展示了公司的类似产品,为前来购买蕾丝的设计师客户提供的开阔的场所。

在细节上,设计团队用黄铜、大理石、玻璃、木材和天鹅绒面料等材料丰富室内空间,为整体的工业风增添了优雅的质感。






除了拱形天窗外,其余部分的天花板都选择了复古蓝色的铝板。

玻璃外立面也为开阔的室内时间带来了充足的自然光照。

第二个玻璃拱形天窗下是一个宽敞的会议空间,两侧都栽有绿植。

会议桌也以大树作为背景,充满生机。白色的大理石桌面搭配金属质地的扶手椅,精致的气息呼之欲出。

这一层余下的部分被分为两层,下方依旧是陈列区,上面用作管理层的办公室。蓝色的旋转楼梯向下延伸,连接到下面的楼层。


办公室都以玻璃作为分隔,视觉上十分通透。

办公室内放置了大量的古典家具,营造出复古的办公氛围。


抵达这层的最末端,是一个可以俯瞰湖景的休息区,弧型的天窗连接着落地窗和天花板,让光线最大程度的进入到室内。

外围还有户外露台和花园,铺设有木地板,可以再次尽情欣赏远处的湖泊美景。

拱门元素延续到这里,配合灯光的照耀,十分浪漫。

门柱一直往下延伸,下方也设有被绿植环绕的户外步道。

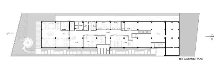
下面一层是主要的办公空间,包含有办公室、咖啡吧以及会议室等等。

宽敞的楼梯间被浅蓝色的墙面包裹,墨绿色的玻璃壁灯营造出复古的工业气息。

各个办公区域之间也以玻璃作为隔断,增加了空间的通透性。



淡雅的木质桌椅与裸露的混凝土相得益彰。

办公桌之间的隔断上也覆盖有绿植,为空间带来一抹清新。


卫生间内的格子装饰连接着墙面和地面,串联的镜子也颇具工业风。

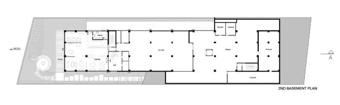
底层是员工餐厅以及停车场▼

裸露的管道透露着明显的工业风元素,复古的绿色和黄色点缀其中,棋盘格的地面又增添了复古的感觉。


餐厅被落地窗环绕,拥有良好的视野,餐椅也选择了大量的藤编元素,使整个环境带有轻松的度假氛围。

装点着绿植的金属隔断与户外的自然环境形成呼应。

户外还有一个圆形的下沉式休息区,中央设有火炉,即便是冬天也可以尽情享受户外的休闲时光。




现在这个浮躁的世界,能细心整理一些东西发上来的越来越少了。要么就是敷衍的图片,要么就是枯燥的文字。之后就是AI生成的预制菜类的打包便捷快餐了。感谢楼主的分享,让我能在大智能无人化来临之前,看到同类发出的项目。有幸与您互动,缘分。
工艺感十足,很棒的设计!
灵动而不失沉稳
沉稳而不失灵动