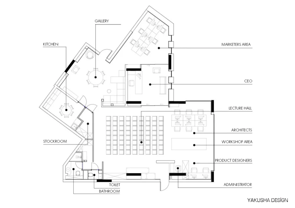
这个空间的设计特点是需要在同一屋檐下组织几个不同功能的工作空间,并协调他们的工作内容,使他们之间互相合作。在180平方米的面积里,和谐地共存着一个建筑工作室,一个80人的报告厅,一个设计画廊和现代合作空间。尽管它有多种功能,但这个创意空间作为一个单一的“有机体”运转得非常完美,任何时候都可以很容易地从一个单元转换到另一个单元。
YA VSESVIT空间是为所有具有设计头脑的人们而创建的:建筑师、时装设计师、视觉设计师、造型师、摄影师和文案。任何一个寻找灵感并与其他人分享的人都可以置身在这个新的创作空间。
空间是基于纹理和材料整体统一的单色色调。就像宇宙结合了不同的恒星系统一样,YA VSESVIT的内部也包括许多极性元素。一种真正的粘土灰泥墙与当地的工艺技术结合,黑色砖的精确对称在粗糙的石头的自然不完美下得到了和谐的叠合。
这个项目最大的目标是保持原生,创造未来的设计,而不是像所有的趋势一样,只有一两年的年限。灵感来源于设计师的文化根源和乌克兰的历史背景。作者想要重建人与自然的关系,当人与自然和谐相处时。当你从过去汲取一些东西,并通过简化、重新思考和试验形状、纹理或材料,使之为未来所用时,这就是设计的灵感所在,也是设计师们想与世界分享的东西。
在一间洞穴式会议室的中心,有一张巨大的桌子,桌子是由一块砂岩制成的,其几何形状和自然形态都未被破坏。粗糙的石头被砖结构的微妙构造软化——这是内部最复杂的元素之一。工作区域使用玻璃隔板划分,允许阳光自由的流动。
在入口处,迎接客人的是两座巨大的120-150年历史的木制祭坛,名为“佛塔”(stupa),是在古董市场上购得的。在它们旁边,是一套现代地板花瓶TREMBITA,由烧焦的木头制成,形状与乌克兰民间乐器同名。
报告厅配备了一个大屏幕,尽管必要时投影仪可以将建筑或室内项目的图像直接播送到地板上。这套独特的100个雕塑椅子材质,特别为这个项目创造了生态成分:稻草,亚麻,棉花,生物聚合物。它们可以像拼图一样组合起来,随时节省空间的占用。厨房和两个卫生间保持了相同的极简主义的室内风格和清爽简洁的线条。空间的所有功能,如储藏室、设备和工作材料的橱柜、冰箱、水槽、餐具柜等,都是内置的,隐藏在人们的视线之外。
与所有文件夹都存储在桌子上的常规办公空间不同,在YA VSESVIT协同工作区,你会看到一些低矮的金属架,悬挂在一张大共享桌子上方。除了主要的置放功能外,书架还起到了装饰的作用。
设计公司:Yakusha Design & Architecture Studio
项目位置:(V. Tutunnyka Str., 53, Kyiv, Ukraine 02000), Kyiv, Ukraine
主创设计:Victoriya Yakusha
设计面积:180.0 m2
设计时间:2018
摄影师:Mikey Estrada
制造商:Baxter

