景洪是西双版纳傣族自治州的首府,位于云南省的南部;与中国其他地区不同,这个傣族自治州地区属于典型的热带多雨气候,全年分为雨季和旱季。
项目位于景洪市荣陵大道南端。它被连绵起伏的山丘所环绕,面对着当地的一条河流;从这里,人们可以远眺澜沧江。非凡的景观资源赋予场地独特的优势。
在现代语境下表现本土文化
当地傣族人与“水”有着密切的联系。根据之前的实地研究,“当地的建筑和活动总是在河边或池塘边”是当地生活最重要的场景之一。因此,建筑师选择通过塑造建筑体量和空间来重新诠释这种关系。
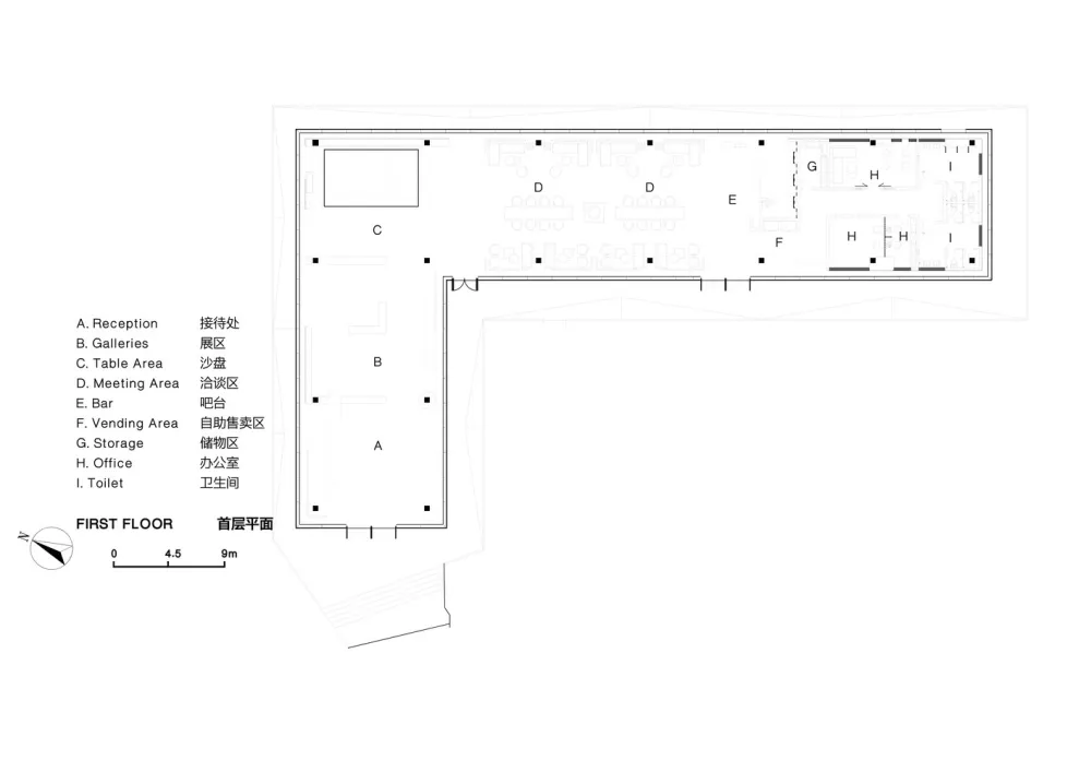
建筑布局为L型;它与其他三个分离的小建筑围合在一起。通过运用动态、超清的玻璃幕墙,水庭院的景观可以渗透到室内空间。
对传统建筑形式的重新诠释
由于西双版纳独特的氛围,当地的建筑选择了一种被称为“Ganlan”的建筑形式。对于展厅来说,悬挂的L形的动态空间在适应当地环境的同时提供了最大的视野。
在建筑形式上,建筑师从当地的建筑中学习并不断发展。建筑师通过对当地建筑符号的重构,通过现代材料和建筑方式来表现建筑传统。
和当地的傣族建筑一样,展厅也被悬挂在地上。它既能防潮又能适应山区地形。
折叠瓦屋面具有通用化和具体化的特点。它还融入了当地建筑的一般形式,这些建筑都是尖顶的,在大雨中排水。
幕墙与钢斜撑的应用是重建地域、建筑与人文关系的媒介。
远程干预
在施工过程中,场地与建筑师团队之间的距离太长,给施工带来了很大的困难,尤其是在质量控制方面。为了克服这一问题,远程视频通信成为建筑师团队介入施工过程的重要方式之一。


位置:云南,中国
年份:2018
摄影:Changheng Zhan, enjoydesign, Chao Wu, GAIA.DESIGN

