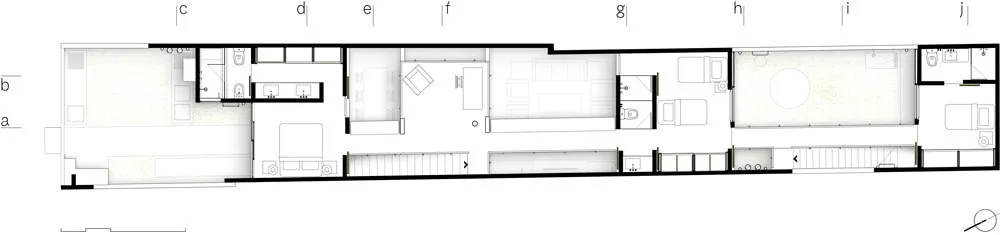
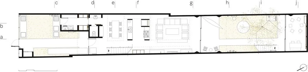
这座房子是向内的,某种程度上来说是内省的,这一特征来自于场地的具体限制——地块的线性构造,5×35米,以及它的邻居的高侧墙。正因为如此,室外的视野非常有限。除了前面的卧室,所有室内和室外的环境都转向庭院。
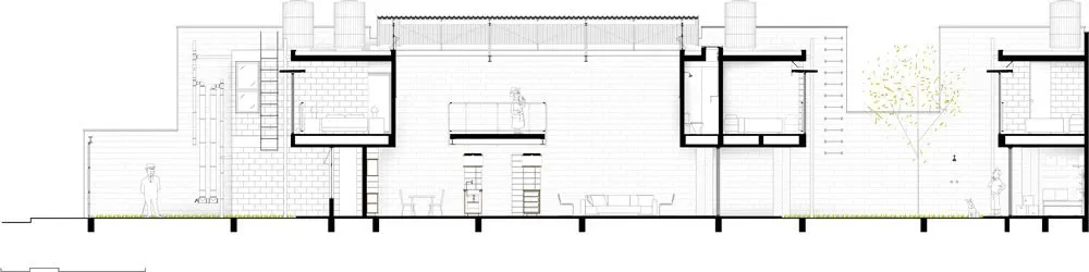
室外是布满草坪的花园,花园内有一棵树,你可以在那里洗澡或沐浴。室内是家庭的聚集区域——客厅、餐厅和厨房。它的不透明山墙屋顶不与侧墙接触,留下了一条玻璃条,让光线透过。这种技巧使时间流逝变得清晰,因为内部光线受到外部天气细微差别的制约,无论是阴天还是雨天,云的流逝还是太阳的简单运动。根据太阳的倾斜度,墙壁上的光影斑点的强度和形式每分钟都在变化——在夏天的中午,它变成了垂直的光线,暴露了不规则的墙壁,一些突出的块状物形成了阴影。
在上层,庭院嵌入了三个结构体块,每个体块都是一个房间。它们通过穿过两个庭院的走道纵向连接。走道作为屋顶,不接触房子的限制墙,走道很窄,让自然光线进入较低的楼层。建筑面积有所扩大,形成了一个夹层,一个私密的房间。在它的下面是厨房,这是房子的中心,可以用餐或者起居。
房屋的结构为结构砌体,走道和山墙屋顶的结构采用金属结构设计,楼板倒置,便于液压装置的配送,电气管道暴露在外,地面采用的是绿如草地的液压地砖。












建筑师 Chico Barros, Grupo Garoa
项目位置 Rua Havaí 781, Sumaré, São Paulo, 巴西
主持建筑师 Alexandre Gervásio, Erico Botteselli, Lucas Thomé, Pedro de Bona, Chico Barros
项目面积 190.0 平方米
项目年份 2017
摄影师 Pedro Napolitano Prata

