去年在成都「蔚蓝卡地亚中心」项目的采访中,SCDA的创始人曾仕乾(Soo K. Chan)跟我们谈到Soori High Line与Soori Bali之间的设计关联,同时也向我们透露了Soori High Line的设计理念及细节。
今天,我们等来了Soori High Line,这也是首次正式对外公开!
“自然为人类带来了无限的美好,Soori High Line延续了Soori Bali的设计理念,整个建筑设计围绕自然而展开,探索建筑与环境的完美契合,打造源于自然的永恒设计。”
——Soo K. Chan
Soori High Line位于曼哈顿切尔西繁华的中心地段,由地产开发商Oriel Development开发,建筑及室内设计均由国际著名建筑师Soo K. Chan完成。
SCDA Architects由Soo K. Chan于1995年创办于新加坡,设计涵盖总体规划、建筑、室内、景观及产品设计等。
其设计崇尚平静优雅的空间、光影和结构表现,并致力于追求纯粹的设计精神和室内外空间的无缝融合。
在中国的设计作品包括有丽江四季酒店、南京涵碧楼酒店、三亚艾迪逊酒店、深圳华侨城天鹅湖、蔚蓝卡地亚中心等等。
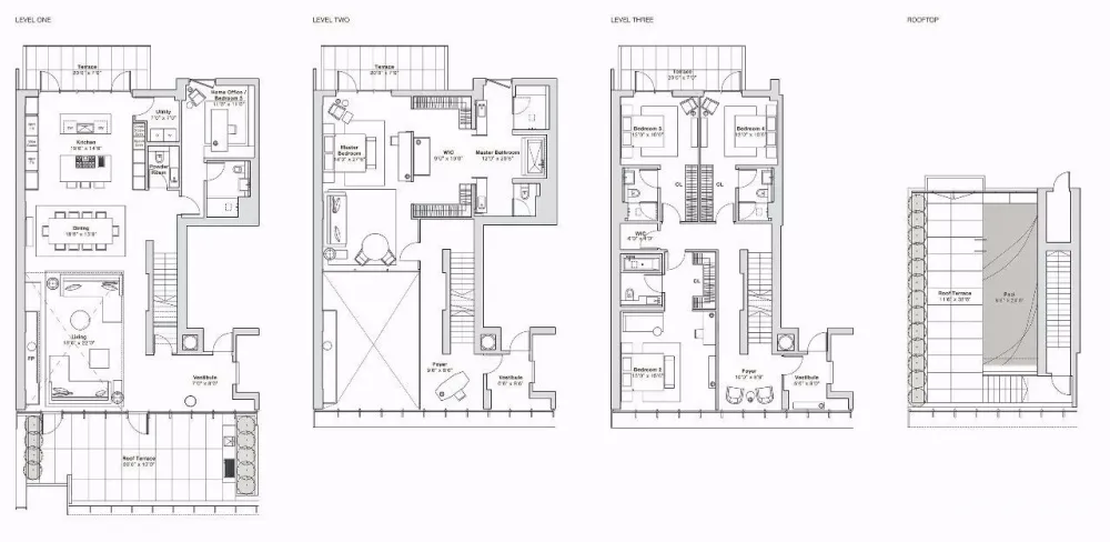
Soori High Line共有31个单元及16个私人泳池。设计延续了Soori Bali 的自然、返璞的建筑形态与表现形式,在现代雅致中融入了度假氛围。私人泳池将室内外完美衔接,营造自然舒适的度假风,建筑外立面的凹凸结构产生的光影将虚实意境的美感发挥到极致。
SCDA将返璞归真的新都市主义设计理念带到了曼哈顿,试图颠覆住宅室内外空间的传统概念。
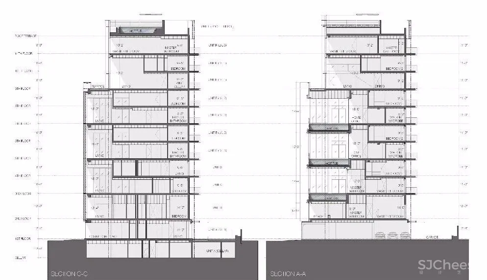
该户型是个结构为三层的顶层复式,也是整个项目里最大面积的一个户型,客厅挑空后6米高,楼顶还拥有7.5米长的私家天台泳池。
室内设计侧重于空间情景的营造,素雅朴质为表,内里追求人文、艺术、美学的浸润。
客厅挑空的设计和大面积的落地窗,让住户可以沉浸在通风、室内外相融合、充满自然光感的空间里。
挑高的客厅与餐厅、厨房相互连贯,以自由为本、自然为质,采用静谧优雅的设计格调,营造空幽深邃、隐心于野的氛围,空间淡泊而宁静,让人有种居于山野的自然与安逸。
一直与Soo K. Chan合作的家具品牌Poliform,是意大利家具设计的先锋代表,家具与衣帽间由Poliform定制完成,厨房由同样是Poliform旗下的品牌Varenna定制。
往往是空间与艺术的完美融合,方可体现当下精英生活方式的极致、简约、前卫、艺术的个性与气质。
Soori High Line 是SCDA的新都市主义设计理念在全球范围内的最好实践,为纽约的高端住宅设计带来了创新视界。
超大浴室、独立的浴缸、全景落地窗,将纽约的城市美景一览无余,在自然中,享受岁月的静美。
卫浴由享誉全球的德国顶级品牌Dornbracht提供。
空中泳池、空中花园等元素巧妙错叠于建筑的体块内,朴质的奢华在现代主义中增加了组合变化的趣味。
7.5米长的天台泳池让人可以尽情的去放松身体,感受曼哈顿美妙的城市风景。
E户型利用建筑结构的错叠关系,在客厅、泳池和主卫三个位置特意设计了挑空,实现了复式的空间优势。
室内设计充分体现了曼哈顿LOFT公寓的特点,大量垂直线条的应用,与建筑外观得以呼应,也突出了建筑体量的气势,室内外通透设计,使室内充满自然光线及绝佳的视野。
设计之美的捕捉,往往是在一瞬间,就如这个安静的空间,视线所到之处都让人心动。
高级定制的意大利顶级厨房品牌Varenna Poliform,彰显了开放式厨房的格调,不仅与餐厅有了互动,也让室内光线更加明亮。
“精华在笔端,咫尺匠心难”,设计的关键难在于“匠”,更在于“心”,SCDA的设计不但注重细节的严谨,更要有整体的浑然天成。
私人泳池将建筑内外无缝契合的完美衔接,通过建筑与环境的关系处理,室内外空间的统一营造,引入室外景色。
SCDA 的设计让我们充分感受到“出则繁华,入则宁静”的美好生活状态,让人回归心灵内在的安定。
设计:SCDA

