北京是一个很大的城市,它可以装得下无数炙热的梦想;北京也很小,在高昂的房价面前,甚至让人没办法拥有一个真正属于自己的家。
所以,有人走有人留,几乎是每天都会发生的事情。
在北京漂了6年的姑娘小米,曾在那里租过四合院,住过公寓楼,等到有了一个可爱的女儿之后,终于决定在北京扎根下来,买一套属于自己的房子。
经过近半年的地毯式搜索,她和先生终于相中了北京东四环边上的一套 LOFT 。
由于预算有限,这套毛坯房的面积仅有45㎡,本身存在着很大的不足与缺陷:
房子只有单面有窗,采光与空气流通不佳,容易出现很多的暗角;
层高足足有8米,样子像是一个火车头。如果没有足够的设计功力,根本就无法成功驾驭,还会在垂直立面上造成很多的空间浪费……
但即便如此,这套户型“奇葩”的房子到了小米手里,不仅完美实现了“咸鱼翻身”,让家的使用面积从45㎡扩大到135㎡,还创造了增值5百万的装修奇迹,在网上引来一片惊艳之声!
那么,她是如何做到的呢?
为了让每一平米都能物尽其用,帮助小房子发挥它的最大潜能,学平面设计出身的小米,决定重拾以前的老本行,亲手对房子进行了大胆改造。
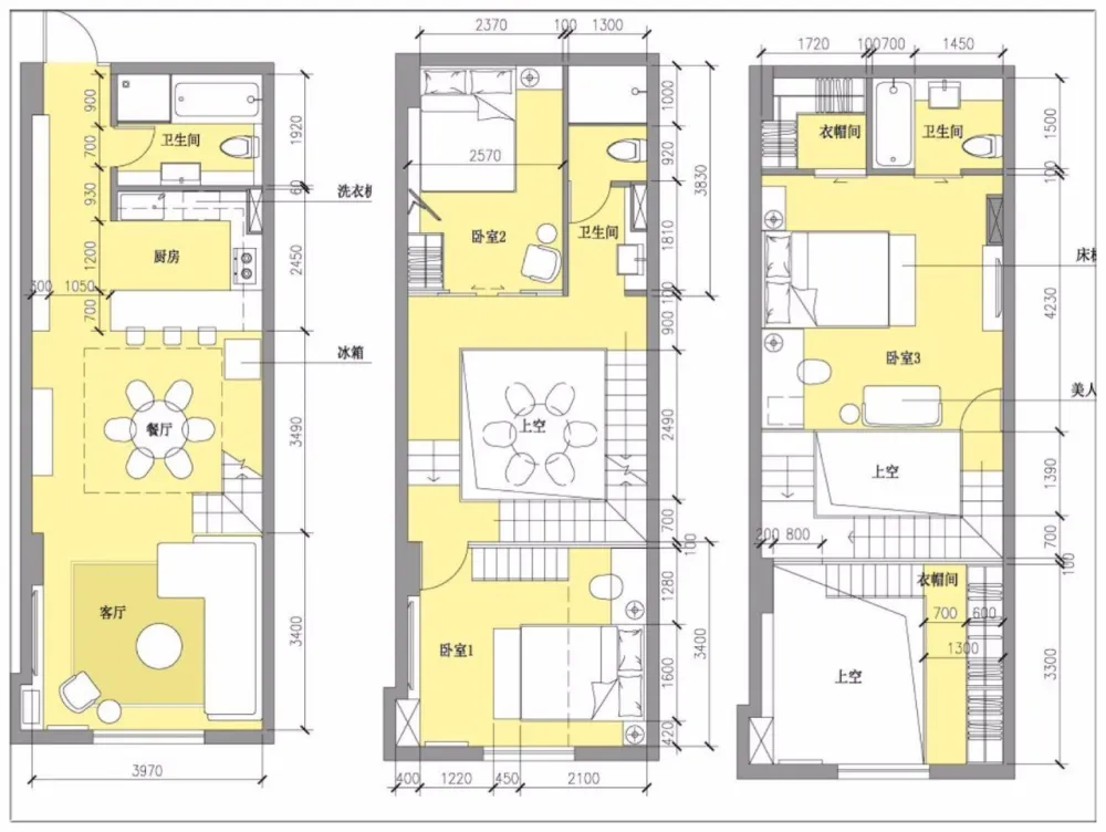
没想到,改造后的房子,比原来的面积竟大了3倍不止,并变身为一个可以容纳一家七口人居住的三层小别墅。
由于规划得当、设计合理,每个人在这个家中都能保有自己的空间,生活舒适自在,没有丝毫局促感。
亮点一:
小户型与开放式厨房是最佳搭配
从入口处的玄关区开始,我们便可以看到小米对于家的风格定位,是自然舒适却又不失精致感的混搭北欧风。
玄关处面积虽小,却用一个白色鞋柜搭配全身镜、绿植、小巧的艺术装饰等,解决了实用与美观的双重需求。
时尚个性的六角砖元素,从入口开始一直延伸到开放式厨房的地面。
在设计之初,小米就毫不犹豫地选择了开放式厨房,因为它可以让空间保持通透感,又能随时看顾到独自在一旁玩耍的女儿。
在她看来,开放式厨房对于小户型是非常友好的。
因为他们家的烹饪习惯,是用无烟锅配合电磁炉进行炒菜,食物多以蒸煮为主。有时候还会用烤箱做出各式各样的菜,再加上吸力强劲的油烟机作为加持,所以大大减少了厨房油烟的产生。
从整个厨房台面及墙面的陈设可以看出,这个家把真正的精致与细腻,融入在了点点滴滴的柴米油盐里。
在很多开放式厨房中,人们仿佛都习惯于用立面简洁的大容量橱柜+嵌入式设计,将一切杂物统统隐藏起来。但这个家的女主却偏爱将所有锅具和铲子高高挂起,让所有东西一目了然,随取随放十分方便。
基于生活习惯的收纳设计,让整个厨房乱中有序,充满浓浓的生活气息。
亮点二:
拥有旋转楼梯的大中空,最大化地优化了采光与通风
原来存在缺陷的双层LOTT结构,被小米隔成了3个楼层。
每层之间均以旋转楼梯搭配整面书墙作为连接,又在房顶上开了两扇天窗,让自然光线可以自由地贯穿其中,最大程度地解决采光和空气流通的问题。
北京的气候过于干燥,平时又多被雾霾天所包围,新风系统自然是必不可少的。
此外,小米在整面大白墙的处理上,也颇有见地和想法。
她挨着留白的墙面设计了一个非常气派的书架墙,不仅不占空间,起到很好的修饰作用,又在无形中帮助孩子养成阅读习惯,让小户型也装出豪宅的感觉。
客厅上方的中空位置,悬挂着一连串错落有致的吊灯。
这些大大小小的灯泡看似杂乱无章,其实都经过了精心的测量和搭配,以保证室内的每个角落都能扫除暗角,显得更加开阔、明亮。
有了采光充足、温馨舒适的环境氛围,整个客厅瞬间成了一道美丽的风景。
放眼望去,华丽缤纷的土耳其地毯、做旧的复古油蜡皮沙发、黑胡桃木+大理石茶几、随处可见的花朵绿植,都将客厅装扮得生机盎然,令人心生愉悦,赏心悦目。
亮点三:
巧用榻榻米,来弥补层高不足的尴尬
二层区域分布着两间次卧,是专为双方父母提供的居住空间。
更巧妙的是,衣柜的中部做了留空处理,裸露着温润的木质元素,辅以少许灯光点缀,让这个狭小的空间看起来更有层次感。
采用置物架、落地台灯和舒适座椅,来代替传统的床头柜设计,更赋予1 号次卧别样的美感。
小米将楼梯下方的畸零空间充分利用起来,设计成分类储物的形式,大大丰富了房间机能。
嵌入式衣柜与地面之间,还特意架高了一部分台面,这就在无形中促成了休闲区域的诞生,平时可坐在上面聊天、休憩,丝毫不觉得拥挤。
亮点四:
为女儿打造了一个ins风的公主房
女儿房位于三层区域,与另一侧的主卧相邻。
在这个小小的阁楼内,粉色调与高级灰巧妙混搭,层层渲染于各种ins风的童趣元素之上,仿佛瞬间将观者带入了一个梦幻情境。
小木马、小帐篷、涂鸦墙、天鹅造型的壁饰……几乎满足了你对公主房的一切幻想。
小米说,这是为了给女儿一个公主梦,同时也圆了自己小时候的梦想。
此外,圆弧形的窗户与顶面天窗也相得益彰,让这个阁楼显得更为宽敞、明亮,把房子里的每一个角落照亮。
亮点五:
榨干主卧的每寸空间,得到了一个衣帽间和一个浴缸
配套齐全的主卧,内置了一个带浴缸的卫生间。
同时又让出一部分面积,设计了一个步入式衣帽间,使两者功能产生交互,为居家生活带来满满的幸福感。
考虑到层高问题,榻榻米的设计同样被运用其中,并利用一个胡桃木储物柜,解决了一部分的收纳需求。
小米平日里喜欢做些珠宝设计,所以她的工作桌紧贴着床头摆放,也可作为梳妆之用。
就这样,小米用一系列合理而充满巧思的设计,“化腐朽为神奇”,为一家三口在偌大的北京城,打造了一个人人羡慕的高颜值的家。
她让我们更有理由相信——
生活的诗意与美好,不应该被小户型所限制。只要用心对待自己的家,让自己住得安心、舒适,就是经历北漂之后最治愈的一件事了。
本内容来源于室内设计圈

