© Benoit Fougeirol
来自建筑师。Olivier Debré 当代艺术中心项目始于一次国际竞赛,本次竞赛征集方案将图尔斯市(Tours)之前的“美术学院”改造为当代艺术的创作和展览的空间,同时保护抽象派画家 Olivier Debré 的作品收藏。
© Delfino Sisto Legnani e Marco Cappelletti
© Nuno Cera
项目的雄心在于尊重密集历史城市中心的同时与之对话,保存现存建筑的特征,但同时为新的展览功能及其与城市的开放关系提供巨大尺度的空间。项目从现存条件出发:贵重的建筑遗产,独特的城市文脉,竞赛纲要所表达的清晰的野心。伴随上述条件同时存在的是 Olivier Debré 作品中展现的对现实独一无二的启蒙的现实观念。
© Nuno Cera
Cortesia de Aires Mateus
© Delfino Sisto Legnani e Marco Cappelletti
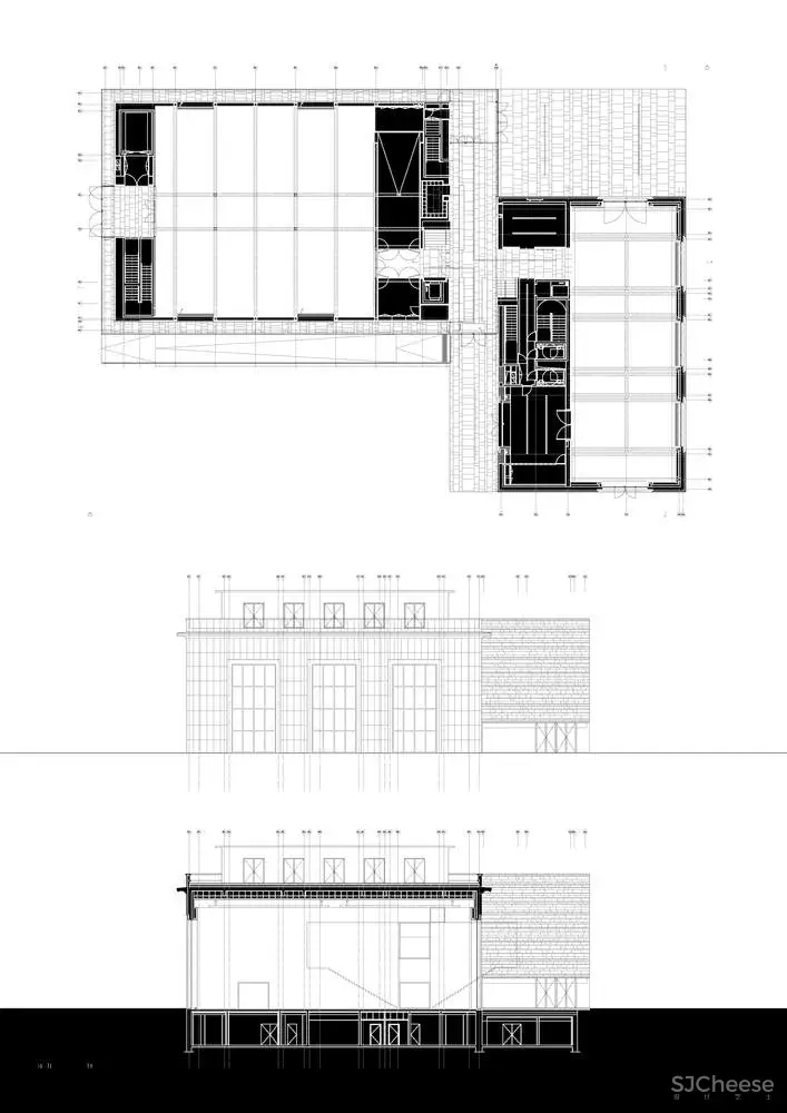
该项目力图使相互关系中的建筑组份,城市文脉和建筑所包含的功能清晰分明。两个分离的体量代表着属于不同时代的两个时刻:既存的主要体量得到保护,并保持独立以强调其作为特定历史时刻的公共建筑的象征价值;一个自身尺度和时间模糊的新的体量出现在旧有体量的一侧,与其并置。两个体量之间是一道透明且连通的光的体量,使整座建筑呈现通透的状态,并为其所处的城市环境赋予了意义。
© Benoit Fougeirol
© Benoit Fougeirol
项目在两座建筑微妙对立的对话关系间取得平衡:一方面,一个外向的体量放置在地面上;另一方面,一个平整的、纪念性的、完全内向的对等的体块漂浮在玻璃空间之上。
但是,它们的肌理是相称的,新建筑的白色体量和厚重的石灰石呼应着历史建筑的复原石板的色调。石材采用当地传统的石工技法施工,创造了属于场地集体记忆的景象。材料表现力的可能性经过推敲以加强其永恒感,重量感以及气质。建筑由石材建造,但是空间则由光线雕刻而出,提供了开放的,全新的功能的可能性。
Cortesia de Aires Mateus
建筑师 Aires Mateus
地点 Jardin François 1er, 37000 Tours, 法国
设计师 Francisco Aires Mateus, Manuel Aires Mateus
面积 5700.0 m2
项目年份 2016
摄影师 Benoit Fougeirol, Delfino Sisto Legnani e Marco Cappelletti, Nuno Cera
Category 视觉艺术中心


现在这个浮躁的世界,能细心整理一些东西发上来的越来越少了。要么就是敷衍的图片,要么就是枯燥的文字。之后就是AI生成的预制菜类的打包便捷快餐了。感谢楼主的分享,让我能在大智能无人化来临之前,看到同类发出的项目。有幸与您互动,缘分。