该项目旨在复兴旧的 Sant Sadurni d’Anoia 的现代主义学校,以便建立一个拥有图书馆和档案馆的文化中心。这座历史悠久的建筑位于由四条街道环绕的长方形地块上。该历史建筑位于该地块的西部,并围绕一个向东延伸的庭院呈U形(20世纪早期一种常见的学校类型)发展。拟定方案超过了原有建筑的范围,必须提出一个延伸到原学校庭院的扩建方案。
第一个决定是尊重建筑的外立面和历史建筑,沿用广场的原始入口作为新建筑的主要入口。第二个想法是利用场地边界之间的坡度建造一个大的石头基底,取代围墙的旧栅栏。该基底统一了新旧建筑,并在不改变视觉和体积影响的情况下,成为了重要的建筑表面的一部分。
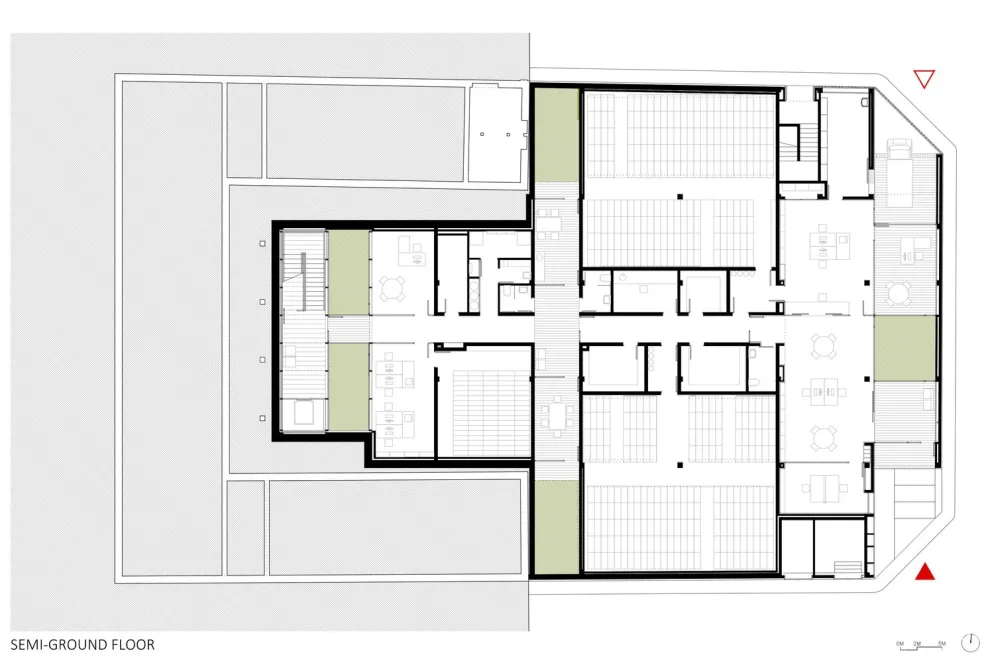
建筑最终呈一个搁置在石基础上的长方体体量,它位于历史建筑后面,两者没有完全对接,而是在它们之间留下两个庭院,从而使光线到达较低的楼层。最后,在原有建筑的后立面旁另设一个竖向交通空间主体,以解决三个高度之间的垂直交流,同时也能够修饰立面。两个新建筑主体将框定出的中央庭院保留为建筑整体的连接空间,同时也可作为进行露天活动的围合空间。
场地存在的斜度允许创建通过地下一层进入档案馆的独立入口。图书馆占据了两个较高的楼层,并整合了一系列空间(多功能厅,庭院,自习室等),通过门禁系统,可以在图书馆开放时间之外自主使用。
历史建筑以一种完整和被尊重的方式被修复,而新主体在与现有主体的对话中,在表达、韵律和组成系统化方面均采用了现代的形式语言。新体量被设想为一个门廊,遮蔽了旧庭院的一部分,图书馆的主要功能在这里展开,有不透明的侧立面和透明的主立面,以促进空间之间的连续性。新建筑与原有建筑之间的连接部分是通过玻璃元素来解决的。
建筑整修采用了传统建筑系统(通风的加泰罗尼亚屋顶、透气灰泥立面、加泰罗尼亚拱顶板…),以延长现有解决方案和材料的生命周期,充分利用其特点,满足对新用途、安全性、和能源效率的要求。这些新机构采用了超前工业系统,目的是将干预措施对能源和环境的影响降至最低。像是绿色屋顶,可回收的橡胶地板,金属板……都是为这一必要目标而设计的。




建筑师 taller 9s arquitectes
地点 巴塞罗那,西班牙
主创建筑师 Oriol Cusidó + Irene Marzo 设计团队 Brisa Martínez, Núria Serrano
建筑面积 2.325 平方米
项目年份 2018
摄影师 Adrià Goula

