马尼萨莱斯大学文化中心是哥伦比亚中心地区最重要的文化项目,坐落于拥有50000居民的国家主要咖啡产地之一马尼萨莱斯。
项目提升了大学文化生活以及公民意识,通过视觉艺术和新技术的运用促进了创新、试验和教育。建筑物还提供了都市及地域尺度的社会融合场所。

场地位于较明显的斜坡上,拥有周边壮阔的山地景观,项目回应了其地形学意义上的特点。建筑选在场地纵向唯一的平坦区域,避免过分开挖并节省建造施工所需的大量时间。

操场作为中心区域及建筑其余部分的交汇点,对建立社区与现存地形间的密切联系极为重要。
提出的景观设计丰富强化了主要生态结构,并为城市带来新的特性与氛围。

文化中心由大型图书馆、科学中心、180座的礼堂、咖啡厅、陈列室、露天观众席、音乐学校、办公区及为行政和文化活动准备的会议室组成。600座的剧场将会在不久的未来增置进来,为音乐学院提供配套服务。
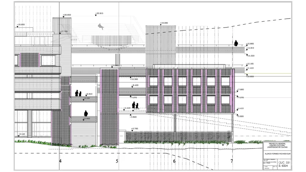
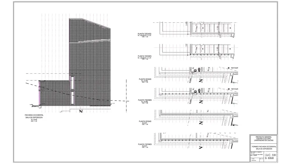
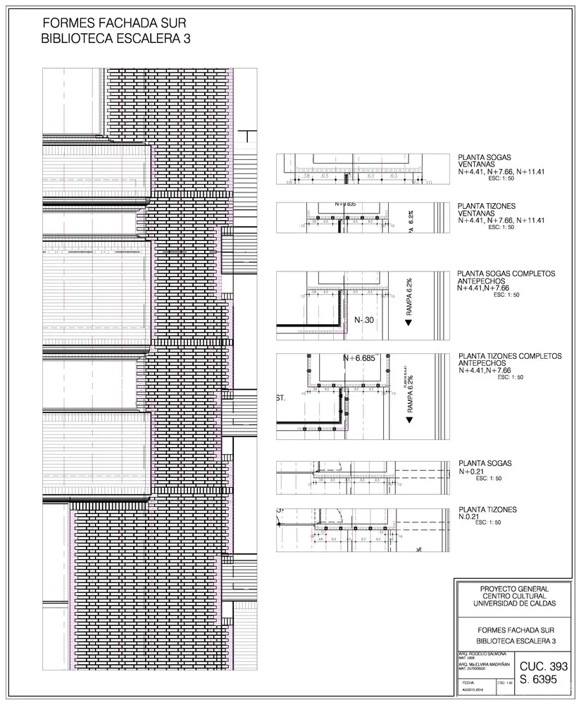
文化中心的主要材料选用混凝土和砖石,当地公司进行了大量的研究为寻找色彩最温暖的混凝土及砖石。
项目运用现代施工工艺强调高品质的手工技艺,砖材料注重多方面和丰富的使用而混凝土材料主要使用于主体结构。如同音乐,墙壁和结构由节奏、韵律和静默谱成。

建筑物是对场地友好的回应,有助于丰富文化生活和促进社会融合,但不止于马尼萨莱斯而是整个咖啡产地。


建筑师 :Rogelio Salmona
项目 :Cl. 65 #26-10, Manizales, Caldas, 哥伦比亚
主创建筑师 :Rogelio Salmona, Maria Elvira Madriñan
设计团队 :Fernando Amado Zarate, Diego Alejandro Ferro Martínez
建筑面积 :12400.0 平方米
摄影师 :Maria Elvira Madriñan, Dominic Dudley, Mauricio Diaz Gomez, AOB, Carlos Naranjo, Gabriel Ossa, Juan Camilo Jaramillo, Luis Miguel Martinez, Luis Suarez Sierra

