感谢来自 浙江大学建筑设计研究院有限公司 的校园项目案例分享:
每个大工人都有一个灰砖梦,
每个经管学子心中都有一座八角楼……
建筑植根环境,建筑孕育氛围。



首先作为人文学科学院楼,其建筑除满足自身的功能外,更为重要的是能提供相对恰当氛围的学习和交流场所。其次作为独立的学院,需要有自己独立围合的内向空间。



而不同的围合空间之间,都需要体现不同学院气质空间的同与异,不同的功能分区之间的空间衔接和过渡以及建筑内部空间,均需要体现人文学科的特征。地块西南角,以及与南侧主校园的过渡空间均需要建筑自身与之相协调。




本项目充分研究理工大学区域的区位条件,有效利用自然资源和人文资源,合理布局,处理好学部内几大功能区块的相互关系,全面考虑建筑形象,确保从各个角度都能给人良好视觉感受,并尊重基地周围的现状环境,在建筑设计中尽量保持谦逊的姿态,不张扬。


灰砖、石头、拱窗和入口弧形门廊……通过精心延续校园环境文脉,追求细节体现建筑的文化底蕴与空间的人本性,把校园建筑上升到精神的层面。


在砖和石头呈现的经管学部空间里,从墙面铜制泄水口溢出的斑驳水渍和东侧绿化驳坎上的石质校园标示,都在讲述着这数年建造的故事;拱窗和入口弧形门廊投下的影子,慢慢的从地面移动到墙上;黄昏时分的鸟儿在西侧主入口广场上飞快地盘旋,时而停在了入口铭牌旁的黑松上。



穿行在阳光和灯光交替照耀之下的大台阶,徜徉于不同层面的室外交流露台,体会着不断追寻新的知识高地的内在力量。


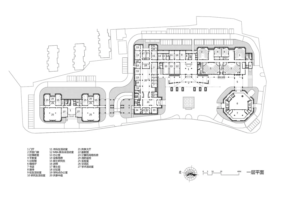
∇ 一层平面

∇ 二层平面

∇ 三层平面

∇ 四层平面

∇ 五层平面

∇ 立面

∇ 剖面

∇ 总平面

∇ 功能分析

完整项目信息
项目名称:大连理工大学管理与经济学部楼
设计单位:浙江大学建筑设计研究院有限公司(http://www.zuadr.com/)
主创设计师:吴震陵
设计团队
建筑:陈瑜、施明化、张元升、张扬、胡频飞
结构:金振奋、陈刚、程柯、沈金
给排水:陈激、方火明、王小红
电气:郑国兴、韦强、杨文征
暖通:杨毅、邵春廷、任晓东
智能化:杨国忠、李向群
景观:汤泽荣、吴维凌、王洁涛
幕墙:白启安、陶善钧、杭飞
地点:辽宁大连
业主:大连理工大学
基地面积:25451平方米
建筑面积:35998平方米(其中地下5893平方米)
建筑层数:地上6层、地下1层
结构形式:框架结构
主要材料:面砖、玻璃、石材
摄影人员:赵强

